Livadia, Larnaca, Larnaca District, Cyprus
Προς πώληση
€486,000
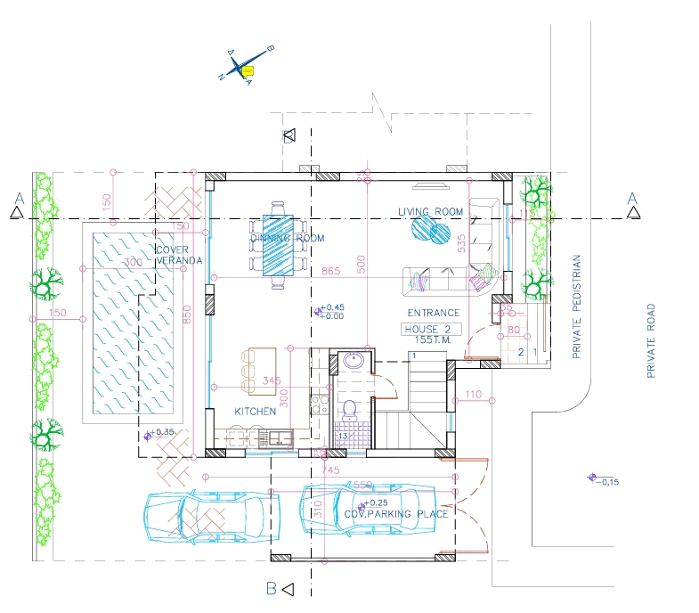
Πωλείται υπό ανέγερση κατοικία τριών υπνοδωματίων στα Λιβάδια – επαρχίας Λάρνακας με 169 τ.μ. καλυμμένο εσωτερικό χώρο και 32 τ.μ. κήπο οροφής σε 170 τ.μ. οικόπεδο. Το ισόγειο αποτελείται από ενιαίο χώρο κουζίνα/καθιστικό/τραπεζαρία και μια τουαλέτα επισκεπτών. Ο όροφος αποτελείται με τρία υπνοδωμάτια, δύο χώρους υγιεινής εκ των οποίων ένα en-suite στο κυρίως υπνοδωμάτιο και ένα κοινό μπάνιο. Ο εξωτερικός χώρος αποτελείται από καλυμμένη/ακάλυπτη βεράντα, ιδιωτική πισίνα και δύο χώρους στάθμευσης τύπου side by side. Διαθέτει σύστημα πιεστικό νερού, πρόνοια κλιματισμού, πιεστικό νερού, πρόνοια φωτοβολταικών και είναι Ενεργειακής Απόδοσης Α’. Βρίσκεται σε πολύ καλή περιοχή κοντά 500 μέτρα από την θάλασσα και το Land of Tomorrow, σε υπηρεσίες και σε απόσταση 10 λεπτών από το κέντρο της Λάρνακας. Τιμή πώλησης 486,000 ευρώ πλέον Φ.Π.Α.
Owning a home is a keystone of wealth… both financial affluence and emotional security.
Suze OrmanTo provide the best experiences, we and our partners use technologies like cookies to store and/or access device information. Consenting to these technologies will allow us and our partners to process personal data such as browsing behavior or unique IDs on this site and show (non-) personalized ads. Not consenting or withdrawing consent, may adversely affect certain features and functions.
Click below to consent to the above or make granular choices. Your choices will be applied to this site only. You can change your settings at any time, including withdrawing your consent, by using the toggles on the Cookie Policy, or by clicking on the manage consent button at the bottom of the screen.