Dimos Aradippou, Larnaca District, Cyprus
Προς πώληση
€349,000
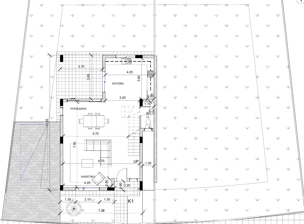
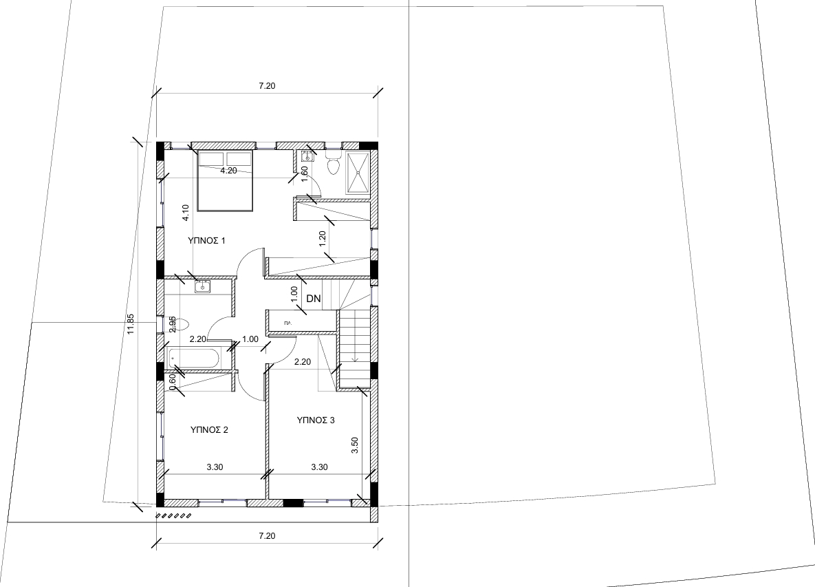
Πωλείται υπό ανέγερση κατοικία τριών υπνοδωματίων στην Αραδίππου- επαρχία Λάρνακας, με 160 τ.μ. εσωτερικούς χώρους σε 265 τ.μ. οικόπεδο. Στο ισόγειο διαθέτει ενιαίο χώρο κουζίνα/τραπεζαρία/σαλόνι και μια τουαλέτα ξένων. Στον επάνω όροφο διαθέτει τρία υπνοδωμάτια, δύο χώρους υγιεινής, εκ των οποίων en-suite στο κυρίως υπνοδωμάτιο και ένα κοινό μπάνιο και στον εξωτερικό χώρο διαθέτει ένα καλυμμένο χώρο στάθμευσης, καλυμμένη/ακάλυπτη αυλή/βεράντα και κήπο. Είναι άριστης ποιότητα κατασκευής με καλυμμένο χώρο στάθμευσης, αποθήκη, αλουμίνια με διπλό γυαλί, ψηλά ποσοστά θερμομόνωσης και ηχομόνωσης, που καλύπτει τις προδιαγραφές για Ενεργειακή απόδοση Α’. Βρίσκεται σε πολύ καλή περιοχή κοντά σε υπηρεσίες με εύκολη πρόσβαση τον αυτοκινητόδρομο. Τιμή πώλησης 349,000 ευρώ πλέον Φ.Π.Α.
Owning a home is a keystone of wealth… both financial affluence and emotional security.
Suze OrmanTo provide the best experiences, we and our partners use technologies like cookies to store and/or access device information. Consenting to these technologies will allow us and our partners to process personal data such as browsing behavior or unique IDs on this site and show (non-) personalized ads. Not consenting or withdrawing consent, may adversely affect certain features and functions.
Click below to consent to the above or make granular choices. Your choices will be applied to this site only. You can change your settings at any time, including withdrawing your consent, by using the toggles on the Cookie Policy, or by clicking on the manage consent button at the bottom of the screen.