Dimos Aradippou, Larnaca District, Cyprus
Προς πώληση
€399,000
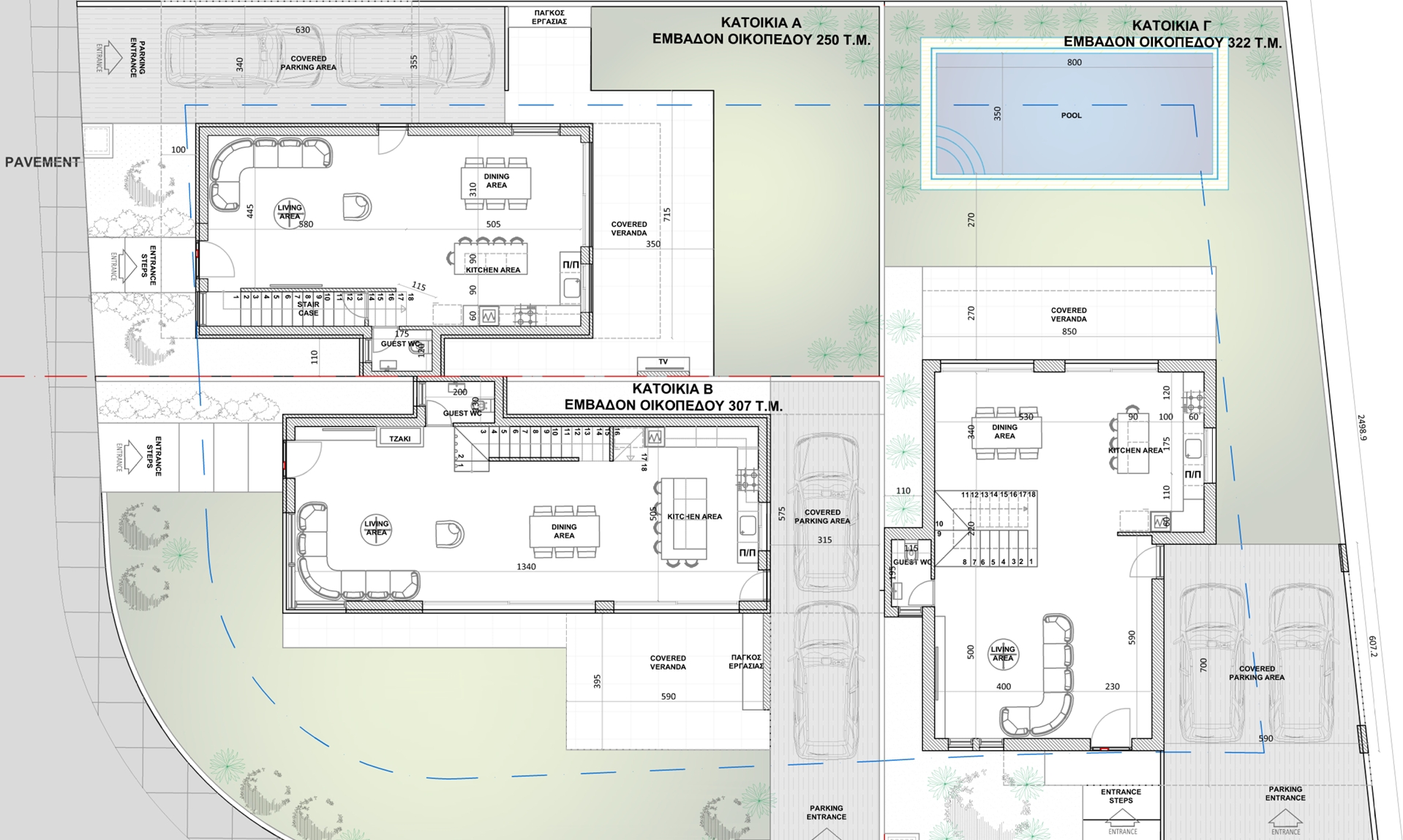
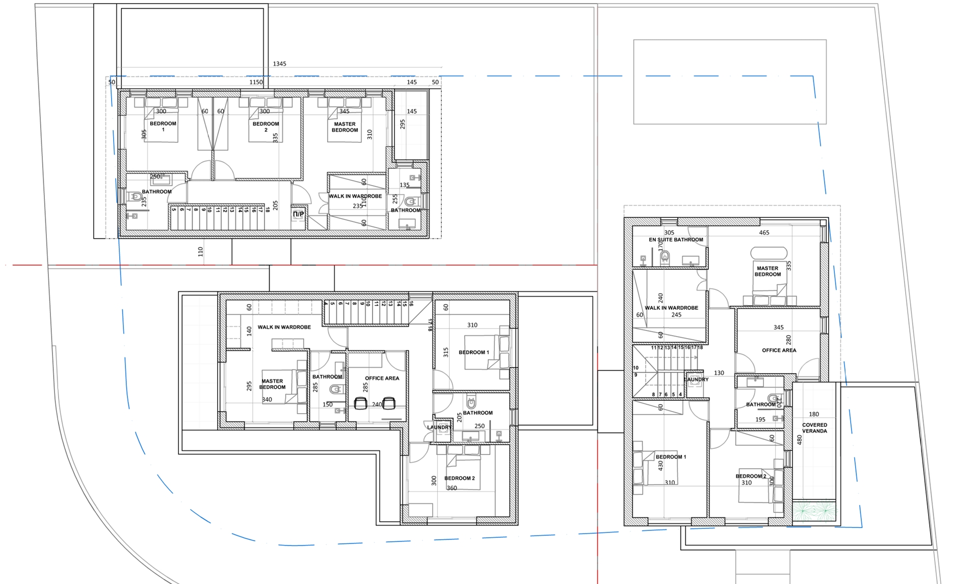
Πωλείται υπό ανέγερση κατοικία τεσσάρων υπνοδωματίων στην Αραδίππου- επαρχία Λάρνακας, με 190 τ.μ. εσωτερικούς καλυμμένους χώρους και 35 τ.μ. καλυμμένες βεράντες σε 322 τ.μ. οικόπεδο. Στο ισόγειο διαθέτει ενιαίο χώρο τραπεζαρία/σαλόνι/κουζίνα και μια τουαλέτα επισκεπτών. Στον επάνω όροφο διαθέτει τέσσερα υπνοδωμάτια, ένα χώρο γραφείου, και δύο χώρους υγιεινής, εκ των οποίων ιδιωτικό μπάνιο (en-suite) στο κυρίως υπνοδωμάτιο μαζί με γκαρνταρόμπα. Είναι άριστης ποιότητα κατασκευής με δύο καλυμμένους χώρους στάθμευσης 40 τ.μ. τύπου side by side, πρόνοια κλιματισμού, αλουμίνια με διπλό γυαλί, ψηλά ποσοστά θερμομόνωσης και ηχομόνωσης, που καλύπτει τις προδιαγραφές για Ενεργειακή απόδοση Α’. Βρίσκεται σε πολύ καλή περιοχή κοντά σε υπηρεσίες με εύκολη πρόσβαση τον αυτοκινητόδρομο. Τιμή πώλησης 399,000 ευρώ πλέον Φ.Π.Α.
Owning a home is a keystone of wealth… both financial affluence and emotional security.
Suze OrmanTo provide the best experiences, we and our partners use technologies like cookies to store and/or access device information. Consenting to these technologies will allow us and our partners to process personal data such as browsing behavior or unique IDs on this site and show (non-) personalized ads. Not consenting or withdrawing consent, may adversely affect certain features and functions.
Click below to consent to the above or make granular choices. Your choices will be applied to this site only. You can change your settings at any time, including withdrawing your consent, by using the toggles on the Cookie Policy, or by clicking on the manage consent button at the bottom of the screen.