Κίτι, Δήμος Δρομολαξιάς - Μενεού, Επαρχία Λάρνακας, Κύπρος, 7550, Κύπρος
Προς πώληση
€370,000
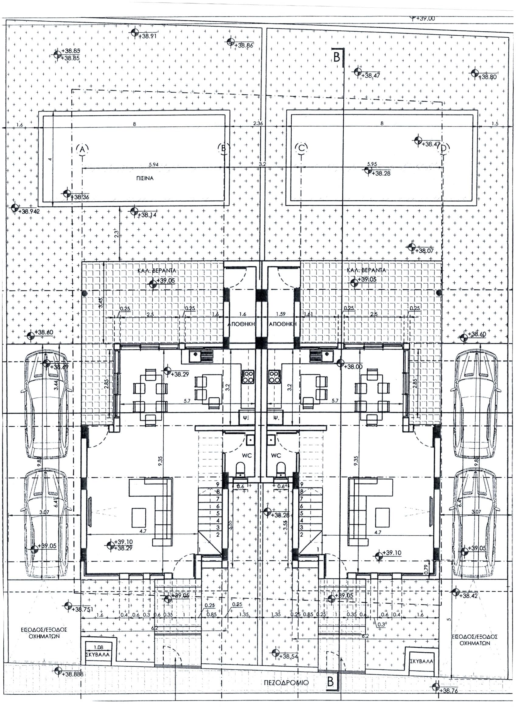
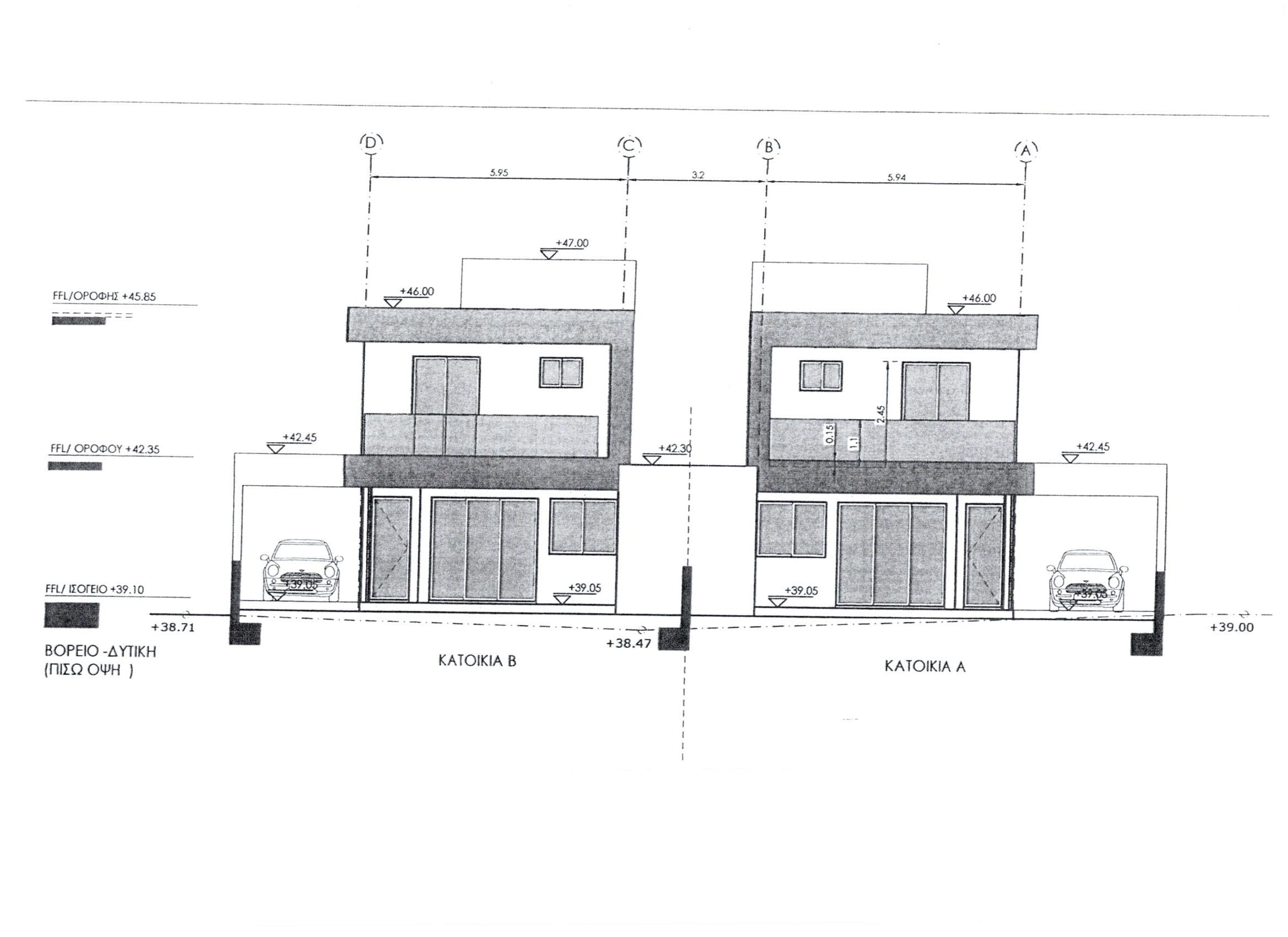
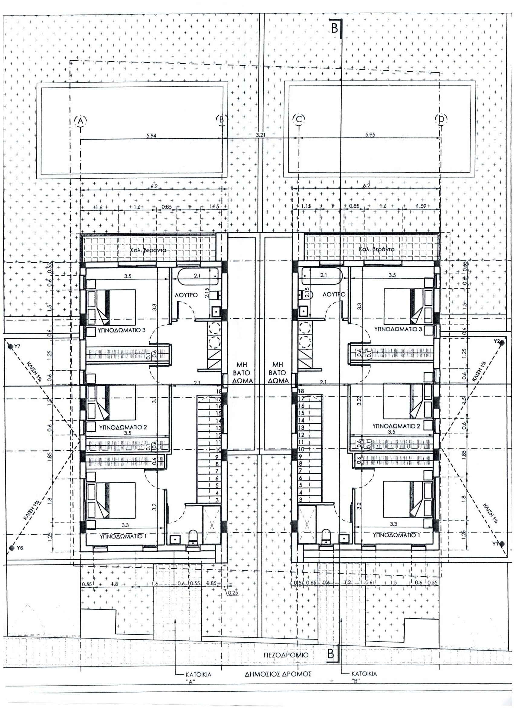
Πωλείται υπό ανέγερση κατοικία τριών υπνοδωματίων στο Κίτι, επαρχία Λάρνακας. Αποτελείται από 143 τ.μ. καλυμμένο εσωτερικό χώρο και 39 τ.μ. καλυμμένη βεράντα, σε 294 τ.μ. οικόπεδο. Στο ισόγειο διαθέτει ενιαίο χώρο κουζίνα/τραπεζαρία/καθιστικό, μια τουαλέτα ξένων, αποθήκη, κήπο, δύο καλυμμένους χώρους στάθμευσης και πρόνοια για κατασκευή πισίνας. Στον επάνω όροφο διαθέτει τρία μεγάλα υπνοδωμάτια με en-suite στο κυρίως υπνοδωμάτιο και ένα κοινόχρηστο μπάνιο. Η κατοικία είναι μερικώς επιπλωμένη, είναι Ενεργειακής Απόδοσης Α’ και διαθέτει τίτλο ιδιοκτησίας για άμεση μεταβίβαση. Οι δύο κατοικίες βρίσκονται στην είσοδο του πανέμορφου Κιτίου, μόλις τρία χιλιόμετρα από το αεροδρόμιο και την εθνική οδό και 3,5 χιλιόμετρα από την παραλία. Βρίσκονται σε μια ήσυχη γειτονιά πολύ κοντά σε όλες τις ανέσεις. Αναμενόμενη ημερομηνία παράδοσης αρχές του 2025. Τιμή πώλησης 370,000 ευρώ πλέον ΦΠΑ.
Owning a home is a keystone of wealth… both financial affluence and emotional security.
Suze OrmanTo provide the best experiences, we and our partners use technologies like cookies to store and/or access device information. Consenting to these technologies will allow us and our partners to process personal data such as browsing behavior or unique IDs on this site and show (non-) personalized ads. Not consenting or withdrawing consent, may adversely affect certain features and functions.
Click below to consent to the above or make granular choices. Your choices will be applied to this site only. You can change your settings at any time, including withdrawing your consent, by using the toggles on the Cookie Policy, or by clicking on the manage consent button at the bottom of the screen.