Αλεθρικό, Λάρνακα, Κύπρος
Προς πώληση
€255,000
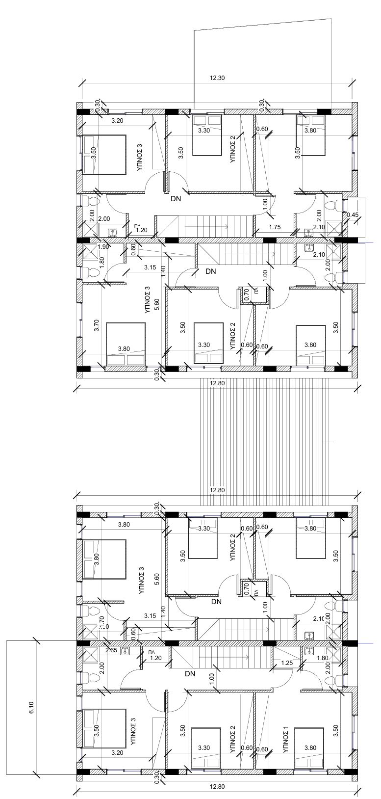
Πωλείται υπο ανέγερση κατοικία τριών υπνοδωματίων στο Αλεθρικό – επαρχία Λάρνακας, με 140 τ.μ. καλυμμένους χώρους. Το ισόγειο αποτελείται από ενιαίο χώρο σαλόνι/κουζίνα/τραπεζαρία και μια τουαλέτα επισκεπτών. Ο επάνω όροφος αποτελείται από τρία υπνοδωμάτια και δύο χώρους υγιεινής εκ των οποίων ιδιωτικό μπάνιο (en-suite) στο κυρίως υπνοδωμάτιο. Εξωτερικά αποτελείται από καλυμμένη βεράντα, μικρό κήπο και καλυμμένο χώρο στάθμευσης. Η κατοικία βρίσκεται σε καλή τοποθεσία, με εύκολη πρόσβαση στον αυτοκινητόδρομο και στο κέντρο της Λάρνακας. Επίσης βρίσκεται κοντά σε όλες τις υπηρεσίες όπως υπεραγορές, σχολεία και καταστήματα. Τιμή πώλησης 255,000 ευρώ πλέον Φ.Π.Α.
Owning a home is a keystone of wealth… both financial affluence and emotional security.
Suze OrmanTo provide the best experiences, we and our partners use technologies like cookies to store and/or access device information. Consenting to these technologies will allow us and our partners to process personal data such as browsing behavior or unique IDs on this site and show (non-) personalized ads. Not consenting or withdrawing consent, may adversely affect certain features and functions.
Click below to consent to the above or make granular choices. Your choices will be applied to this site only. You can change your settings at any time, including withdrawing your consent, by using the toggles on the Cookie Policy, or by clicking on the manage consent button at the bottom of the screen.