Αυγόρου, Δήμος Αγίας Νάπας, Επαρχία Αμμοχώστου, Κύπρος, 5510, Κύπρος
Προς πώληση
€255,000
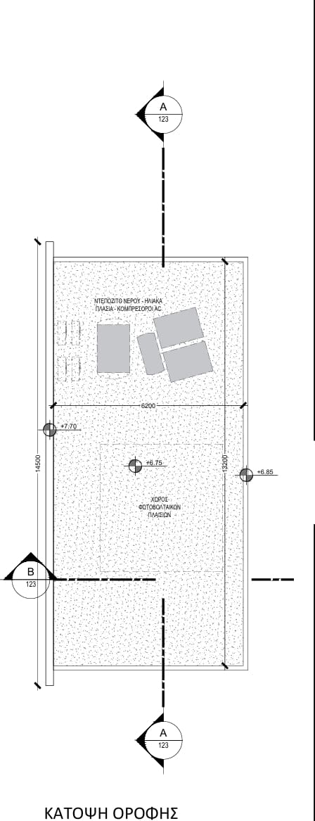
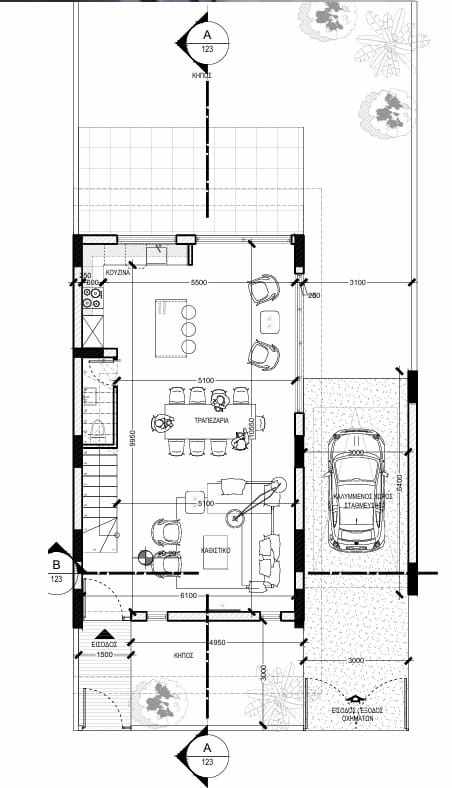
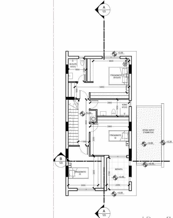
Πωλείται υπό ανέγερση μονοκατοικία τριών υπνοδωματίων στην περιοχή Αυγόρου της επαρχίας Αμμοχώστου. Αποτελείται από 154 τ.μ. καλυμμένο εσωτερικό χώρο και 15 τ.μ. καλυμμένη βεράντα, χτισμένη σε 196 τ.μ. οικόπεδο. Το ισόγειο αποτελείται από ενιαία κουζίνα με σαλόνι και τουαλέτα ξένων. Στον όροφο υπάρχουν τρία υπνοδωμάτια με 1 κυρίως μπάνιο και en suite στο κυρίως υπνοδωμάτιο. Επιπλέον διαθέτει πρόνοια συστημάτων κλιματισμού, πιεστικό σύστημα νερού, μικρή αυλή και 20 τ.μ. καλυμμένο χώρο στάθμευσης. Η οικία βρίσκεται σε ήσυχη τοποθεσία με εύκολη πρόσβαση σε υπηρεσίες και επωφελείται από το Στεγαστικό Σχέδιο Αναζωογόνησης Ορεινών, Ακριτικών και Μειονεκτικών Περιοχών με ποσό ενίσχυσης μέχρι και €55,000. Τιμή πώλησης 255,000 ευρώ πλέον ΦΠΑ.
Owning a home is a keystone of wealth… both financial affluence and emotional security.
Suze OrmanTo provide the best experiences, we and our partners use technologies like cookies to store and/or access device information. Consenting to these technologies will allow us and our partners to process personal data such as browsing behavior or unique IDs on this site and show (non-) personalized ads. Not consenting or withdrawing consent, may adversely affect certain features and functions.
Click below to consent to the above or make granular choices. Your choices will be applied to this site only. You can change your settings at any time, including withdrawing your consent, by using the toggles on the Cookie Policy, or by clicking on the manage consent button at the bottom of the screen.