Palodia, Cyprus
Προς πώληση
€489,000
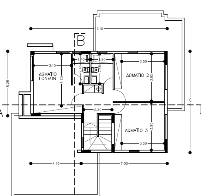
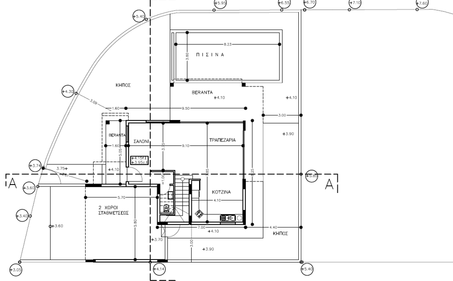
Πωλείται υπό ανέγερση μοντέρνα γωνιακή οικία τριών υπνοδωματίων στην περιοχή Παλόδεια της επαρχίας Λεμεσού. Αποτελείται από 150 τ.μ. καλυμμένους εσωτερικούς χώρους , χτισμένη σε 376 τ.μ. οικόπεδο. Διαθέτει στο ισόγειο μεγάλο καθιστικό, τραπεζαρία, κουζίνα,1 χώρο υγιεινής και καλυμμένο χώρο στάθμευσης, ενώ στον 1ο όροφο 2 χώρους υγιεινής εκ των οποίων en suite στο κυρίως υπνοδωμάτιο, πρόνοια για σύστημα κλιματισμού, πρόνοια για ηλεκτρικά ρολά, πρόνοια για πισίνα, πρόνοια για υποδαπέδια θέρμανση, πρόνοια για σύστημαασφαλείας με κάμερα και συναγερμό, φωτοβολταϊκό σύστημα, , πιεστικό σύστημα νερού, ηλιακό θερμοσίφωνα, διπλά τζάμια στα παράθυρα και αποθήκη. Το έργο διαθέτει πιστοποιητικό ενεργειακής απόδοσης Α και βρίσκεται σε ήσυχη και αναπτυγμένη περιοχή με θέα τη Λεμεσό. Η αναμενόμενη ημερομηνία παράδοσης είναι 06/2026. Τιμή πώλησης 489,000 ευρώ, πλέον Φ.Π.Α.
*Η οικία έχει το προνόμοιο να πουληθεί με 5% Φ.Π.Α εάν το δικαιούται ο αγοραστής.
Owning a home is a keystone of wealth… both financial affluence and emotional security.
Suze OrmanTo provide the best experiences, we and our partners use technologies like cookies to store and/or access device information. Consenting to these technologies will allow us and our partners to process personal data such as browsing behavior or unique IDs on this site and show (non-) personalized ads. Not consenting or withdrawing consent, may adversely affect certain features and functions.
Click below to consent to the above or make granular choices. Your choices will be applied to this site only. You can change your settings at any time, including withdrawing your consent, by using the toggles on the Cookie Policy, or by clicking on the manage consent button at the bottom of the screen.