Yeroskipou, East Paphos Municipality, Paphos District, Cyprus
Προς πώληση
€495,000
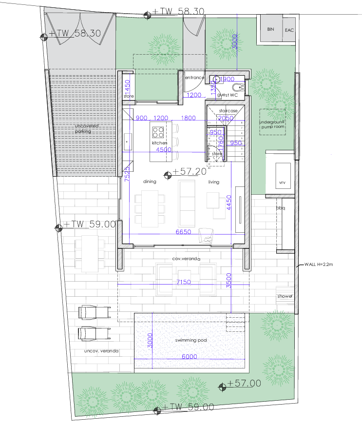
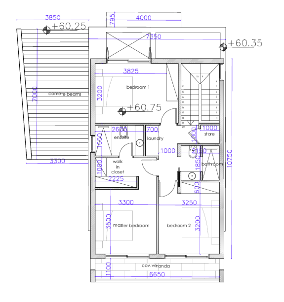
Πωλείται υπό ανέγερση μοντέρνα μονοκατοικία τριών υπνοδωματίων στη Γεροσκήπου της επαρχίας Πάφου. Αποτελείται από 138 τ.μ. καλυμμένο εσωτερικό χώρο, 32 τ.μ. καλυμμένη βεράντα και 25 τ.μ. καλυμμένο χώρο στάθμευσης για δύο οχήματα, χτισμένη σε 281 τ.μ. οικόπεδο. Διαθέτει τρεις χώρους υγιεινής, en suite στο κυρίως υπνοδωμάτιο, γκαρνταρόμπα, πλυσταρίο, υποδαπέδια θέρμανση, κλιματιστικό τύπου VRV, φωτοβολταϊκό σύστημα 4,8K, σύστημα συναγερμού και κάμερες, πιεστικό σύστημα νερού, ηλεκτρική πύλη εισόδου, χώρο για ψησταριά, αποθήκη εντός και εκτός του σπιτιού, κήπο και πρόνοια για φορτιστή ηλεκτρικών αυτοκινήτων. Το ακίνητο διαθέτει πιστοποιητικό ενεργειακής απόδοσης Α. Εκτιμώμενος χρόνος παράδοσης 09/2027. Βρίσκεται σε καλή και ήσυχη περιοχή με θέα τη θάλασσα. Τιμή πώλησης 495,000 πλέον ΦΠΑ.
*Υπάρχει δυνατότητα προσθήκης πισίνας με επιπλέον χρέωση 20,000 ευρώ πλέον ΦΠΑ.
Owning a home is a keystone of wealth… both financial affluence and emotional security.
Suze OrmanTo provide the best experiences, we and our partners use technologies like cookies to store and/or access device information. Consenting to these technologies will allow us and our partners to process personal data such as browsing behavior or unique IDs on this site and show (non-) personalized ads. Not consenting or withdrawing consent, may adversely affect certain features and functions.
Click below to consent to the above or make granular choices. Your choices will be applied to this site only. You can change your settings at any time, including withdrawing your consent, by using the toggles on the Cookie Policy, or by clicking on the manage consent button at the bottom of the screen.