Agios Tychon, Cyprus
Προς πώληση
€840,000
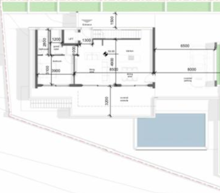
Πωλείται υπό ανέγερση μοντέρνα οικία τεσσάρων υπνοδωματίων στην περιοχή Άγιος Τύχωνας της επαρχίας Λεμεσού. Αποτελείται απο 132 τ.μ. καλυμμένο εσωτερικό χώρο, 120 τ.μ. υπόγειο και 380 τ.μ. οικόπεδο. Διαθέτει στο υπόγειο ένα δωμάτιο υπηρεσίας μαζί με 1 χώρο υγιεινής, στο ισόγειο μια τουαλέτα ξένων, 1 υπνοδωμάτιο το οποίο είναι en suite, καθιστικό, κουζίνα, σαλόνι, ενώ στον 1ο όροφο 2 υπνοδωμάτια και τα 2 en suite , ανελκυστήρα, υποδαπέδια θέρμανση, πρόνοια για σύστημα κλιματισμού, διπλά τζάμια στα παράθυρα, πιεστικό σύστημα νερού, πισίνα ,κήπο και 2 καλυμμένους χώρους στάθμευσης. Η οικία διαθέτει πιστοποιητικό ενεργειακής απόδοσης Α και βρίσκεται σε εξαιρετική περιοχή κοντά σε υπηρεσίες και ανέσεις. Η αναμενόμενη ημερομηνία παράδοσης είναι τέλη του 2026. Τιμή πώλησης 840,000 ευρώ, πλέον Φ.Π.Α.
Owning a home is a keystone of wealth… both financial affluence and emotional security.
Suze OrmanTo provide the best experiences, we and our partners use technologies like cookies to store and/or access device information. Consenting to these technologies will allow us and our partners to process personal data such as browsing behavior or unique IDs on this site and show (non-) personalized ads. Not consenting or withdrawing consent, may adversely affect certain features and functions.
Click below to consent to the above or make granular choices. Your choices will be applied to this site only. You can change your settings at any time, including withdrawing your consent, by using the toggles on the Cookie Policy, or by clicking on the manage consent button at the bottom of the screen.