Pyla, Σύμπλεγμα Κοινοτήτων Δεκέλειας, Larnaca District, Cyprus
Προς πώληση
€380,000
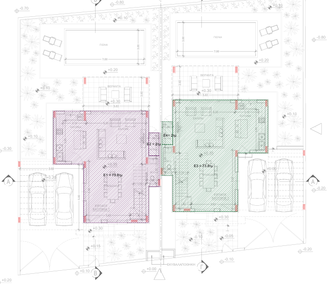
Πωλείται υπό ανέγερση οικία τριων υπνοδωματίων στη Πύλα – επαρχία Λάρνακας. Αποτελείται από 145,8 τ.μ. καλυμμένο εσωτερικό χώρο και 17 τ.μ. βεράντα. Διαθέτει τρεις χώρους υγιεινή, en suite στο κυρίως υπνοδωμάτιο, ενιαίο χώρο κουζίνα/σαλόνι/ τραπεζαρία, μονάδες συστήματος κλιματισμού, φωτοβολταϊκό σύστημα 3kW, αποθήκη, πισίνα, αυλή και χώρο στάθμευσης για δύο οχήματα. Το ακίνητο διαθέτει πιστοποιητικό ενεργειακής απόδοσης Α. Βρίσκεται σε καλή περιοχή κοντά σε διάφορες ανέσεις. Τιμή πώλησης 380,000 πλέον ΦΠΑ.
Owning a home is a keystone of wealth… both financial affluence and emotional security.
Suze OrmanTo provide the best experiences, we and our partners use technologies like cookies to store and/or access device information. Consenting to these technologies will allow us and our partners to process personal data such as browsing behavior or unique IDs on this site and show (non-) personalized ads. Not consenting or withdrawing consent, may adversely affect certain features and functions.
Click below to consent to the above or make granular choices. Your choices will be applied to this site only. You can change your settings at any time, including withdrawing your consent, by using the toggles on the Cookie Policy, or by clicking on the manage consent button at the bottom of the screen.