Erimi Municipality, Kourio Municipality, Limassol District, Cyprus, 4630, Cyprus
Προς πώληση
€460,000
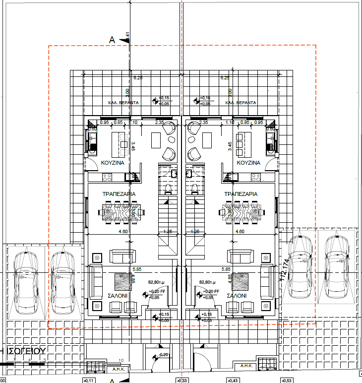
Πωλείται υπό ανέγερση μοντέρνα οικία τριών υπνοδωματίων στην περιοχή Ερήμη επαρχίας Λεμεσού. Αποτελείται από 170 τ.μ. καλυμμένο εσωτερικό χώρο και 285 τ.μ. οικόπεδο. Διαθέτει 3 χώρους υγιεινής εκ των οποίων en suite στο κυρίως υπνοδωμάτιο μαζί με γκαρνταρόμπα, πλυσταριό, μεγάλη τραπεζαρία, σαλόνι, κουζίνα πρόνοια για σύστημα κλιματισμού και θέρμανσης, πρόνοια για ηλεκτρικά ρολά στα παράθυρα, πιεστικό σύστημα νερού, ηλιακό θερμοσίφωνα, φωτοβολταϊκό σύστημα , αποθήκη, κήπο, καλυμμένες βεράντες και 2 καλυμμένους χώρους στάθμευσης. Το έργο διαθέτει πιστοποιητικό ενεργειακής απόδοσης Α και βρίσκεται σε αναπτυγμένη και ήσυχη περιοχή κοντά σε υπηρεσίες και ανέσεις. Τιμή πώλησης 460,000 ευρώ, πλέον Φ.Π.Α.
Owning a home is a keystone of wealth… both financial affluence and emotional security.
Suze OrmanTo provide the best experiences, we and our partners use technologies like cookies to store and/or access device information. Consenting to these technologies will allow us and our partners to process personal data such as browsing behavior or unique IDs on this site and show (non-) personalized ads. Not consenting or withdrawing consent, may adversely affect certain features and functions.
Click below to consent to the above or make granular choices. Your choices will be applied to this site only. You can change your settings at any time, including withdrawing your consent, by using the toggles on the Cookie Policy, or by clicking on the manage consent button at the bottom of the screen.