Paramytha, Σύμπλεγμα Κοινοτήτων Ημιορεινής Λεμεσού, Limassol District, Cyprus, 4549, Cyprus
Προς πώληση
€415,000
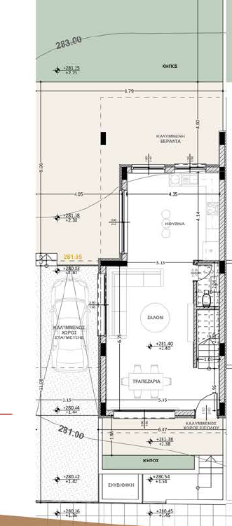
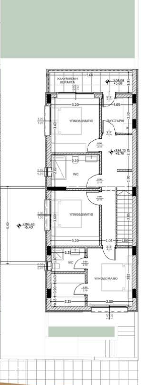
Πωλείται υπό ανέγερση μοντέρνα και ιδιαίτερα ευρύχωρη οικία τριών υπνοδωματίων στην ήσυχη και αναπτυσσόμενη περιοχή Παραμύθα της επαρχίας Λεμεσού, μια τοποθεσία που συνδυάζει ποιότητα ζωής, φυσικό περιβάλλον και άμεση πρόσβαση στο κέντρο της πόλης και στον αυτοκινητόδρομο. Η οικία αποτελείται από 144 τ.μ. καλυμμένο εσωτερικό χώρο, 34 τ.μ. καλυμμένες βεράντες, 28 τ.μ. ακάλυπτες βεράντες και 273 τ.μ. οικόπεδο, προσφέροντας άνετους, λειτουργικούς και φωτεινούς χώρους ιδανικούς για σύγχρονη οικογενειακή διαβίωση ή επένδυση. Διαθέτει 3 χώρους υγιεινής εκ των οποίων en suite στο κυρίως υπνοδωμάτιο, πρόνοια για σύστημα κλιματισμού και θέρμανσης, πρόνοια για ηλεκτρικά ρολά στα παράθυρα, πιεστικό σύστημα νερού, ηλιακό θερμοσίφωνα, θυροτηλεόραση, διπλά υαλοστάσια, φωτοβολταϊκό σύστημα, αποθήκη, κήπο και καλυμμένο χώρο στάθμευσης. Το έργο διαθέτει πιστοποιητικό ενεργειακής απόδοσης κατηγορίας Α, εξασφαλίζοντας χαμηλό κόστος λειτουργίας και υψηλή ενεργειακή αποδοτικότητα, ενώ η Παραμύθα αποτελεί μια ιδιαίτερα δημοφιλή επιλογή τα τελευταία χρόνια λόγω της ηρεμίας, της πράσινης φύσης, της κοντινής απόστασης από σχολεία, καταστήματα και βασικές υπηρεσίες, καθώς και της εύκολης πρόσβασης προς Λεμεσό και Τρόοδος. Τιμή πώλησης 415,000 ευρώ, πλέον Φ.Π.Α.
Owning a home is a keystone of wealth… both financial affluence and emotional security.
Suze OrmanTo provide the best experiences, we and our partners use technologies like cookies to store and/or access device information. Consenting to these technologies will allow us and our partners to process personal data such as browsing behavior or unique IDs on this site and show (non-) personalized ads. Not consenting or withdrawing consent, may adversely affect certain features and functions.
Click below to consent to the above or make granular choices. Your choices will be applied to this site only. You can change your settings at any time, including withdrawing your consent, by using the toggles on the Cookie Policy, or by clicking on the manage consent button at the bottom of the screen.