Pyla, Σύμπλεγμα Κοινοτήτων Δεκέλειας, Larnaca District, Cyprus
Προς πώληση
€200,000
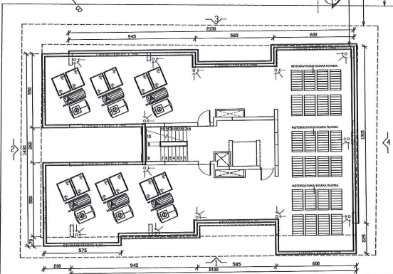
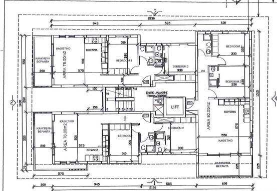
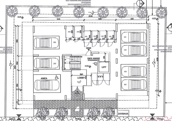
Πωλείται υπό ανέγερση μοντέρνο διαμέρισμα δύο υπνοδωματίων στην περιοχή Πύλα της επαρχίας Λάρνακας. Αποτελείται από 76 τ.μ. καλυμμένο εσωτερικό χώρο και 16 τ.μ. καλυμμένη βεράντα, στον πρώτο όροφο διώροφης πολυκατοικίας με 6 διαμερίσματα στο σύνολο. Διαθέτει 2 χώρους υγιεινής εκ των οποίων en suite στο κυρίως υπνοδωμάτιο, πρόνοια για σύστημα κλιματισμού, πιεστικό σύστημα νερού, ηλιακό θερμοσίφωνα, θυροτηλεόραση, διπλά τζάμια στα παράθυρα,φωτοβολταϊκό σύστημα, αποθήκη και καλυμμένο χώρο στάθμευσης. Το έργο διαθέτει πιστοποιητικό ενεργειακής απόδοσης Α και βρίσκεται σε πολύ καλή ακριτική περιοχή κοντά σε διάφορες υπηρεσίες και ανέσεις.Eπιπλέον, η οικία εμπίπτει στο Στεγαστικό Σχέδιο Αναζωογόνησης Ορεινών, Ακριτικών και Μειονεκτικών Περιοχών με κυβερνητική βοήθεια μέχρι 60,000 ευρώ Τιμή πώλησης 200,000 ευρώ, πλέον Φ.Π.Α.
Owning a home is a keystone of wealth… both financial affluence and emotional security.
Suze OrmanTo provide the best experiences, we and our partners use technologies like cookies to store and/or access device information. Consenting to these technologies will allow us and our partners to process personal data such as browsing behavior or unique IDs on this site and show (non-) personalized ads. Not consenting or withdrawing consent, may adversely affect certain features and functions.
Click below to consent to the above or make granular choices. Your choices will be applied to this site only. You can change your settings at any time, including withdrawing your consent, by using the toggles on the Cookie Policy, or by clicking on the manage consent button at the bottom of the screen.