Panthea, Agios Athanasios, East Limassol Municiplaity, Limassol District, Cyprus, 4105, Cyprus
Προς πώληση
€390,000
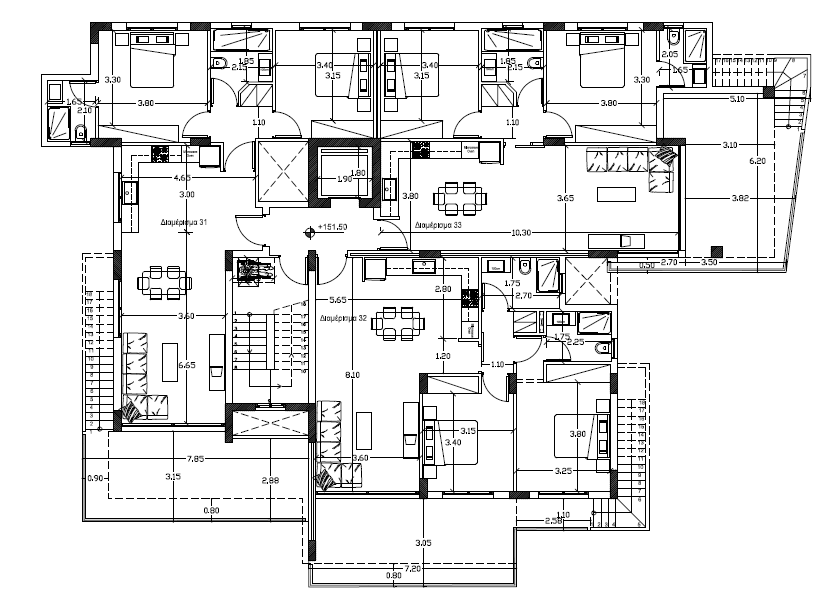
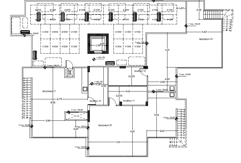
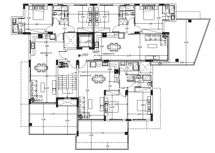
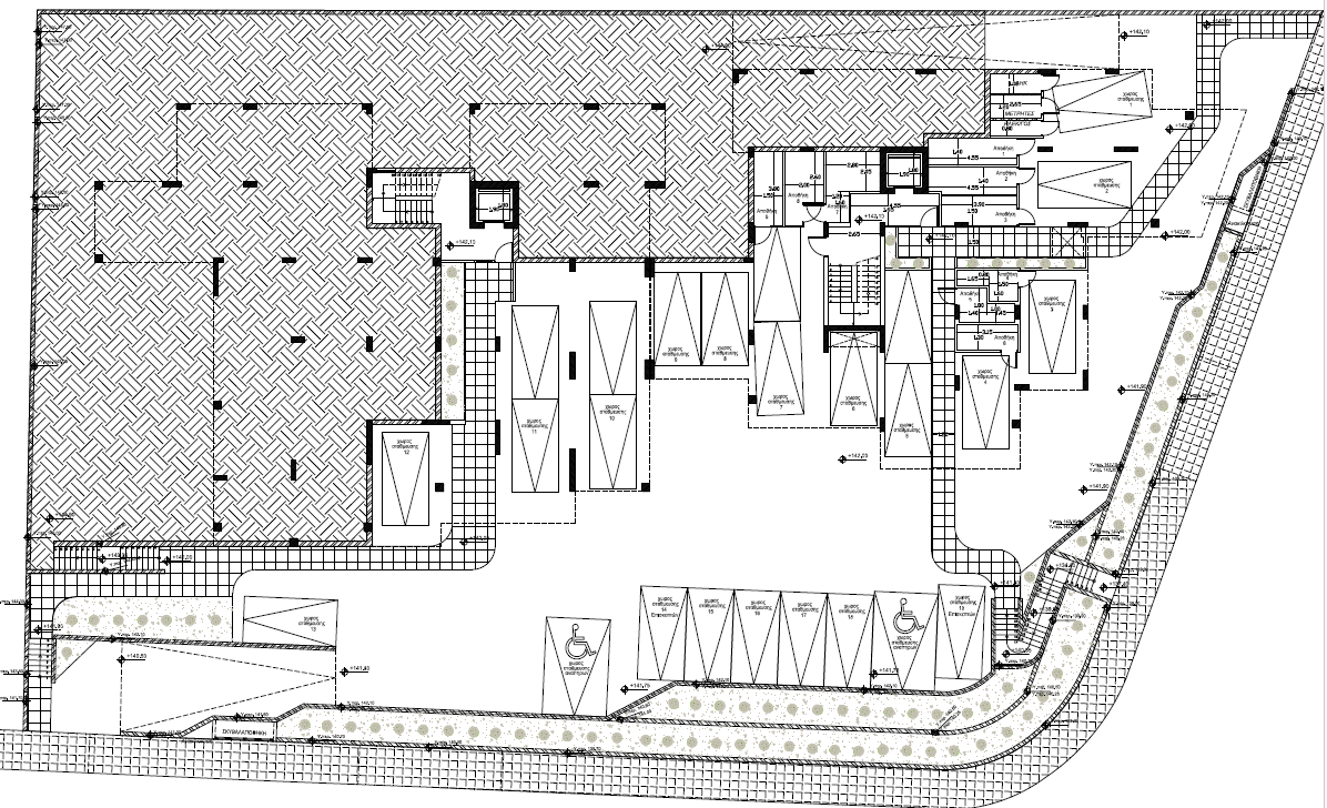
Πωλείται υπό ανέγερση μοντέρνο και καλαίσθητο διαμέρισμα δύο υπνοδωματίων στην ιδιαίτερα προνομιακή περιοχή Πάνθεα της επαρχίας Λεμεσού, ιδανικό τόσο για ιδιοκατοίκηση όσο και για επένδυση. Το διαμέρισμα αποτελείται από 88 τ.μ. καλυμμένο εσωτερικό χώρο και 29 τ.μ. ευρύχωρη καλυμμένη βεράντα, βρίσκεται στον 1ο όροφο σύγχρονης τριώροφης πολυκατοικίας συνολικά 9 διαμερισμάτων και ξεχωρίζει για τον λειτουργικό σχεδιασμό και την υψηλή ποιότητα κατασκευής. Διαθέτει 2 χώρους υγιεινής εκ των οποίων en suite στο κυρίως υπνοδωμάτιο, πλήρη εγκατάσταση συστήματος κλιματισμού, υποδαπέδια θέρμανση, φωτοβολταϊκό σύστημα, πιεστικό σύστημα νερού, κλειστό κύκλωμα τηλεόρασης (CCTV), ηλεκτρικά ρολά στα παράθυρα, διπλά ρολά στα παράθυρα, καθώς και ιδιωτική αποθήκη και καλυμμένο χώρο στάθμευσης. Το έργο συνολικά περιλαμβάνει δύο συγκροτήματα που αποτελούνται από 21 διαμερίσματα, φέρει πιστοποιητικό ενεργειακής απόδοσης κατηγορίας Α και βρίσκεται σε πάρα πολύ καλή και ήσυχη περιοχή με εύκολη πρόσβαση στο κέντρο της πόλης και τις βασικές υποδομές. Η αναμενόμενη ημερομηνία παράδοσης είναι τα μέσα του 2027. Τιμή πώλησης 390,000 ευρώ,πλέον Φ.Π.Α.
Owning a home is a keystone of wealth… both financial affluence and emotional security.
Suze OrmanTo provide the best experiences, we and our partners use technologies like cookies to store and/or access device information. Consenting to these technologies will allow us and our partners to process personal data such as browsing behavior or unique IDs on this site and show (non-) personalized ads. Not consenting or withdrawing consent, may adversely affect certain features and functions.
Click below to consent to the above or make granular choices. Your choices will be applied to this site only. You can change your settings at any time, including withdrawing your consent, by using the toggles on the Cookie Policy, or by clicking on the manage consent button at the bottom of the screen.