Mackenzy, Larnaca District, Cyprus
Προς πώληση
€315,000
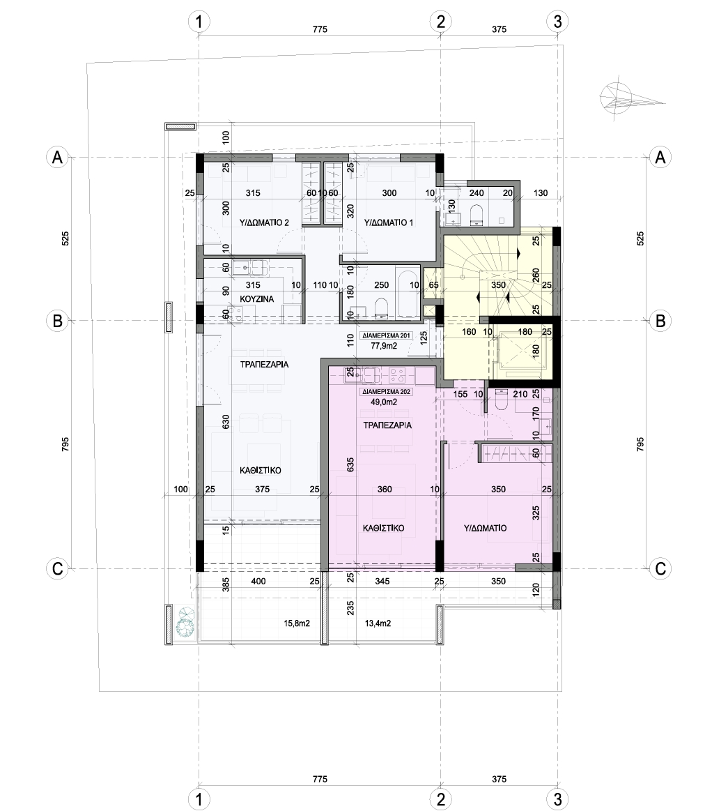
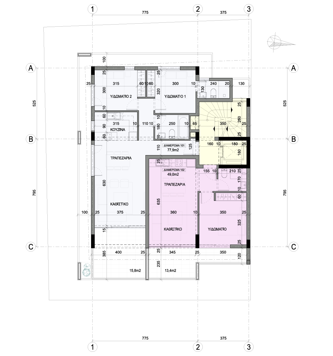
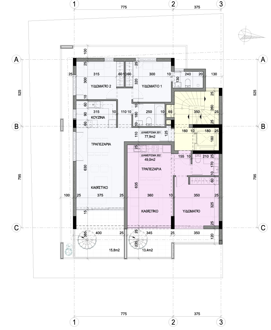
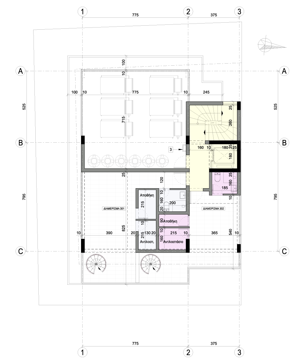
Πωλείται υπό ανέγερση διαμέρισμα δύο υπνοδωματίων στην περιοχή Φανερωμένης – επαρχία Λάρνακας, στον 1ο όροφο τριώροφης πολυκατοικίας με 6 διαμερίσματα στο σύνολο. Το διαμέρισμα αποτελείται από 78 τ.μ. καλυμμένο εσωτερικό χώρo και 15 τ.μ. καλυμμένη βεράντα. Διαθέτει ενιαίο χώρο κουζίνας, σαλονιού και τραπεζαρίας με δύο χώρους υγεινής εκ των οποίων ιδιωτικό μπάνιο (en-suite) στο κυρίως υπνοδωμάτιο. Διαθέτει αποθήκη, καλυμμένο χώρο στάθμευσης και πιστοποιητικό Ενεργειακής Απόδοσης Α’. Βρίσκεται σε προνομιακή περιοχή, κοντά σε όλες τις υπηρεσίες. Τιμή πώλησης 315.000 ευρώ πλέον Φ.Π.Α.
Owning a home is a keystone of wealth… both financial affluence and emotional security.
Suze OrmanTo provide the best experiences, we and our partners use technologies like cookies to store and/or access device information. Consenting to these technologies will allow us and our partners to process personal data such as browsing behavior or unique IDs on this site and show (non-) personalized ads. Not consenting or withdrawing consent, may adversely affect certain features and functions.
Click below to consent to the above or make granular choices. Your choices will be applied to this site only. You can change your settings at any time, including withdrawing your consent, by using the toggles on the Cookie Policy, or by clicking on the manage consent button at the bottom of the screen.