Agios Athanasios, East Limassol Municiplaity, Limassol District, Cyprus
Προς πώληση
€4,000,000
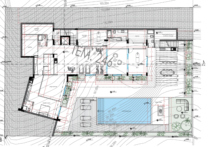
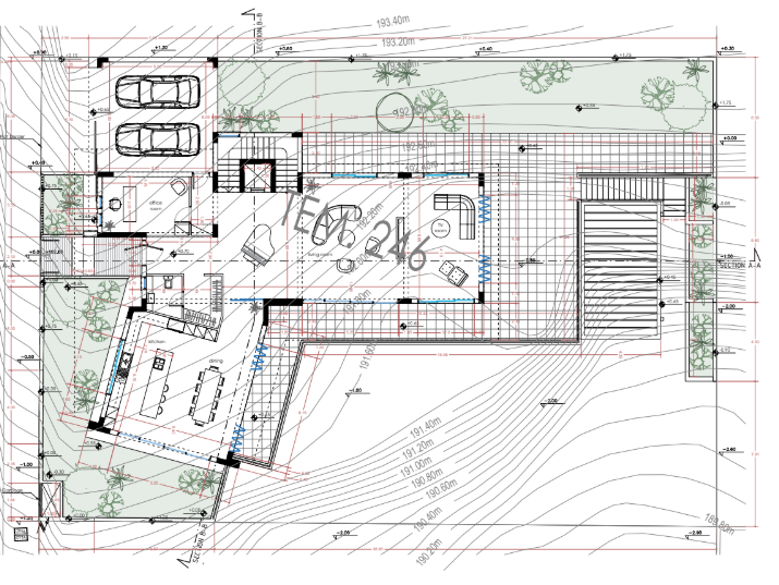
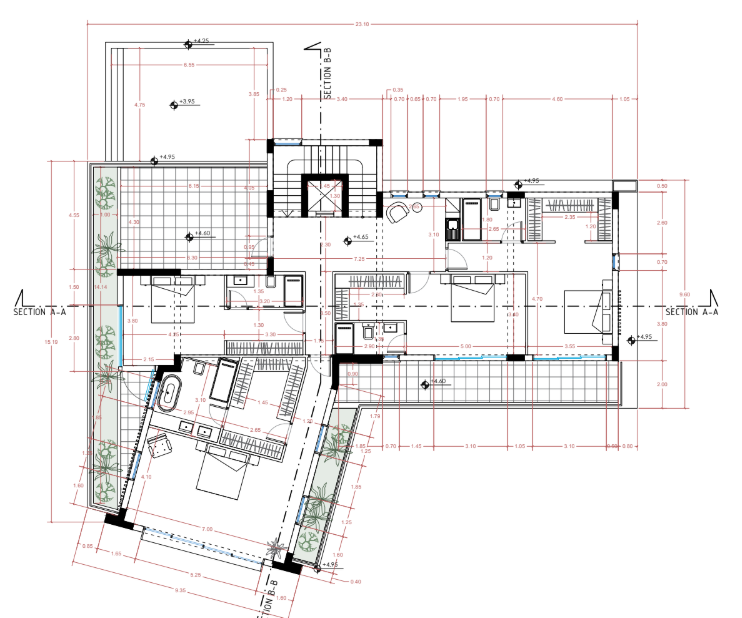
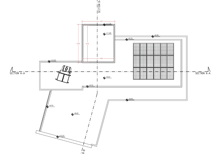
Πωλείται υπό ανέγερση πολυτελή έπαυλη πέντε υπνοδωματίων στην περιζήτητη περιοχή Άγιος Αθανάσιος της επαρχίας Λεμεσού, σχεδιασμένη με σύγχρονη αρχιτεκτονική, υψηλές προδιαγραφές κατασκευής και έμφαση στη λεπτομέρεια. Αποτελείται από 308 τ.μ. υπόγειο, 210 τ.μ. ισόγειο, 199 τ.μ. πρώτο όροφο και 962 τ.μ. οικόπεδο, προσφέροντας άνετους και λειτουργικούς χώρους ιδανικούς τόσο για καθημερινή διαβίωση όσο και για φιλοξενία. Η οικία διαθέτει πέντε ευρύχωρα υπνοδωμάτια με ιδιωτικά μπάνια και γκαρνταρόμπες, συνολικά πέντε χώρους υγιεινής, μεγάλες βεράντες με ανεμπόδιστη θέα, πρόνοια για σύστημα κλιματισμού και ενδοδαπέδιας θέρμανσης, έξυπνες υποδομές smart home, ανελκυστήρα με πρόσβαση σε όλους τους ορόφους, ιδιωτική πισίνα, φωτοβολταϊκό σύστημα, διαμορφωμένο κήπο με χώρους χαλάρωσης και BBQ, καλυμμένο χώρο στάθμευσης για πολλαπλά οχήματα, ευρύχωρο καθιστικό με μεγάλες γυάλινες επιφάνειες, εντυπωσιακή κουζίνα υψηλής αισθητικής με τραπεζαρία, αποθηκευτικούς χώρους και laundry room, καθώς και υπόγειο που μπορεί να διαμορφωθεί σε χώρο γυμναστηρίου, home cinema, spa ή κελάρι κρασιών. Το έργο διαθέτει πιστοποιητικό ενεργειακής απόδοσης Α, σύγχρονα θερμομονωτικά και ηχομονωτικά υλικά, ποιοτικά τελειώματα και βρίσκεται σε εξαιρετική τοποθεσία κοντά σε σχολεία, υπηρεσίες, καταστήματα και βασικές ανέσεις, συνδυάζοντας ιδιωτικότητα, πολυτέλεια και άμεση πρόσβαση στο κέντρο της πόλης. Τιμή πώλησης 4,000,000 ευρώ, πλέον Φ.Π.Α.
Owning a home is a keystone of wealth… both financial affluence and emotional security.
Suze OrmanTo provide the best experiences, we and our partners use technologies like cookies to store and/or access device information. Consenting to these technologies will allow us and our partners to process personal data such as browsing behavior or unique IDs on this site and show (non-) personalized ads. Not consenting or withdrawing consent, may adversely affect certain features and functions.
Click below to consent to the above or make granular choices. Your choices will be applied to this site only. You can change your settings at any time, including withdrawing your consent, by using the toggles on the Cookie Policy, or by clicking on the manage consent button at the bottom of the screen.