Στρόβολος, Λευκωσία, Κύπρος
Προς πώληση
€636,000
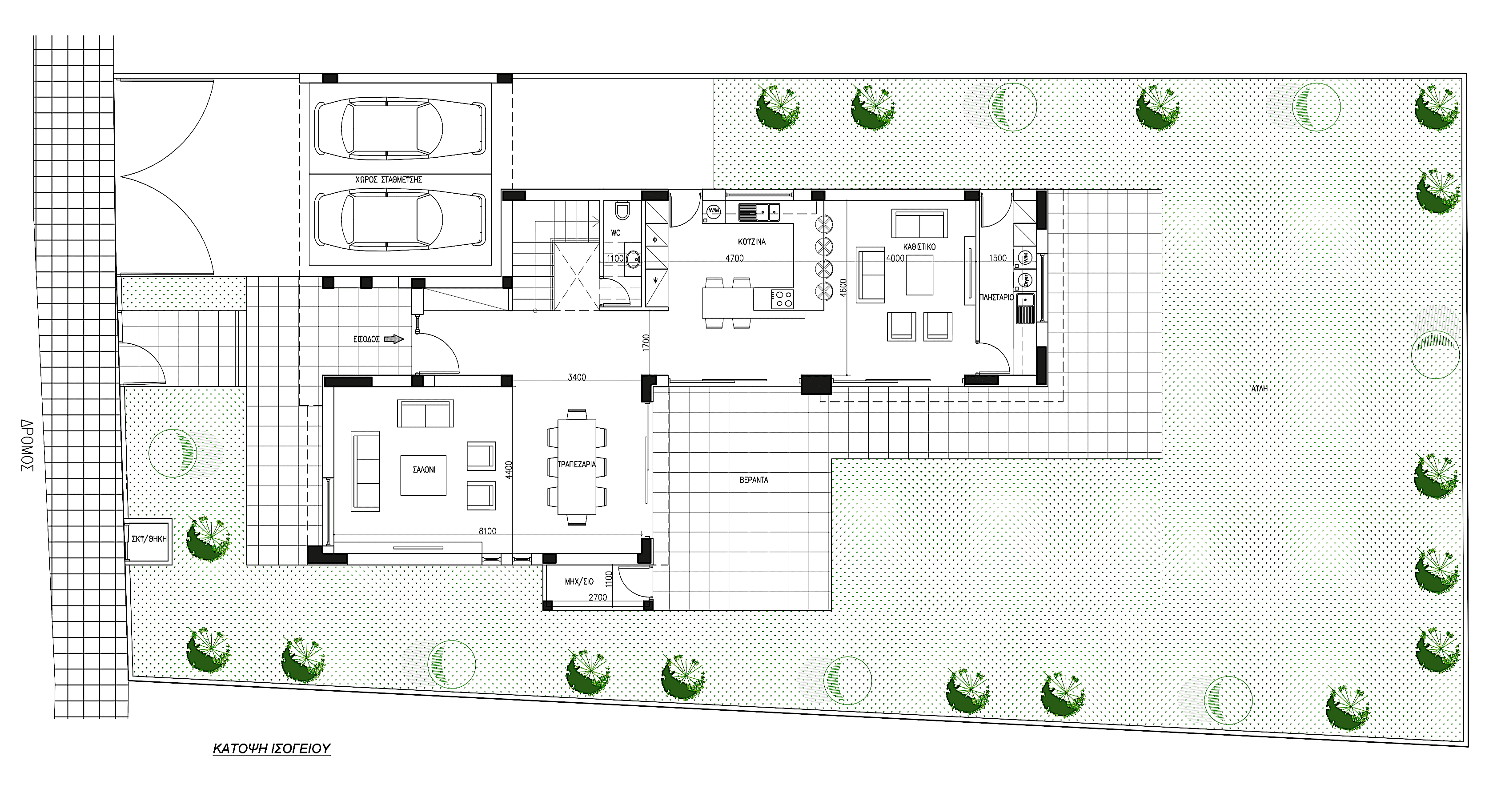
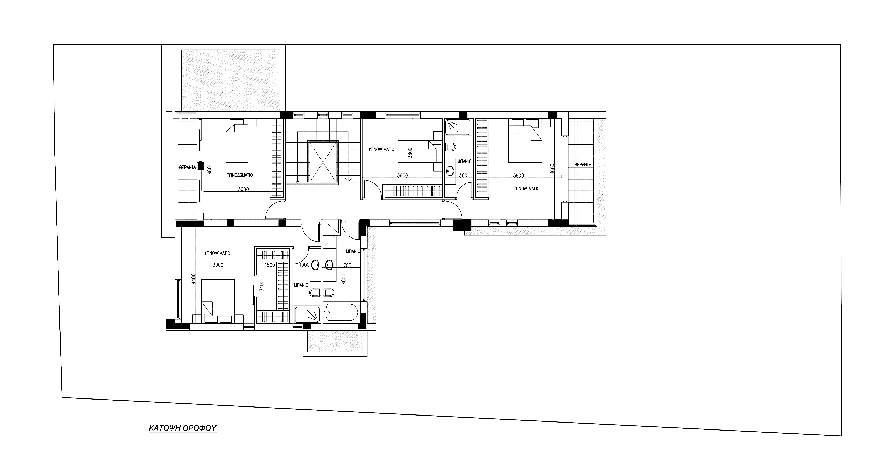
Πωλείται υπό ανέγερση πολυτελής ανεξάρτητη κατοικία τεσσάρων υπνοδωματίων στον Στρόβολο, περιοχή Αγίου Βασιλείου – επαρχία Λευκωσίας, με 255 τ.μ. εσωτερικό καλυμμένο χώρο, σε 565 τ.μ. οικόπεδο. Διαθέτει πρόνοιες για σύστημα κλιματισμού και κεντρικής θέρμανσης, τέσσερις χώρους υγιεινής εκ των οποίων en-suite και γκαρνταρόμπα στο κυρίως υπνοδωμάτιο καθώς και en-suite σε ακόμα ένα υπνοδωμάτιο, κυρίως μπάνιο και τουαλέτα ξένων, πλυσταριό, διπλό καλυμμένο χώρο στάθμευσης τύπου side by side, με μεγάλη αυλή με χώρο για πισίνα και αποθήκη. Διαθέτει πιστοποιητικό Ενεργειακής Απόδοσης Α’ και εγκατεστημένο Φωτοβολταϊκό σύστημα απόδοσης 3KW. Τιμή πώλησης €636,000 συν Φ.Π.Α.
Owning a home is a keystone of wealth… both financial affluence and emotional security.
Suze OrmanTo provide the best experiences, we and our partners use technologies like cookies to store and/or access device information. Consenting to these technologies will allow us and our partners to process personal data such as browsing behavior or unique IDs on this site and show (non-) personalized ads. Not consenting or withdrawing consent, may adversely affect certain features and functions.
Click below to consent to the above or make granular choices. Your choices will be applied to this site only. You can change your settings at any time, including withdrawing your consent, by using the toggles on the Cookie Policy, or by clicking on the manage consent button at the bottom of the screen.