Peyia, Paphos District, Cyprus
Προς πώληση
€850,000
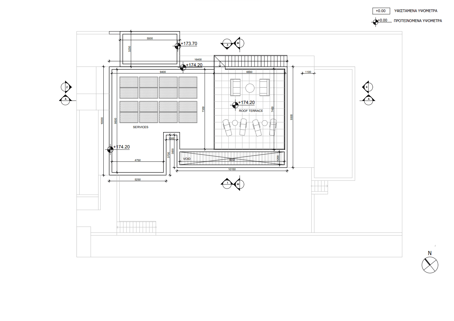
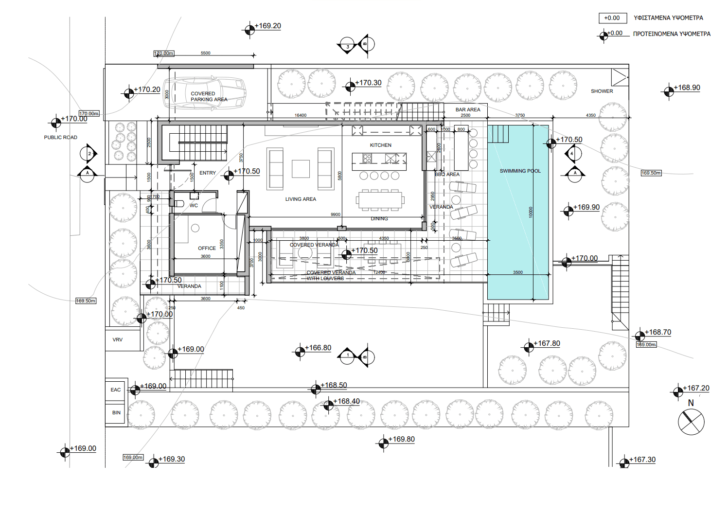
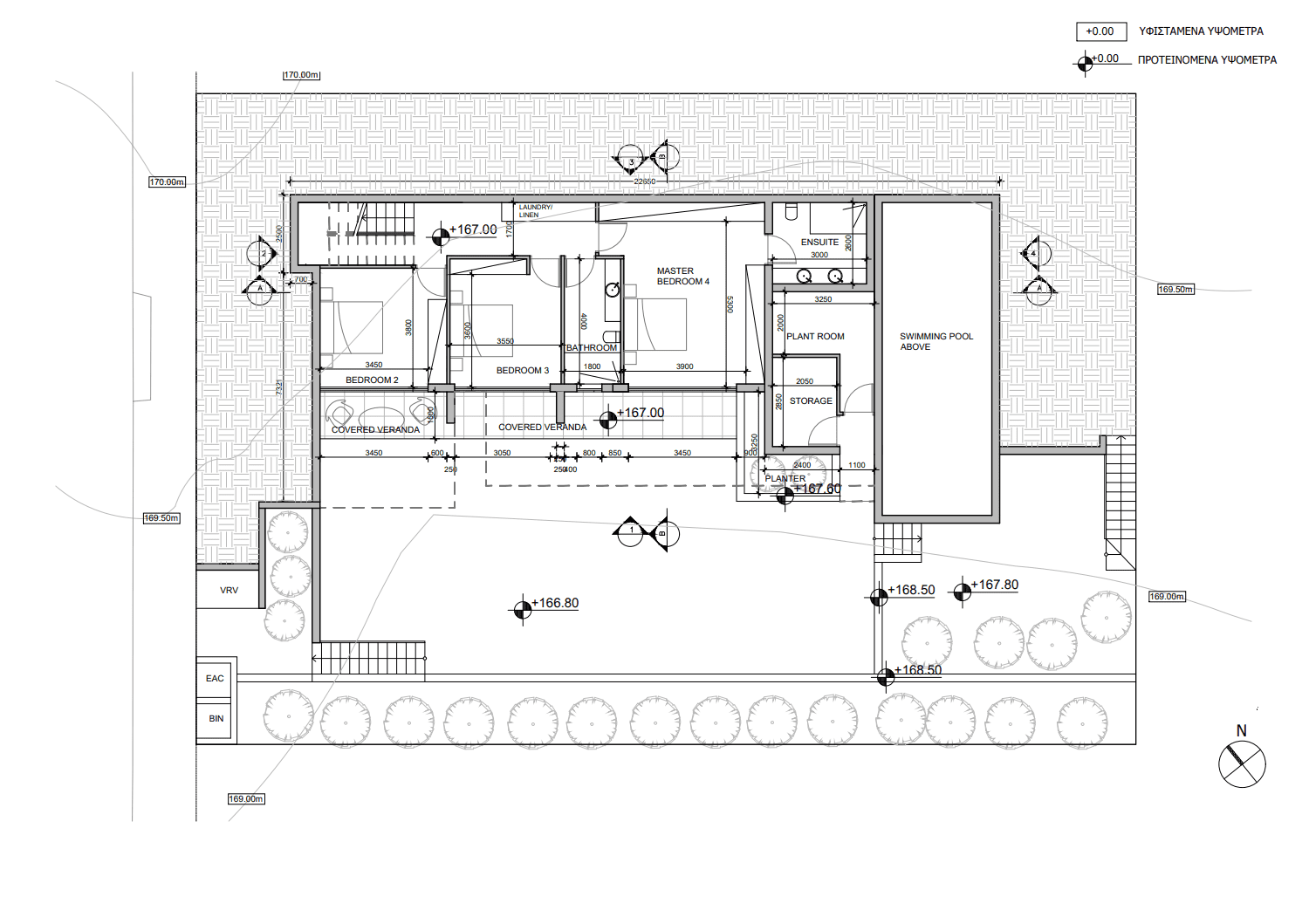
Πωλείται υπό ανέγερση πολυτελής έπαυλη τεσσάρων υπνοδωματίων στην Πέγεια – επαρχίας Πάφου. Αποτελείται από 210 τ.μ. καλυμμένο χώρο, 65 τ.μ. καλυμμένη βεράντα, 29 τ.μ. ακάλυπτη βεράντα, 30 τ.μ. κήπο οροφής, 18 τ.μ. καλυμμένο χώρο στάθμευσης, 19 τ.μ. αποθήκη/ plant room, 3,5 x 10 μέτρα πισίνα με εξωτερικό ντουζ και μπάρ, χτισμένη σε 624 τ.μ. οικόπεδο. Διαθέτει 3 χώρους υγιεινής, en suite στο κυρίως υπνοδωμάτιο, 2 χώρους στάθμευσης, εξωτερική κουζίνα και ψησταριά, πλυσταριό, plant room και αποθήκη. Η οικία διαθέτει επίσης εγκατεστημένο φωτοβολταϊκό σύστημα 10.1 KW, πλήρως εγκατεστημένη υποδαπέδια θέρμανση και κρυφό σύστημα VRV για ψύξη, ηλεκτρικό θερμοσίφωνα διπλού συστήματος / ηλιακό θερμοσίφωνα, επιπλέον διαθέτει σύστημα ασφαλείας με συναγερμό και κάμερες, ηλεκτρική καγκελόπορτα και ηλεκτρικό φορτιστή για αυτοκίνητα και τέλος διαθέτει πιστοποιητικό ενεργειακής απόδοσης Α+. Η έπαυλη βρίσκεται σε ειδυλλιακή τοποθεσία με πανοραμική θέα και βρίσκεται κοντά σε πολλές υπηρεσίες. Τιμή πώλησης 850,000 ευρώ πλέον Φ.Π.Α. Επίσης υπάρχει διαθέσιμο πακέτο με έξτρα χρέωση 50,000 ευρώ πλέον ΦΠΑ για πλήρη επίπλωση.
Owning a home is a keystone of wealth… both financial affluence and emotional security.
Suze OrmanTo provide the best experiences, we and our partners use technologies like cookies to store and/or access device information. Consenting to these technologies will allow us and our partners to process personal data such as browsing behavior or unique IDs on this site and show (non-) personalized ads. Not consenting or withdrawing consent, may adversely affect certain features and functions.
Click below to consent to the above or make granular choices. Your choices will be applied to this site only. You can change your settings at any time, including withdrawing your consent, by using the toggles on the Cookie Policy, or by clicking on the manage consent button at the bottom of the screen.