Peyia, Paphos District, South Cyprus, Cyprus
Προς πώληση
€620,000
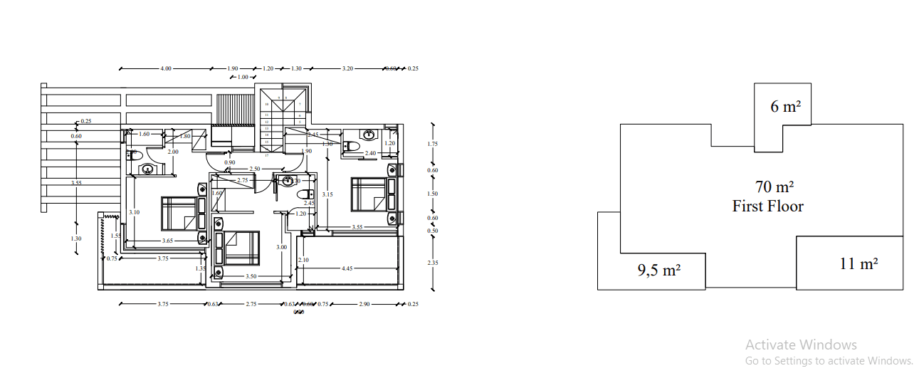
Πωλείται υπό ανέγερση πολυτελής έπαυλη τεσσάρων υπνοδωματίων στην Πέγεια – επαρχία Πάφου. Αποτελείται από 200 τ.μ. καλυμμένο χώρο, 30 τ.μ. ακάλυπτη βεράντα και είναι χτισμένη σε 500 τ.μ. οικόπεδο. Διαθέτει 4 χώρους υγιεινής, 3 en suite και 1 τουαλέτα ξένων, πρόνοιες για κλιματισμό και θέρμανση, γρανίτη στους πάγκους της κουζίνας, μαρμάρινες σκάλες, 2 χώρους στάθμευσης (καλυμμένο και ακάλυπτο), μεγάλο κήπο, μπαλκόνια, κήπο οροφής, πισίνα και μπάνιο δίπλα από την πισίνα. Βρίσκεται σε ήσυχη περιοχή, κοντά σε υπηρεσίες. Συνδυάζει θέα βουνού και θάλασσας. Τιμή πώλησης 620,000 ευρώ πλέον Φ.Π.Α.
Owning a home is a keystone of wealth… both financial affluence and emotional security.
Suze OrmanTo provide the best experiences, we and our partners use technologies like cookies to store and/or access device information. Consenting to these technologies will allow us and our partners to process personal data such as browsing behavior or unique IDs on this site and show (non-) personalized ads. Not consenting or withdrawing consent, may adversely affect certain features and functions.
Click below to consent to the above or make granular choices. Your choices will be applied to this site only. You can change your settings at any time, including withdrawing your consent, by using the toggles on the Cookie Policy, or by clicking on the manage consent button at the bottom of the screen.