Palodia Primary School, Eleftherias Avenue, Limassol, Palodeia, Limassol District, 4549, Cyprus
Προς πώληση
€1,200,000
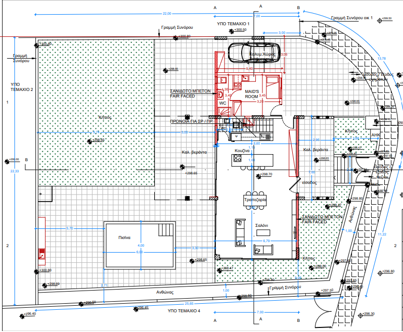
Πωλείται υπό ανέγερση πολυτελής έπαυλη τεσσάρων υπνοδωματίων στην Παλώδια στη Λεμεσό. Αποτελείται από 189 τ.μ. καλυμμένο εσωτερικό χώρο, 56 τ.μ. καλυμμένες βεράντες, 182 τ.μ. ακάλυπτες βεράντες, 180 τ.μ. κήπο και είναι χτισμένη σε 595 τ.μ. οικόπεδο. Διαθέτει 3 χώρους υγιεινής, en suite και γκαρνταρόμπα στο κυρίως υπνοδωμάτιο, στο ισόγειο διαθέτει δωμάτιο υπηρεσίας μαζί με χώρο υγιεινής και κουζίνα, ηλεκτρικά ρολά, πρόνοιες κλιματισμού, φωτοβολταϊκό σύστημα 5 KW, πιεστικό σύστημα νερού, 30 τ.μ. καλυμμένο χώρο στάθμευσης και πισίνα 4×8 μέτρα. Στην κατασκευή θα χρησιμοποιηθούν επιλεγμένα υλικά υψηλής ποιότητας. Βρίσκεται σε πολύ ωραία και ήσυχη περιοχή. Αναμενόμενη ημερομηνία παράδοσης στις αρχές του 2023. Τιμή πώλησης 1,200,00 ευρώ πλέον Φ.Π.Α.
Owning a home is a keystone of wealth… both financial affluence and emotional security.
Suze OrmanTo provide the best experiences, we and our partners use technologies like cookies to store and/or access device information. Consenting to these technologies will allow us and our partners to process personal data such as browsing behavior or unique IDs on this site and show (non-) personalized ads. Not consenting or withdrawing consent, may adversely affect certain features and functions.
Click below to consent to the above or make granular choices. Your choices will be applied to this site only. You can change your settings at any time, including withdrawing your consent, by using the toggles on the Cookie Policy, or by clicking on the manage consent button at the bottom of the screen.