Geroskipou, Cyprus
Προς πώληση
€810,000
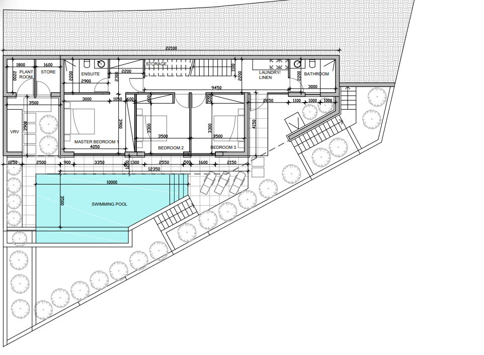
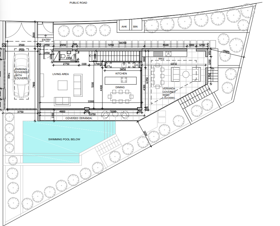
Πωλείται υπό ανέγερση πολυτελής έπαυλη τριών υπνοδωματίων στη περιοχή Γεροσκήπου της επαρχίας Πάφου. Αποτελείται από 172 τ.μ. καλυμμένο εσωτερικό χώρο, 75 τ.μ. καλυμμένη βεράντα και 28 τ.μ. καλυμμένο χώρο στάθμευσης, χτισμένη σε 405 τ.μ. οικόπεδο. Διαθέτει τρείς χώρους υγιεινής, en suite στο κυρίως υπνοδωμάτιο, αποθήκη, πλυσταριό, σύστημα κλιματισμού τύπου VRV, υποδαπέδια θέρμανση με heat pump, σύστημα ασφαλείας με κάμερες και σύστημα συναγερμού, φορτιστή ηλεκτρικών αυτοκίνητων και πισίνα. Βρίσκεται κοντά σε διάφορες ανέσεις και υπηρεσίες με θέα τη θάλασσα. Τιμή πώλησης 810,000 ευρώ πλέον ΦΠΑ. Υπάρχει διαθέσιμο πακέτο επίπλωσης με επιπλέον χρέωση 50,000 ευρώ πλέον ΦΠΑ.
Owning a home is a keystone of wealth… both financial affluence and emotional security.
Suze OrmanTo provide the best experiences, we and our partners use technologies like cookies to store and/or access device information. Consenting to these technologies will allow us and our partners to process personal data such as browsing behavior or unique IDs on this site and show (non-) personalized ads. Not consenting or withdrawing consent, may adversely affect certain features and functions.
Click below to consent to the above or make granular choices. Your choices will be applied to this site only. You can change your settings at any time, including withdrawing your consent, by using the toggles on the Cookie Policy, or by clicking on the manage consent button at the bottom of the screen.