Fassoula, Fasoula Lemesou, Limassol District, Cyprus, 4551, Cyprus
Προς πώληση
€620,000
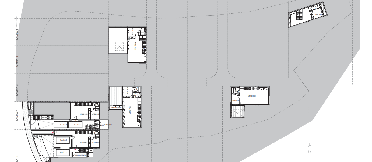
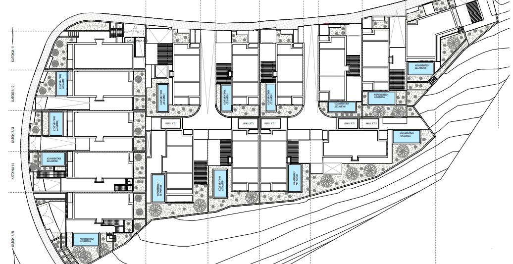
Πωλείται υπό ανέγερση πολυτελής ημιανεξάρτητη έπαυλη τριών υπνοδωματίων στη Φασούλα στη Λεμεσό. Αποτελείται από 151 τ.μ. καλυμμένους χώρους, 26 τ.μ. καλυμμένη βεράντα και είναι χτισμένη σε 253 τ.μ. οικόπεδο. Διαθέτει 3 χώρους υγιεινής, en suite στο κυρίως υπνοδωμάτιο, καλυμμένο χώρο στάθμευσης, υποδαπέδια θέρμανση, εγκατεστημένο σύστημα κλιματισμού, αποθήκη, οικιακούς αυτοματισμούς, υψηλή ενεργειακή απόδοση με χρήση θερμομόνωσης προσόψεων, αυλή με κήπο και πρόνοια πισίνας. Επιπρόσθετα, διαθέτει κρυφούς φωτισμούς, πόρτα ασφαλείας και ηλεκτρική καγκελόπορτα. Είναι Ενεργειακής Απόδοσης Α’. Αναμενόμενη παράδοση του έργου στις αρχές του 2026. Βρίσκεται σε πολύ καλή περιοχή, κοντά σε χώρο πρασίνου και κοντά σε υπηρεσίες. Τιμή πώλησης 620,000 ευρώ πλέον Φ.Π.Α.
Owning a home is a keystone of wealth… both financial affluence and emotional security.
Suze OrmanTo provide the best experiences, we and our partners use technologies like cookies to store and/or access device information. Consenting to these technologies will allow us and our partners to process personal data such as browsing behavior or unique IDs on this site and show (non-) personalized ads. Not consenting or withdrawing consent, may adversely affect certain features and functions.
Click below to consent to the above or make granular choices. Your choices will be applied to this site only. You can change your settings at any time, including withdrawing your consent, by using the toggles on the Cookie Policy, or by clicking on the manage consent button at the bottom of the screen.