Protaras, Κύπρος
Προς πώληση
€472,000
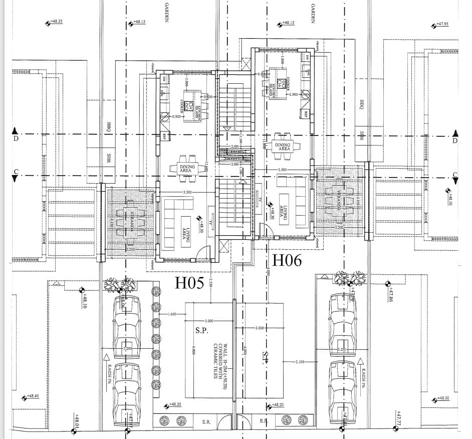
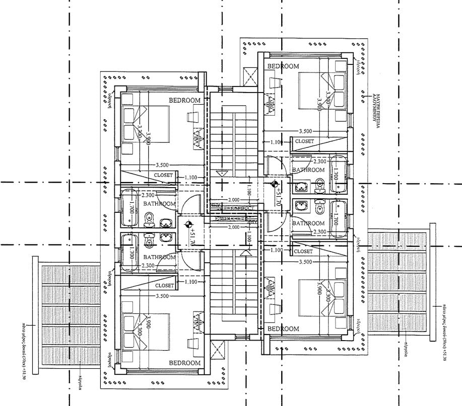
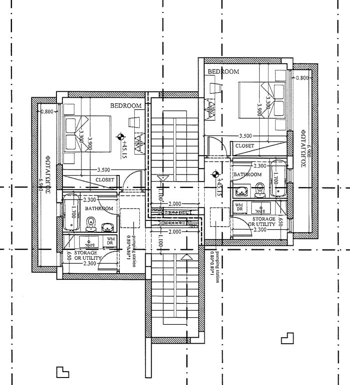
Πωλείται υπό ανέγερση ημιανεξάρτητη πολυτελής οικία τριών υπνοδωματίων στην Αγία Τριάδα – επαρχία Αμμοχώστου, σε πολύ κοντινή απόσταση απο την παραλία της Αγίας Τριάδας, με 162 τ.μ. καλυμμένους χώρους και 28 τ.μ. καλυμμένες βεράντες, σε 234 τ.μ. οικόπεδο. Το ισόγειο αποτελείται από ενιαίο σαλόνι, κουζίνα και τραπεζαρία. Στον πρώτο όροφο υπάρχουν 2 υπνοδωμάτια και τα 2 με en suite καθώς επίσης και άλλο ένα υπνοδωμάτιο στο υπόγειο με το κυρίως μπάνιο και αποθήκη ή πλυσταριό. Διαθέτει δύο χώρους στάθμευσης, κήπο, πρόνοιες για κλιματισμό και εγκατεστημένη πισίνα. Αναμενόμενη ημερομηνία παράδοσης Δεκέμβριος 2026. Τιμή πώλησης €472,000 πλέον Φ.Π.Α.
Owning a home is a keystone of wealth… both financial affluence and emotional security.
Suze OrmanTo provide the best experiences, we and our partners use technologies like cookies to store and/or access device information. Consenting to these technologies will allow us and our partners to process personal data such as browsing behavior or unique IDs on this site and show (non-) personalized ads. Not consenting or withdrawing consent, may adversely affect certain features and functions.
Click below to consent to the above or make granular choices. Your choices will be applied to this site only. You can change your settings at any time, including withdrawing your consent, by using the toggles on the Cookie Policy, or by clicking on the manage consent button at the bottom of the screen.