Sea Caves, Peyia, Paphos District, Cyprus, 8570, Cyprus
Προς πώληση
€1,650,000
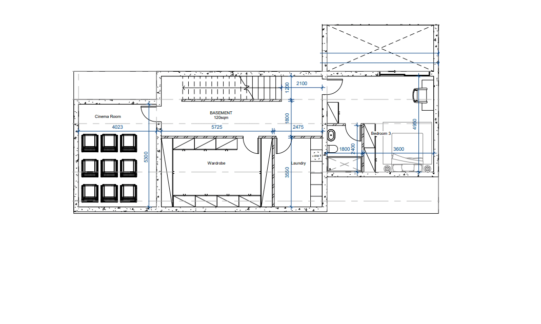
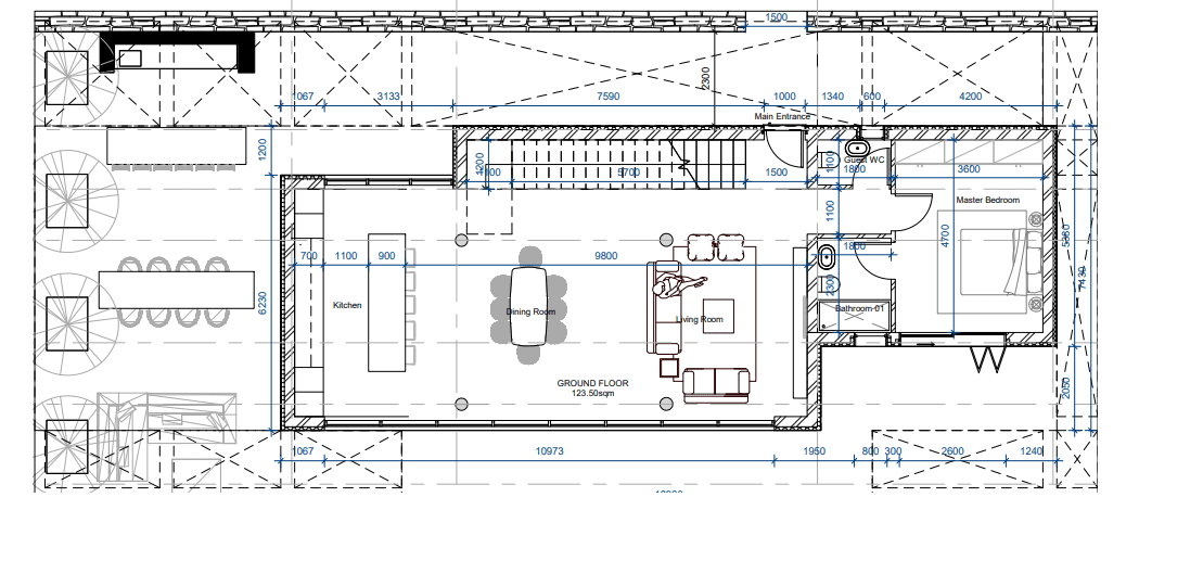
Πωλείται υπο ανέγερση πολυτελές μονοκατοικία τριών υπνοδωματίων στις Θαλασσινές Σπηλιές, στη Πέγεια της επαρχίας Πάφου. Αποτελείται από 190 τ.μ. καλυμμένους εσωτερικούς χώρους και 30 τ.μ. καλυμμένες βεράντες, χτισμένη σε 1500 τ.μ. οικόπεδο, ενεργειακής απόδοσης Α. Διαθέτει τέσσερις χώρους υγιεινής, en suite και στα τρία υπνοδωμάτια, γκαρνταρόμπα στο κυρίως υπνοδωμάτιο, σύστημα κλιματισμού τύπου VRV, υπό δαπέδια θέρμανση, ψησταριά, πισίνα, συναγερμό και ημι ακάλυπτο χώρο στάθμευσης. Τέλος διαθέτει πρόνοιες για ηλεκτρικές κουρτίνες. Βρίσκεται σε ήσυχη περιοχή κοντά σε χώρο πρασίνου με πανοραμική θέα την θάλασσα. Τιμή πώλησης 1,650,000 πλέον Φ.Π.Α.
Owning a home is a keystone of wealth… both financial affluence and emotional security.
Suze OrmanTo provide the best experiences, we and our partners use technologies like cookies to store and/or access device information. Consenting to these technologies will allow us and our partners to process personal data such as browsing behavior or unique IDs on this site and show (non-) personalized ads. Not consenting or withdrawing consent, may adversely affect certain features and functions.
Click below to consent to the above or make granular choices. Your choices will be applied to this site only. You can change your settings at any time, including withdrawing your consent, by using the toggles on the Cookie Policy, or by clicking on the manage consent button at the bottom of the screen.