Kapparis, Paralimni, Famagusta District, Cyprus, 5315, Cyprus
Προς πώληση
€800,000
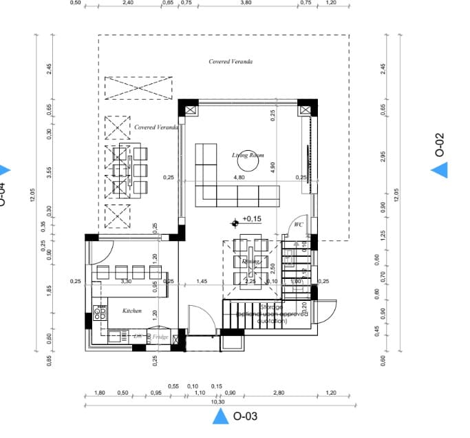
Πωλείται ετοιμοπαράδοτη οικία τεσσάρων υπνοδωματίων στον Κάππαρη – επαρχίας Αμμοχώστου. Αποτελείται από 155 τ.μ. καλυμμένο εσωτερικό χώρο, 41 τ.μ. καλυμμένες βεράντες, 18 τ.μ. κήπο οροφής και προαιρετική πισίνα 8 x 3 μέτρα, χτισμένη σε 320 τ.μ. οικόπεδο. Διαθέτει 5 χώρους υγιεινής, ensuite στο κυρίως υπνοδωμάτιο, αυλή με κήπο, πρόνοιες κλιματισμού σε όλους τους χώρους, θερμομονωτικά διπλά ενεργειακά τζάμια, μοντερνά και ενιαία κουζίνα μαζί με το καθιστικό, φωτοβολταϊκό σύστημα, πρόνια για κήπο οροφής και πιεστικό σύστημα νερού. Η οικία είναι Ενεργειακής Απόδοσης Α’ και θα χρησιμοποιηθούν άριστης ποιότητας υλικά στην κατασκευή. Η έπαυλη βρίσκεται σε προνομιακή και ήσυχη τοποθεσία κοντά σε διάφορες ανέσεις και σε απόσταση 450 μέτρων από την παραλία. Τιμή πώλησης 800,000 ευρώ πλέον Φ.Π.Α.
Owning a home is a keystone of wealth… both financial affluence and emotional security.
Suze OrmanTo provide the best experiences, we and our partners use technologies like cookies to store and/or access device information. Consenting to these technologies will allow us and our partners to process personal data such as browsing behavior or unique IDs on this site and show (non-) personalized ads. Not consenting or withdrawing consent, may adversely affect certain features and functions.
Click below to consent to the above or make granular choices. Your choices will be applied to this site only. You can change your settings at any time, including withdrawing your consent, by using the toggles on the Cookie Policy, or by clicking on the manage consent button at the bottom of the screen.