Δεκέλεια
Προς πώληση
€1,350,000
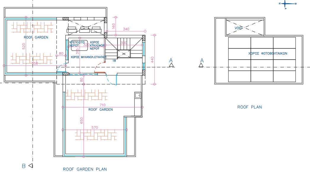
Πωλείται υπό ανέγερση πολυτελής παραθαλάσσια κατοικία τεσσάρων υπνοδωματίων στην Δεκέλεια, επαρχία Λάρνακας. Αποτελείται από 218 τ.μ. καλυμμένο εσωτερικό χώρο, 31,50 τ.μ. καλυμμένες βεράντες, 81 τ.μ κήπο οροφής και 31,50 τ.μ. χώρος στάθμευσης σε 694 τ.μ. οικόπεδο. Το ισόγειο αποτελείται από ενιαία κουζίνα και σαλόνι, ένα υπνοδωμάτιο με ιδιωτικό μπάνιο και μια τουλέτα επισκεπτών. Ο πρώτος όροφος αποτελείται από τρία υπνοδωμάτια όλα με ιδιωτικά μπάνια (master με δωμάτιο-γκαρνταρόμπα) όλα με θέα στη θάλασσα. Υπάρχει επίσης μια μικρή κουζίνα/πλυσταριό. Από αυτό το επίπεδο υπάρχει πρόσβαση στο ουσιαστικό κήπο οροφής (roof garden), με πλήρη θέα στη θάλασσα και χώρο νιπτήρα και μπάρμπεκιου(BBQ), για να απολαύσετε το κλίμα της Κύπρου που ευνοεί την υπαίθρια ζωή. Η κατοικία διαθέτει πρόνοια για υποδαπέδια θέρμανση, σύστημα φωτοβολταικών, πρόνοια για ανέγερση γυμναστηρίου, ιδιωτική πισίνα υπερχείλισης και δύο χώρους στάθμευσης τύπου side by side. Είναι Ενεργειακής Απόδοσης Α’. Βρίσκεται σε εξαιρετική τοποθεσία σε μια ήσυχη περιοχή και μόλις 500 μέτρα από την παραλία και κοντά από όλες τις απαραίτητες ανέσεις όπως σούπερ μάρκετ, τράπεζες, φαρμακεία, καταστήματα καθώς και εύκολη πρόσβαση στον αυτοκινητόδρομο, κάνοντας το Διεθνές Αεροδρόμιο Λάρνακας σε απόσταση μόλις 15 λεπτών οδικώς και μόλις 25 λεπτών από τη διάσημη Αγία Νάπα και τον Πρωταρά. Επιπλέον είναι απαλλαγμένο από υποθήκη, επομένως οι τίτλοι ιδιοκτησίας είναι εγγυημένοι. Τιμή πώλησης 1,350.000 ευρώ πλέον Φ.Π.Α.
Owning a home is a keystone of wealth… both financial affluence and emotional security.
Suze OrmanTo provide the best experiences, we and our partners use technologies like cookies to store and/or access device information. Consenting to these technologies will allow us and our partners to process personal data such as browsing behavior or unique IDs on this site and show (non-) personalized ads. Not consenting or withdrawing consent, may adversely affect certain features and functions.
Click below to consent to the above or make granular choices. Your choices will be applied to this site only. You can change your settings at any time, including withdrawing your consent, by using the toggles on the Cookie Policy, or by clicking on the manage consent button at the bottom of the screen.