Αραδίππου, Δήμος Αραδίππου, Επαρχία Λάρνακας, Κύπρος
Προς πώληση
€225,000
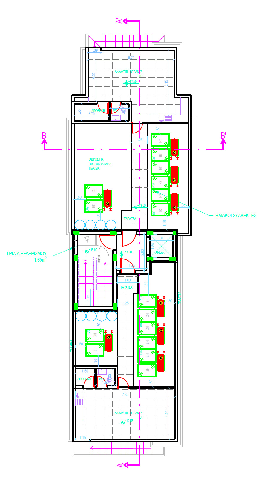
Πωλείται υπό ανέγερση ανεξάρτητο ρετιρέ διαμέρισμα δύο υπνοδωματίων στην Αραδίππου – επαρχία Λάρνακας, με 81 τ.μ. καλυμμένο εσωτερικό χώρο, 20 τ.μ. καλυμμένη βεράντα και 31 τ.μ. κήπο οροφής στον 3ο όροφο τριώροφης πολυκατοικίας με 8 διαμερίσματα στο σύνολο. Διαθέτει ενιαίο χώρο κουζίνας, τραπεζαρίας και σαλονιού, δύο χώρους υγιεινής εκ των οποίων en-suite στο κυρίως υπνοδωμάτιο, ηλιακό θερμοσίφωνα, πρόνοια συστημάτων κλιματισμού και ηλεκτρικής θέρμανσης, πρόνοια συστήματος φωτοβολταϊκών και φόρτισης ηλεκτρικού αυτοκινήτου, αποθήκη και καλυμμένο χώρο στάθμευσης. Το κτίριο θα κατασκευαστεί με πρώτης τάξεως υλικά και είναι ενεργειακής κλάσης Α’. Βρίσκεται σε εξαιρετική και προνομιούχα τοποθεσία, πλησίον του κυκλικού κόμβου της Αραδίππου, με εύκολη πρόσβαση στον αυτοκινητόδρομο προς Λευκωσία, Λεμεσό και Αμμόχωστο και πολύ κοντά σε πληθώρα υπηρεσιών και ανέσεων. Τιμή πώλησης 225,000 ευρώ πλέον Φ.Π.Α.
Owning a home is a keystone of wealth… both financial affluence and emotional security.
Suze OrmanTo provide the best experiences, we and our partners use technologies like cookies to store and/or access device information. Consenting to these technologies will allow us and our partners to process personal data such as browsing behavior or unique IDs on this site and show (non-) personalized ads. Not consenting or withdrawing consent, may adversely affect certain features and functions.
Click below to consent to the above or make granular choices. Your choices will be applied to this site only. You can change your settings at any time, including withdrawing your consent, by using the toggles on the Cookie Policy, or by clicking on the manage consent button at the bottom of the screen.