Paphos Municipality, Paphos District, Cyprus
Προς πώληση
€480,000
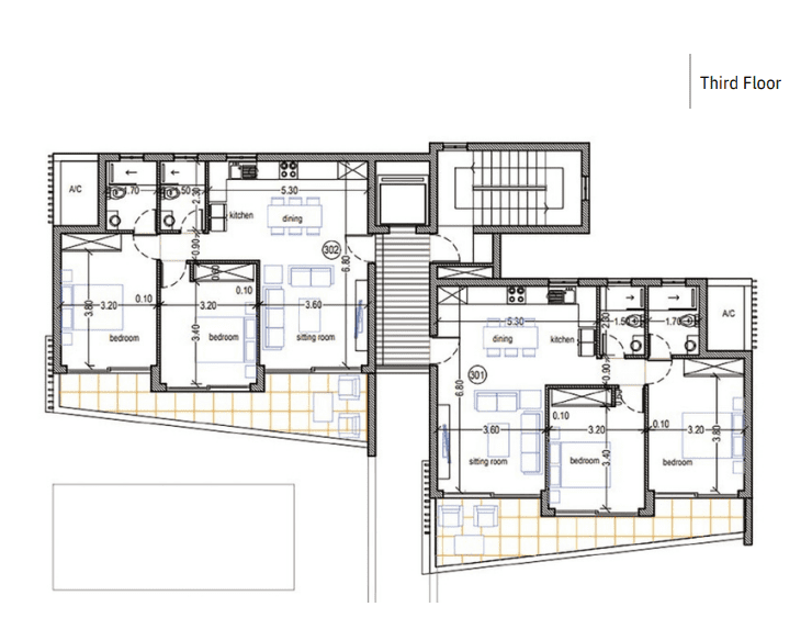
Πωλείται υπό ανέγερση ρετιρέ διαμέρισμα δυο υπνοδωματίων στη περιοχή Universal επαρχίας Πάφου. Αποτελείται από 76.6 τ.μ. καλυμμένους εσωτερικούς χώρους, 18 τ.μ. καλυμμένες βεράντες, 19.21 τ.μ. καλυμμένο χώρο στάθμευσης και 45 τ.μ. κήπο οροφής. Είναι στον τρίτο όροφο μικρής πολυκατοικίας με έξι διαμερίσματα στο σύνολο. Διαθέτει δυο χώρους υγιεινής, ensuite στο κυρίως υπνοδωμάτιο, πλήρως εγκατεστημένο σύστημα κλιματισμού τύπου VRV, αποθήκη και ηλιακό λέβητα νερού. Επίσης η πολυκατοικία διαθέτει κοινόχρηστη πισίνα και αποδυτήρια. Βρίσκεται σε πάρα πολύ καλή περιοχή κοντά σε όλες τις ανέσεις. Τιμή πώλησης 480.000 ευρώ πλέον Φ.Π.Α. Τέλος διατίθεται πακέτο επίπλωσης με επιπλέον χρέωση 20.000 ευρώ πλέον Φ.Π.Α. καθώς και πακέτο για σύστημα έξυπνου σπιτιού με επιπλέον χρέωση 12.000 ευρώ πλέον Φ.Π.Α.
Owning a home is a keystone of wealth… both financial affluence and emotional security.
Suze OrmanTo provide the best experiences, we and our partners use technologies like cookies to store and/or access device information. Consenting to these technologies will allow us and our partners to process personal data such as browsing behavior or unique IDs on this site and show (non-) personalized ads. Not consenting or withdrawing consent, may adversely affect certain features and functions.
Click below to consent to the above or make granular choices. Your choices will be applied to this site only. You can change your settings at any time, including withdrawing your consent, by using the toggles on the Cookie Policy, or by clicking on the manage consent button at the bottom of the screen.