Limassol City Centre Post Office, 2, Saripolou, Historical Center, Agia Napa, Limassol, Limassol Municipality, Limassol District, Cyprus, 3036, Cyprus
Προς πώληση
€359,000
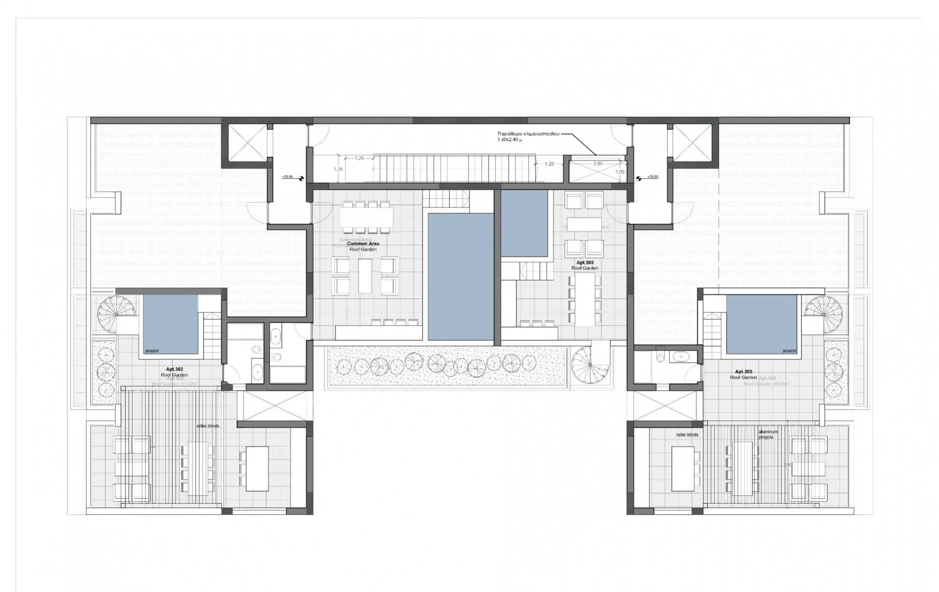
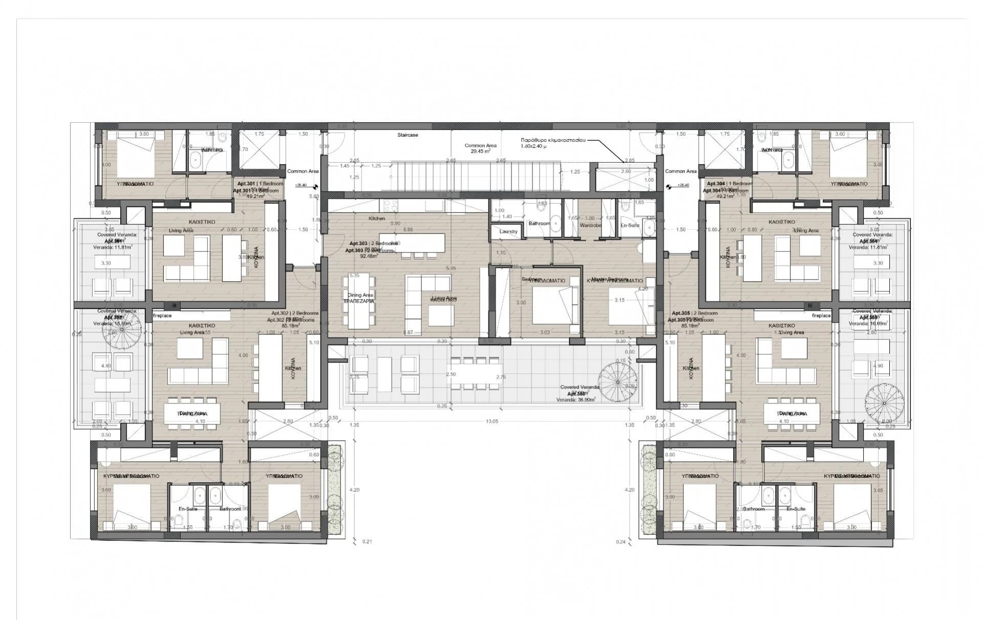
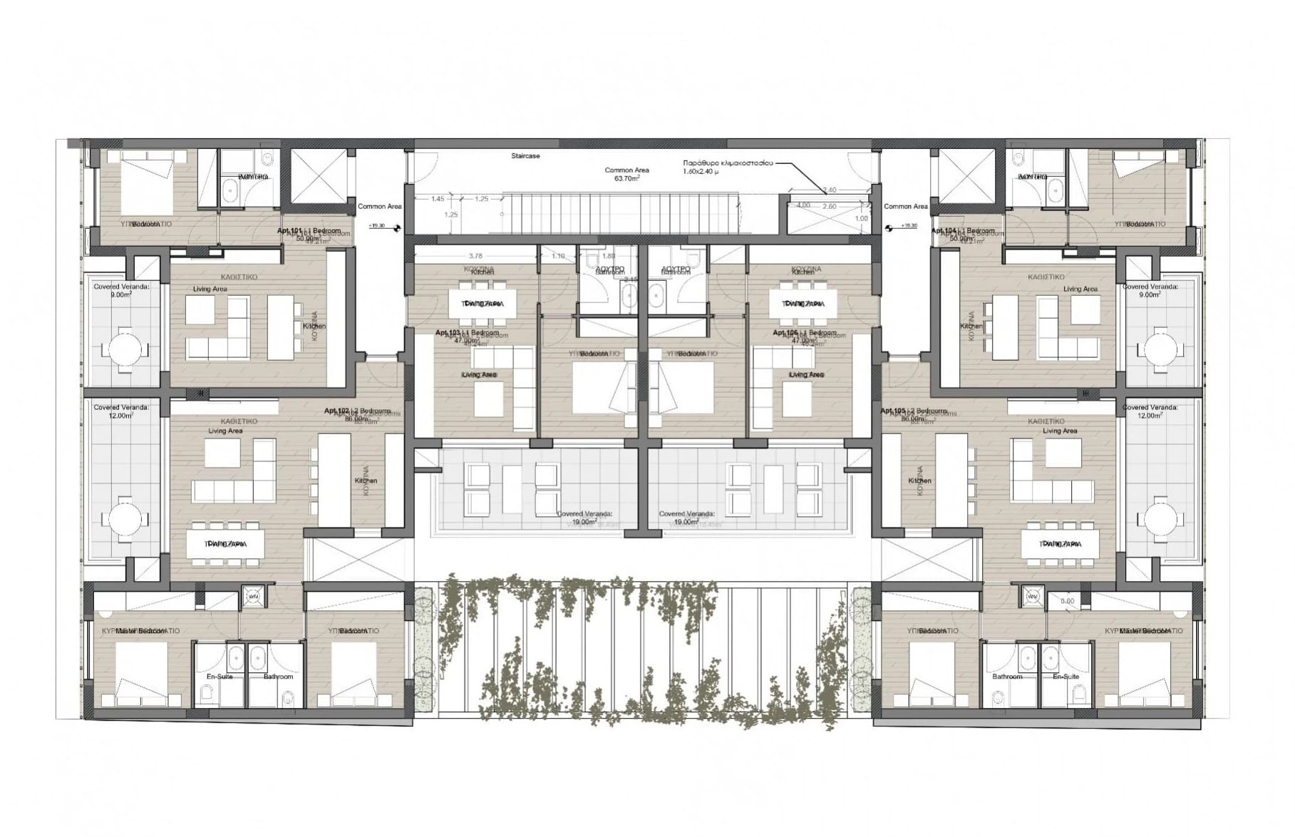
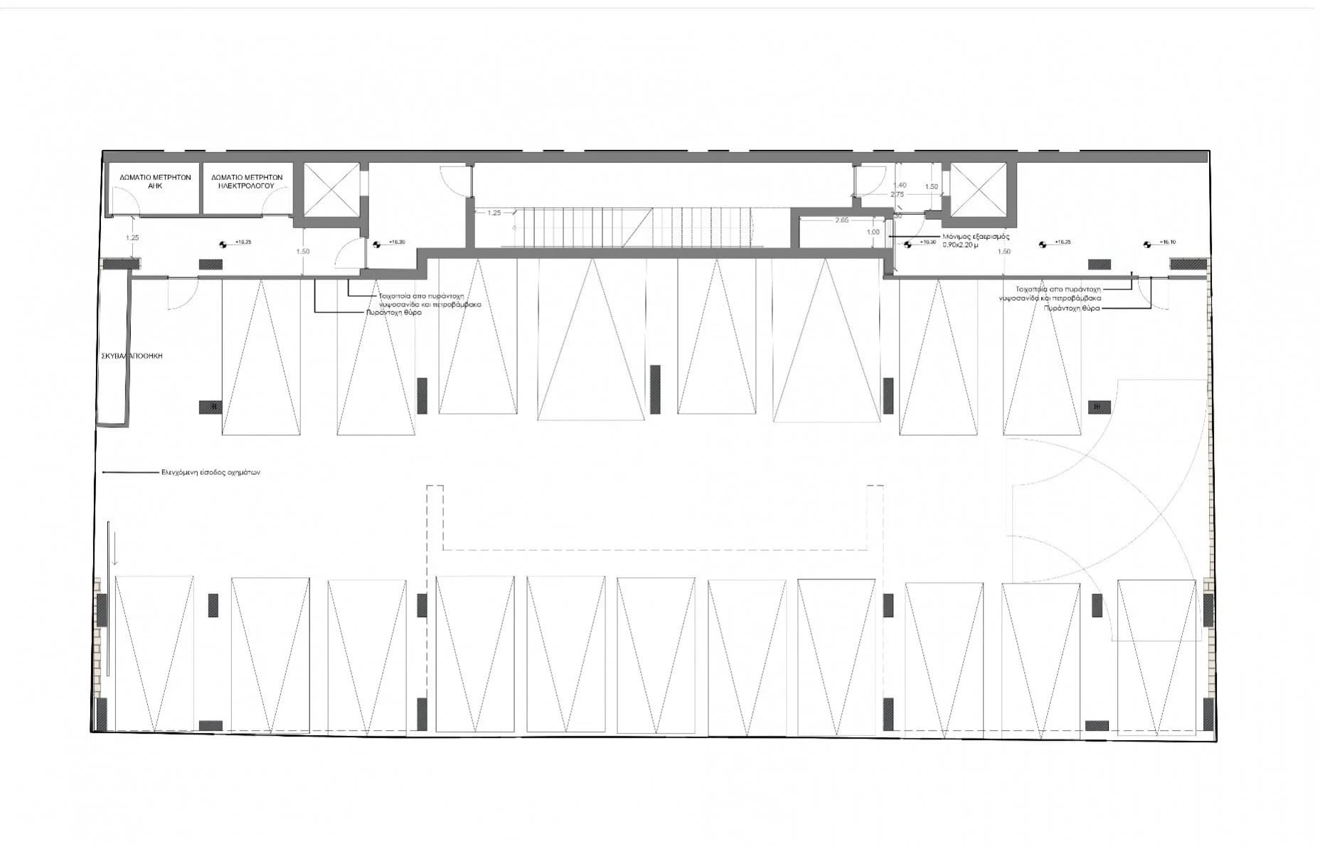
Πωλείται υπό ανέγερση ρετιρέ διαμέρισμα ένα υπνοδωματίου στην παλία πόλη της Λεμεσού. Αποτελείται από 46 τ.μ. καλυμμένο εσωτερικό χώρο, 19 τ.μ. καλυμμένη βεράντα και 4 τ.μ. κήπο οροφής. Διαθέτει ένα χώρο υγιεινής, καλυμμένο χώρο στάθμευσης, αποθήκη, πρόνοια κλιματισμού και ιδιωτική πισίνα. Είναι στον τρίτο όροφο τριώροφης πολυκατοικίας. Αναμενόμενη ημερομηνία παράδοσης τον Απρίλιο 2025. Βρίσκεται σε πολύ ωραία περιοχή, κοντά σε όλες τις υπηρεσίες και μόλις μερικά λεπτά από την θάλασσα. Τιμή πώλησης 359,000 ευρώ πλέον Φ.Π.Α.
Owning a home is a keystone of wealth… both financial affluence and emotional security.
Suze OrmanTo provide the best experiences, we and our partners use technologies like cookies to store and/or access device information. Consenting to these technologies will allow us and our partners to process personal data such as browsing behavior or unique IDs on this site and show (non-) personalized ads. Not consenting or withdrawing consent, may adversely affect certain features and functions.
Click below to consent to the above or make granular choices. Your choices will be applied to this site only. You can change your settings at any time, including withdrawing your consent, by using the toggles on the Cookie Policy, or by clicking on the manage consent button at the bottom of the screen.