Larnaca, Larnaca District, Cyprus
Προς πώληση
€335,000
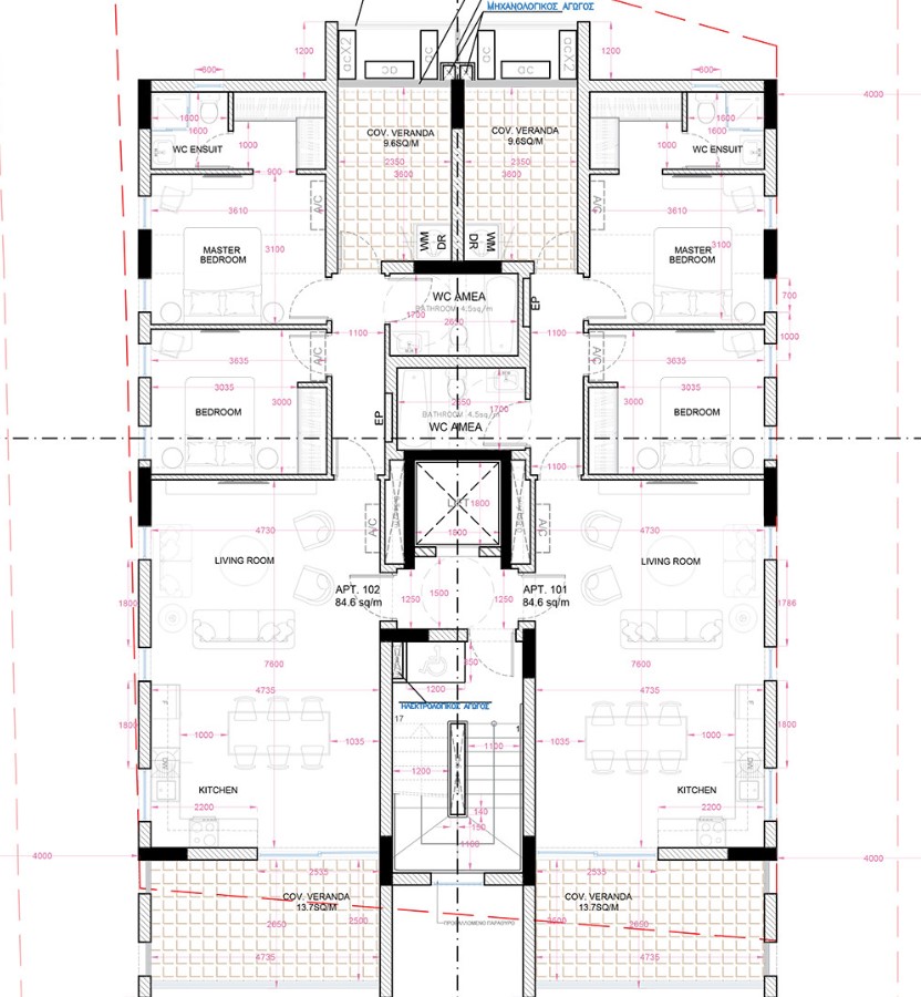
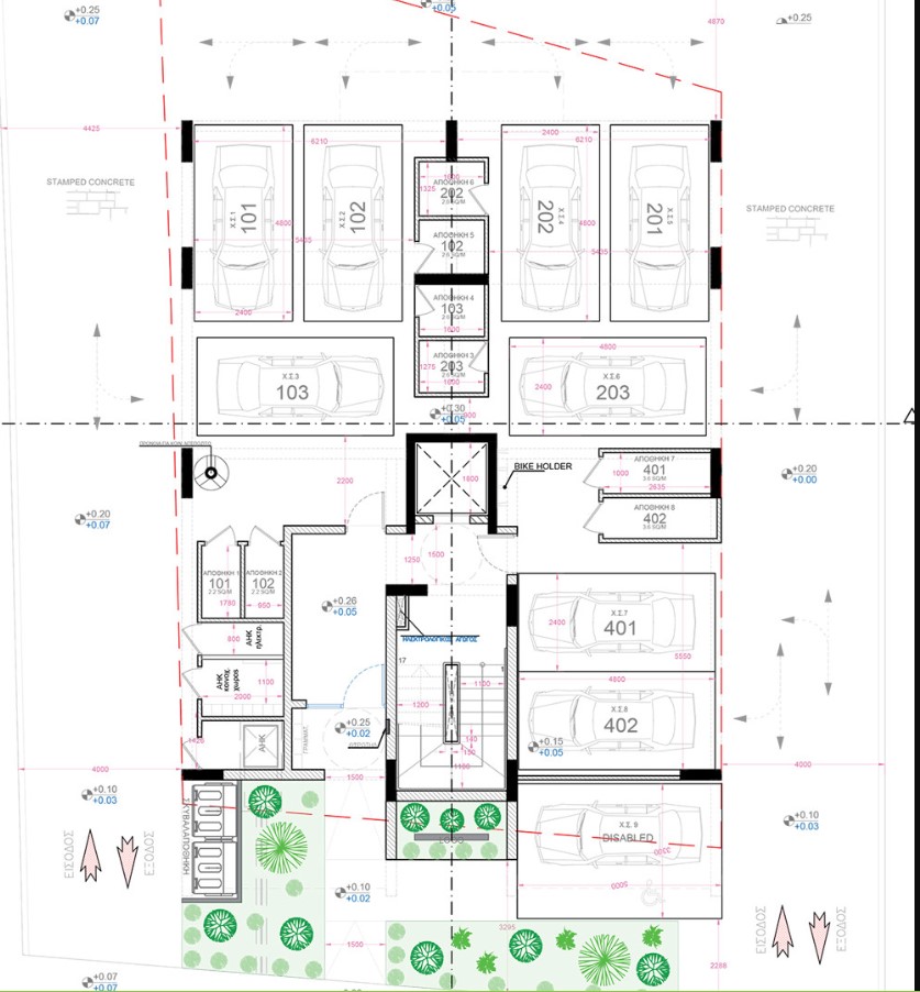
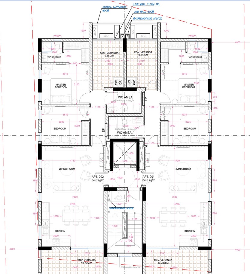
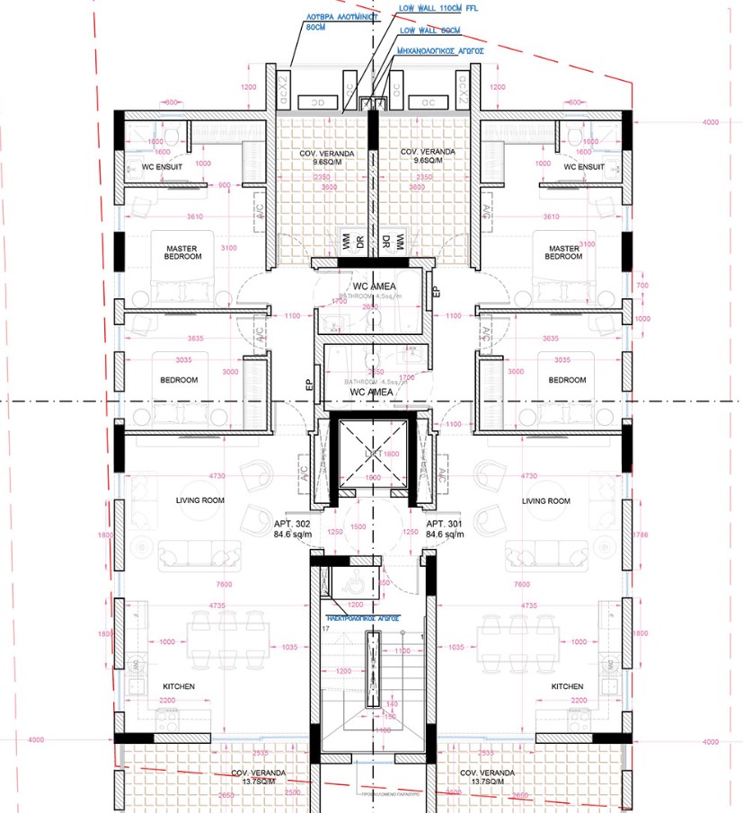
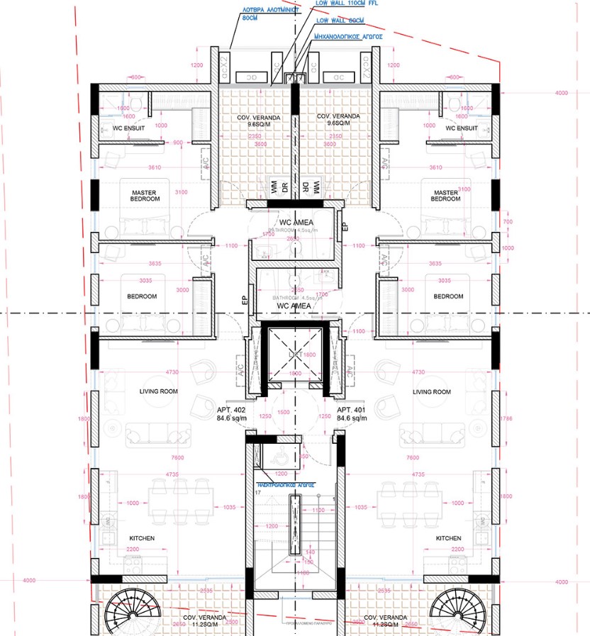
Πωλείται υπό ανέγερση διμέρισμα δύο υπνοδωματίων στο κέντρο της πόλης – επαρχία Λάρνακας, στον 4ο όροφο τετραόροφης πολυκατοικίας με 85 διαμερίσματα συνολικά. Το διαμέρισμα αποτελείται από 85 τ.μ. καλυμμένο εσωτερικό χώρο, 23 τ.μ. καλυμμένη βεράντα και 50 τ.μ. κήπο οροφής. Είναι ευρύχωρο, ευήλιο, με άνετους και λειτουργικούς χώρους. Διαθέτει ενιαίο χώρο κουζίνας, σαλονιού και τραπεζαρίας, 2 χώρους υγιεινής, en suite στο κυρίως υπνοδωμάτιο, πιεστικό σύστημα νερού, εγκατεστημένα συστήματα κλιματισμού, αποθήκη και καλυμμένο χώρο στάθμευσης. Βρίσκεται σε προνομιακή τοποθεσία με εύκολη πρόσβαση σε όλες τις κύριες ανέσεις. Τιμή πώλησης 335.000 ευρώ πλέον Φ.Π.Α.
Owning a home is a keystone of wealth… both financial affluence and emotional security.
Suze OrmanTo provide the best experiences, we and our partners use technologies like cookies to store and/or access device information. Consenting to these technologies will allow us and our partners to process personal data such as browsing behavior or unique IDs on this site and show (non-) personalized ads. Not consenting or withdrawing consent, may adversely affect certain features and functions.
Click below to consent to the above or make granular choices. Your choices will be applied to this site only. You can change your settings at any time, including withdrawing your consent, by using the toggles on the Cookie Policy, or by clicking on the manage consent button at the bottom of the screen.