Strovolos, Greater Nicosia, Nicosia District, Cyprus
Προς πώληση
€190,000
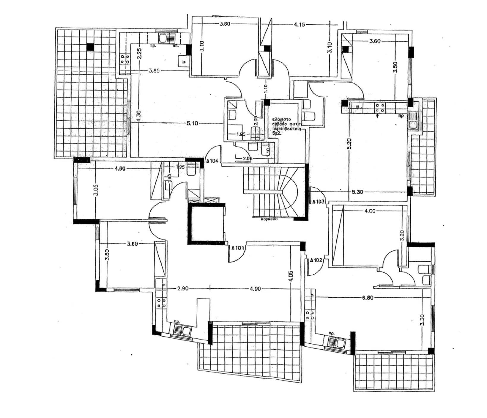
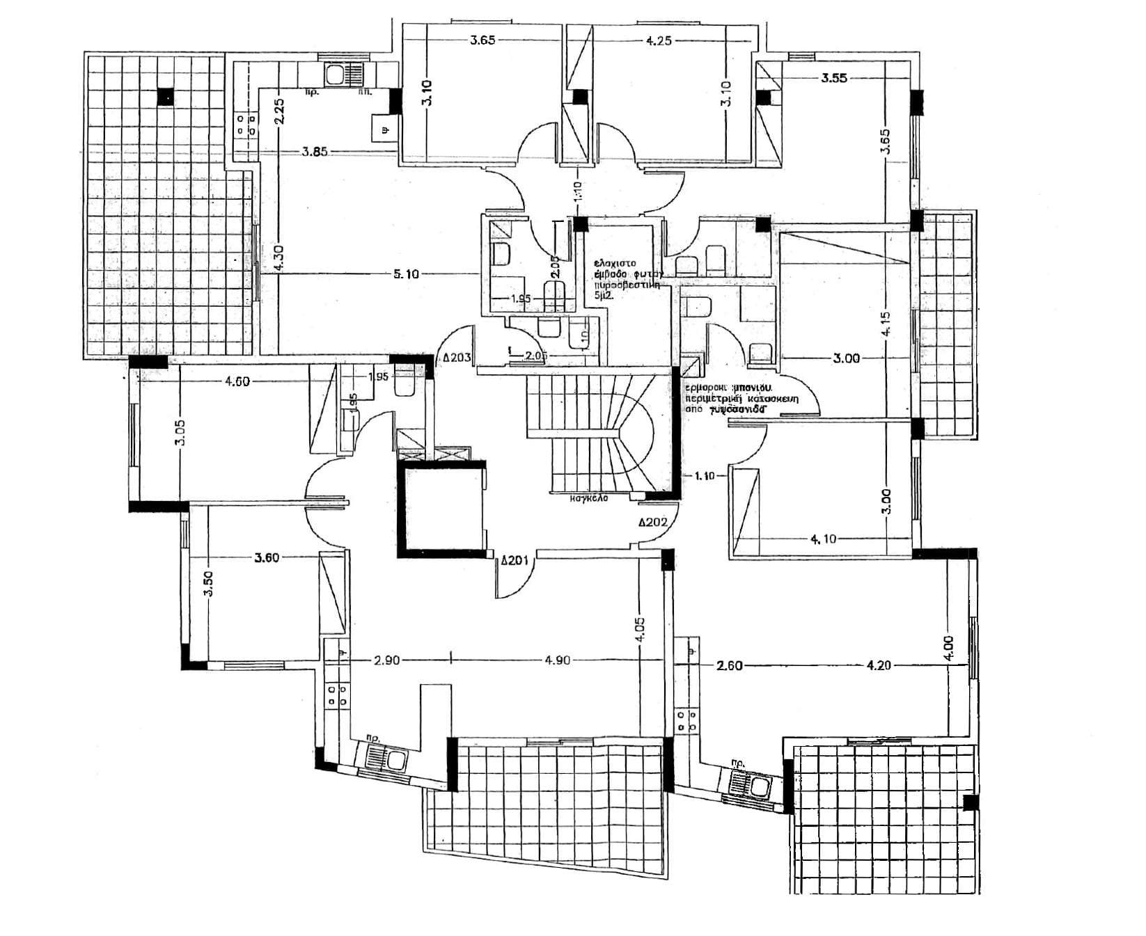
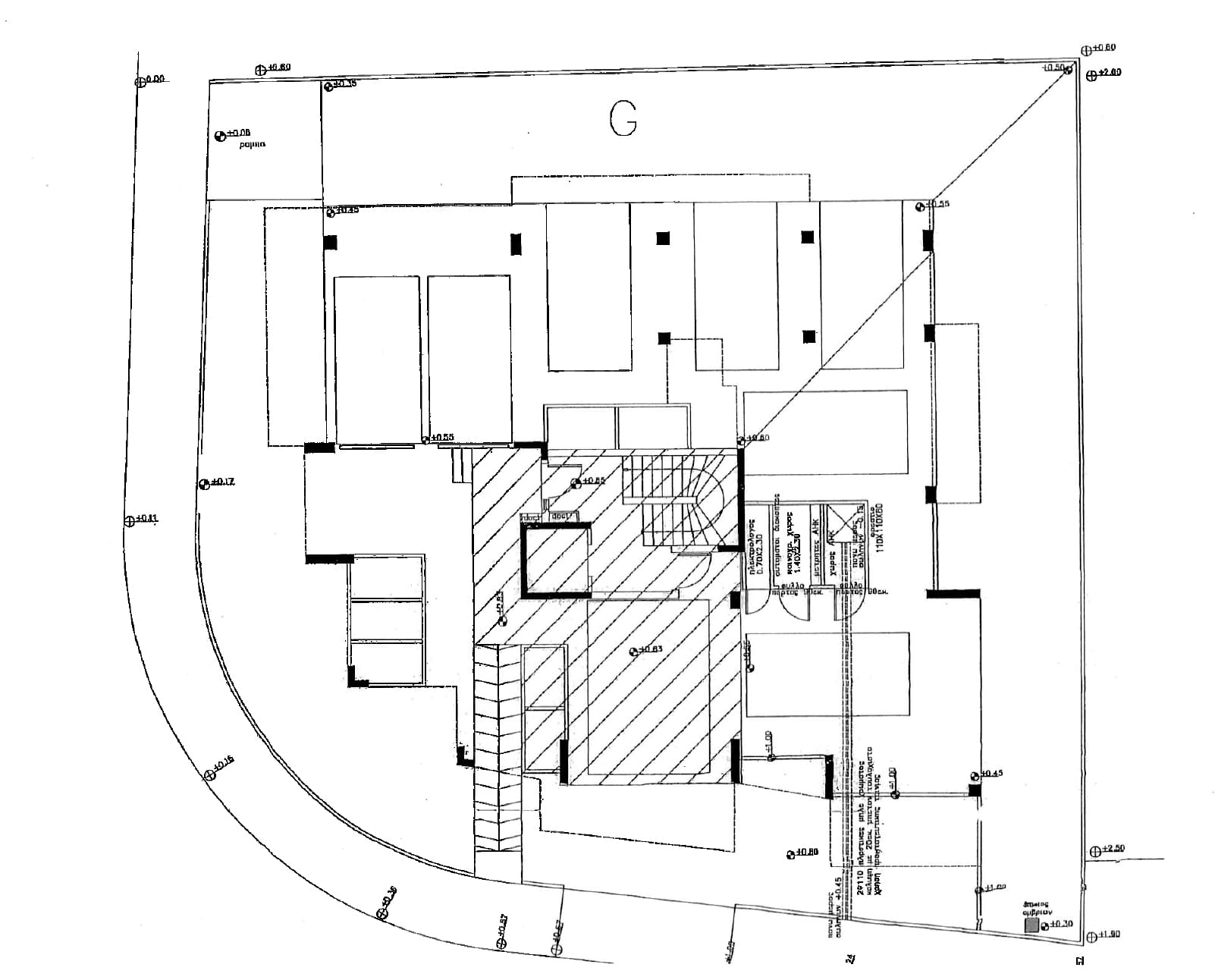
Πωλείται υπό κατασκευή ρετιρέ διαμέρισμα δύο υπνοδωματίων στον Αρχάγγελο – επαρχία Λευκωσίας, με 76 τ.μ. καλυμμένο εσωτερικό χώρο και 16 τ.μ. καλυμμένη βεράντα, στον 2ο όροφο διώροφης πολυκατοικίας με 7 διαμερίσματα στο σύνολο, σε μία από τις πιο δημοφιλείς περιοχές της Λευκωσίας. Διαθέτει πρόνοιες συστημάτων κλιματισμού, ηλιακό θερμοσίφωνα, έγχρωμη θυροτηλεόραση, πιεστικό σύστημα νερού, καλυμμένο χώρο στάθμευσης και αποθήκη. Το κτίριο διαθέτει πιστοποιητικό Ενεργειακής Απόδοσης Α΄. Τιμή πώλησης 190,000 ευρώ πλέον Φ.Π.Α.
Owning a home is a keystone of wealth… both financial affluence and emotional security.
Suze OrmanTo provide the best experiences, we and our partners use technologies like cookies to store and/or access device information. Consenting to these technologies will allow us and our partners to process personal data such as browsing behavior or unique IDs on this site and show (non-) personalized ads. Not consenting or withdrawing consent, may adversely affect certain features and functions.
Click below to consent to the above or make granular choices. Your choices will be applied to this site only. You can change your settings at any time, including withdrawing your consent, by using the toggles on the Cookie Policy, or by clicking on the manage consent button at the bottom of the screen.