Latsia, Greater Nicosia, Nicosia District, Cyprus
Προς πώληση
€270,000
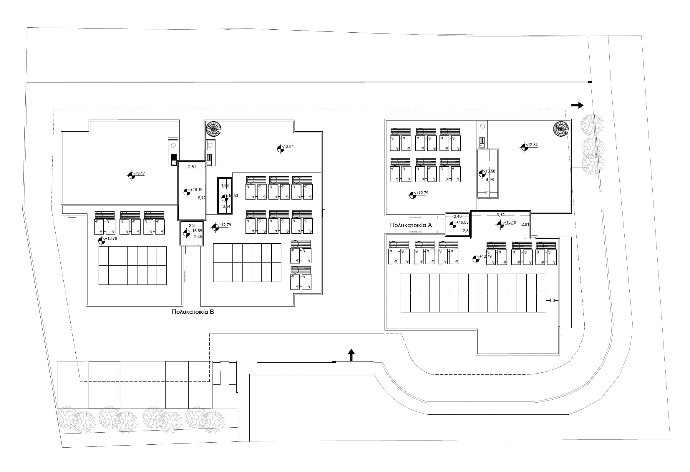
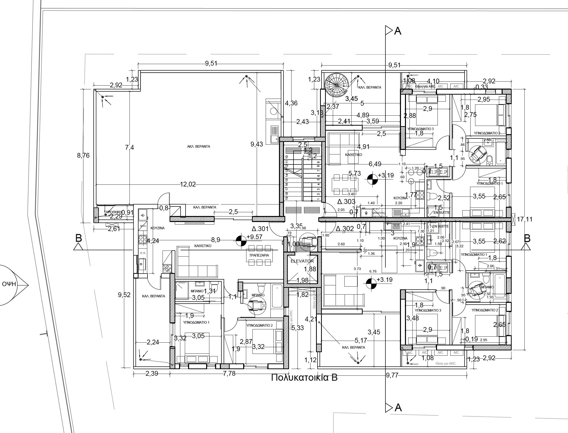
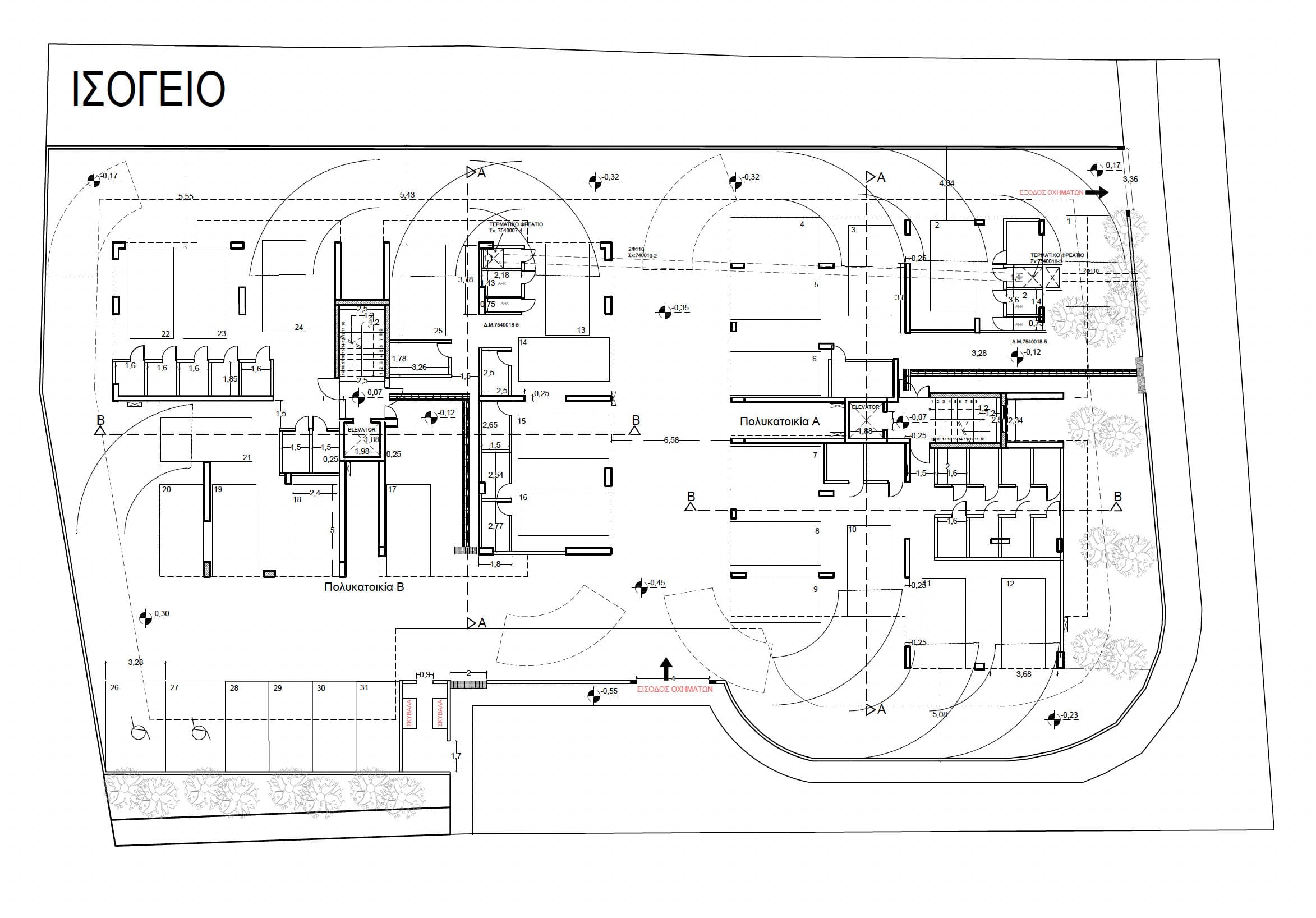
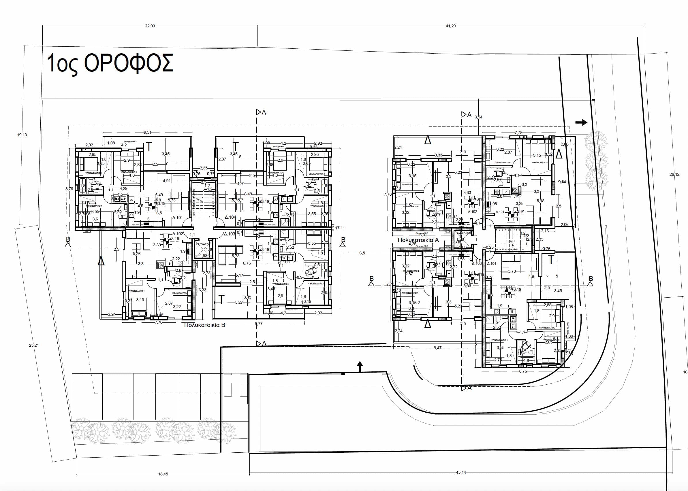
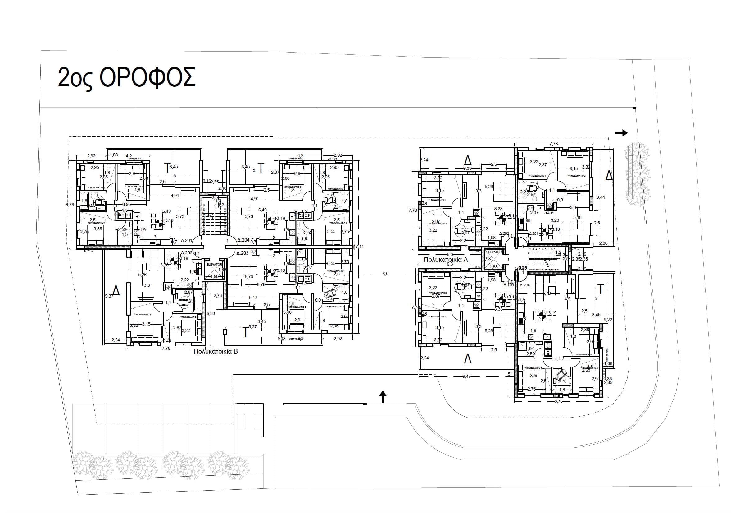
Πωλείται υπό ανέγερση ανεξάρτητο ρετιρέ διαμέρισμα δύο υπνοδωματίων στα Λατσιά – επαρχία Λευκωσίας, στον 3ο όροφο τριώροφης πολυκατοικίας με 11 διαμερίσματα στο σύνολο, με 89 τ.μ. εσωτερικό χώρο, 19 τ.μ. καλυμμένη βεράντα και 104,5 τ.μ. ακάλυπτη βεράντα, με υψηλές προδιαγραφές κατασκευής. Διαθέτει πλήρη εγκατάσταση συστημάτων κλιματισμού ζεστό/κρύο inverter, πλήρη εγκατάσταση φωτοβολταϊκού συστήματος απόδοσης 2KW, 2 καλυμμένους χώρους στάθμευσης και 2 αποθήκες, ηλιακό θερμοσίφωνα και θυροτηλέφωνο. Το διαμέρισμα βρίσκεται σε πλεονεκτική περιοχή αφού έχει εύκολη και γρήγορη πρόσβαση προς τον νέο κυκλικό κόμβο Γ.Σ.Π. Η εξαιρετική τοποθεσία του είναι ιδανική για ζευγάρια και οικογένειες, μιας και βρίσκεται σε μια ήσυχη γειτονία. Το διαμέρισμα έχει Πιστοποιητικό Ενεργειακής Απόδοσης Α’. Τιμή πώλησης 270.000 ευρώ συν Φ.Π.Α.
Owning a home is a keystone of wealth… both financial affluence and emotional security.
Suze OrmanTo provide the best experiences, we and our partners use technologies like cookies to store and/or access device information. Consenting to these technologies will allow us and our partners to process personal data such as browsing behavior or unique IDs on this site and show (non-) personalized ads. Not consenting or withdrawing consent, may adversely affect certain features and functions.
Click below to consent to the above or make granular choices. Your choices will be applied to this site only. You can change your settings at any time, including withdrawing your consent, by using the toggles on the Cookie Policy, or by clicking on the manage consent button at the bottom of the screen.