Aglangia, Nicosia Muncipality, Nicosia District, Cyprus
Προς πώληση
€252,000
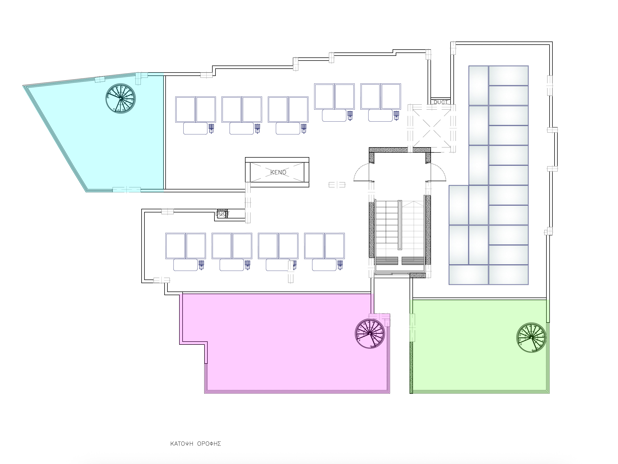
Πωλείται υπό ανέγερση ρετιρέ διαμέρισμα δύο υπνοδωματίων στην περιοχή Αγλαντζιάς – επαρχία Λευκωσίας, με 85 τ.μ. εσωτερικό καλυμμένο χώρο, 21 τ.μ. καλυμμένη βεράντα και 33 τ.μ. κήπος οροφής, στον 2ο όροφο διώροφης πολυκατοικίας με 6 μόνο διαμερίσματα στο σύνολο. Διαθέτει υψηλές προδιαγραφές με άριστα υλικά, πλήρη εγκατάσταση συστημάτων κλιματισμού με ζεστό και κρύο αέρα, πρόνοια για ηλεκτρικά σώματα θέρμανσης σε όλους τους χώρους, πλήρη εγκατάσταση φωτοβολταϊκών απόδοσης 2KW, σύστημα συναγερμού, έξυπνο διακόπτη θερμολουτήρα με ενεργοποίηση μέσω WIFI καθώς και έλεγχο της εξώπορτας μέσω εφαρμογής από το τηλέφωνο. Επίσης διαθέτει έγχρωμη θυροτηλεόραση, ηλεκτρικά shutters στα παράθυρα, en suite στο κυρίως υπνοδωμάτιο και 1 κυρίως μπάνιο, πιεστικό σύστημα νερού, καλυμμένο χώρο στάθμευσης και αποθήκη. Το κτίριο βρίσκεται στο κέντρο της Αγλαντζιάς, απέναντι από πάρκο, σε εξαιρετική τοποθεσία, με εύκολη πρόσβαση και διέξοδο προς όλες τις κατευθύνσεις, καθώς βρίσκεται μεταξύ κύριων οδικών αρτηριών της περιοχής. Είναι Ενεργειακής Απόδοσης Α’. Τιμή πώλησης 252,000 ευρώ συν Φ.Π.Α.
Owning a home is a keystone of wealth… both financial affluence and emotional security.
Suze OrmanTo provide the best experiences, we and our partners use technologies like cookies to store and/or access device information. Consenting to these technologies will allow us and our partners to process personal data such as browsing behavior or unique IDs on this site and show (non-) personalized ads. Not consenting or withdrawing consent, may adversely affect certain features and functions.
Click below to consent to the above or make granular choices. Your choices will be applied to this site only. You can change your settings at any time, including withdrawing your consent, by using the toggles on the Cookie Policy, or by clicking on the manage consent button at the bottom of the screen.