Acropolis, Strovolos, Strovolos Municipality, Nicosia District, Cyprus, 2006, Cyprus
Προς πώληση
€345,000
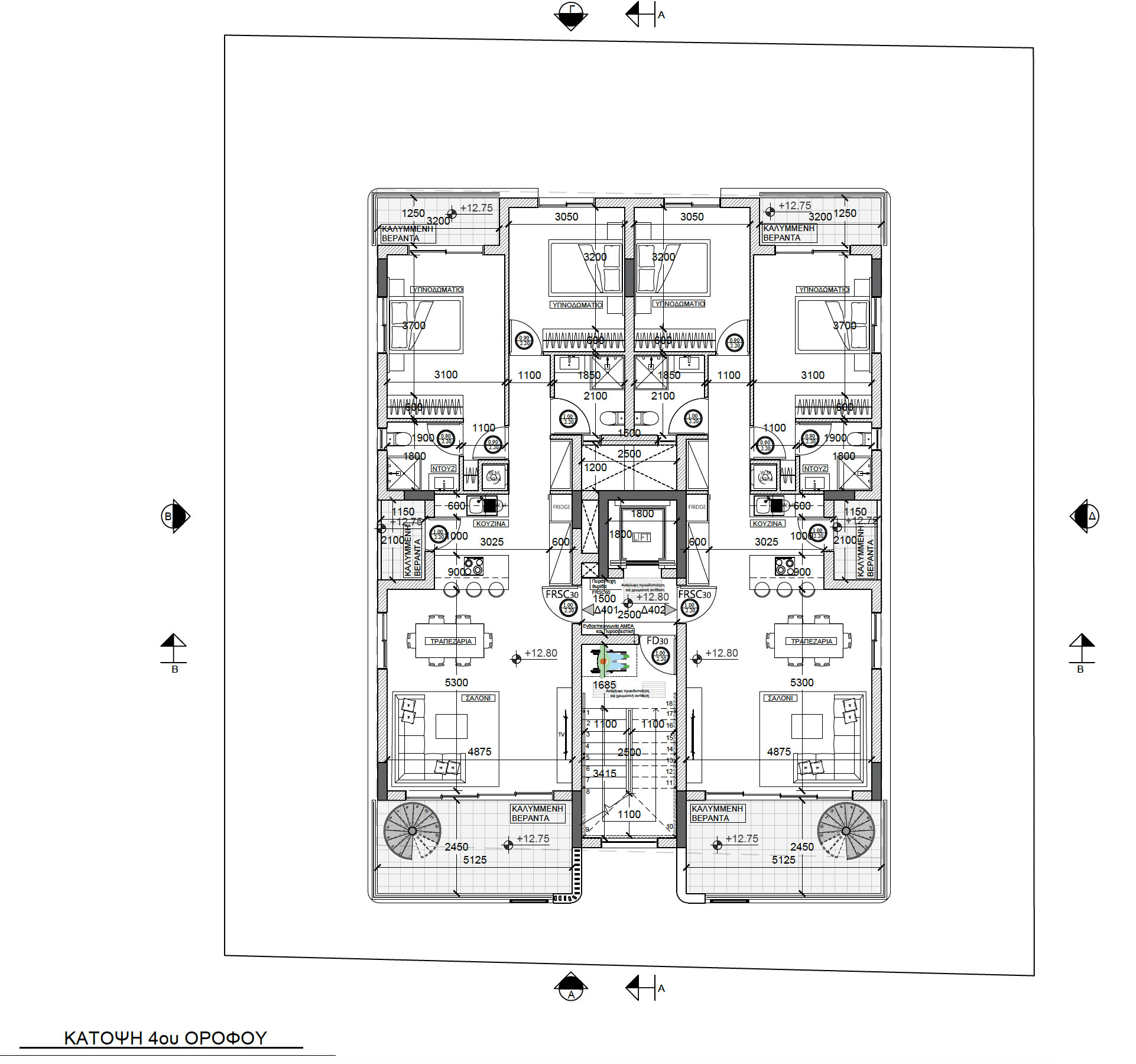
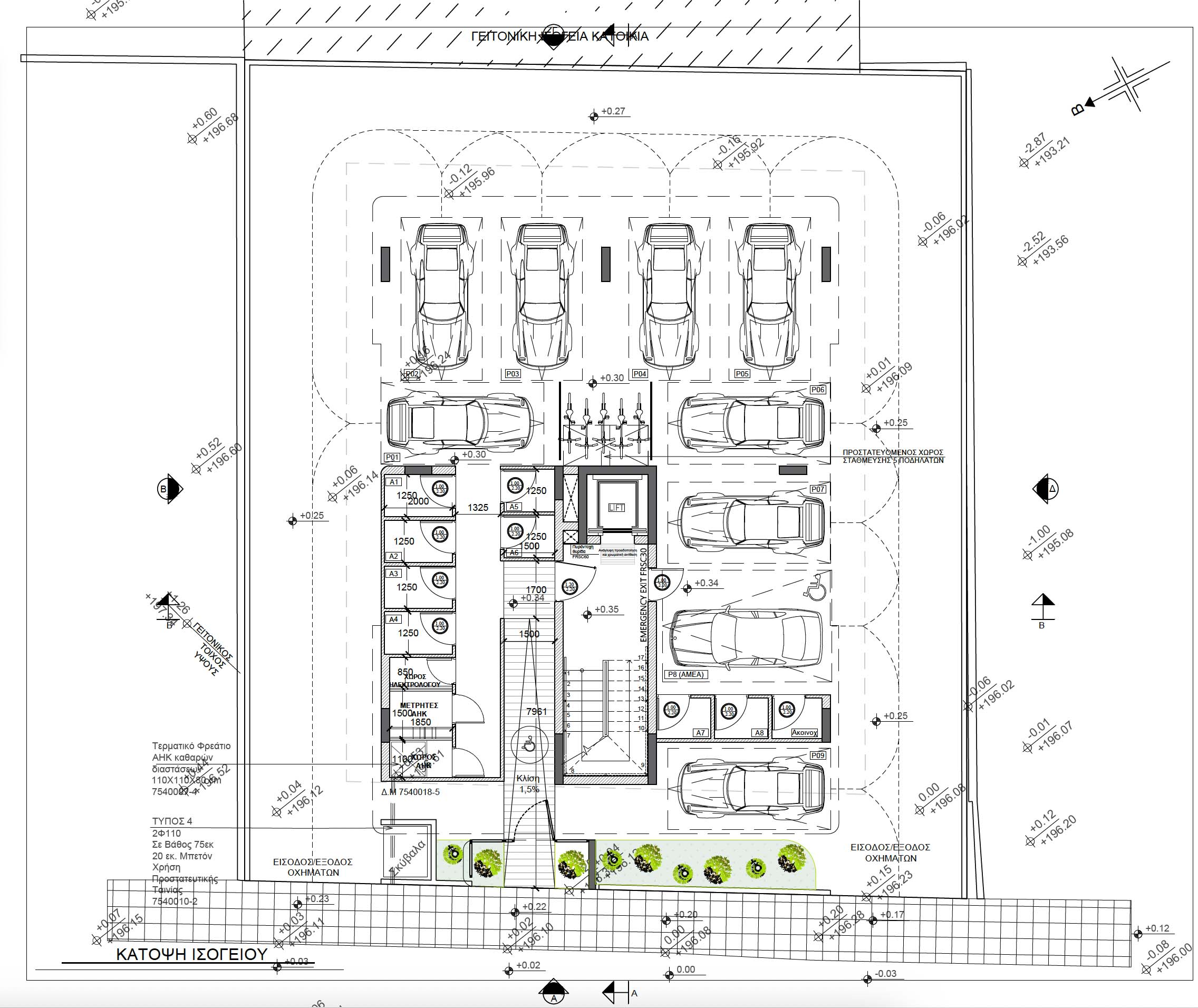
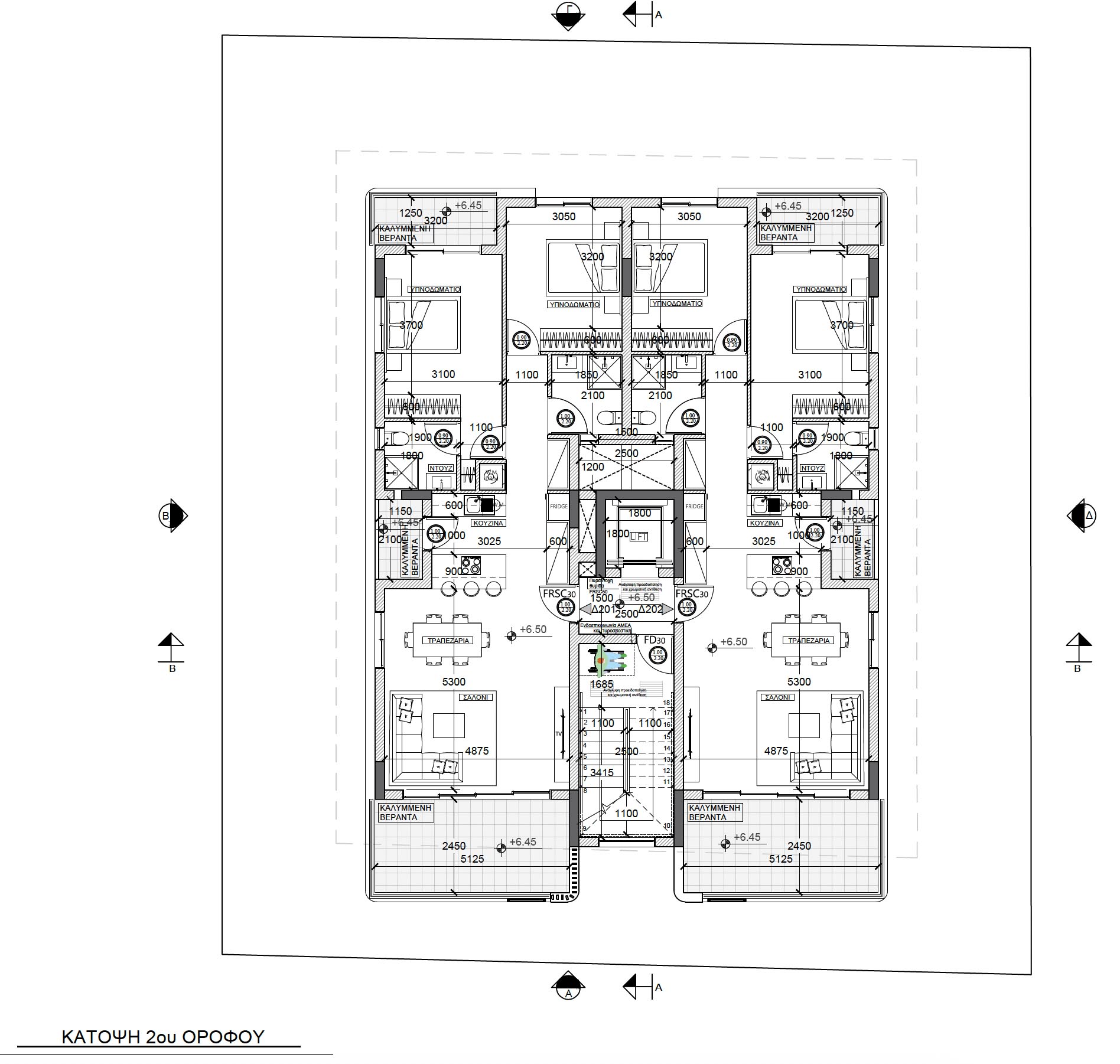
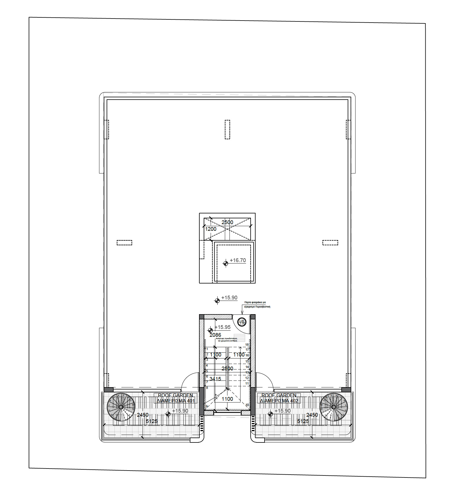
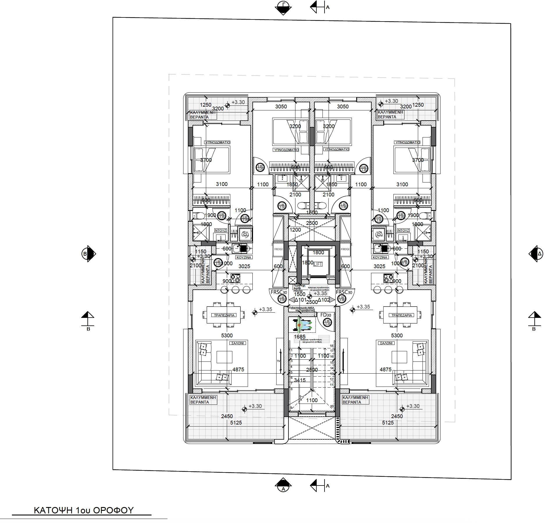
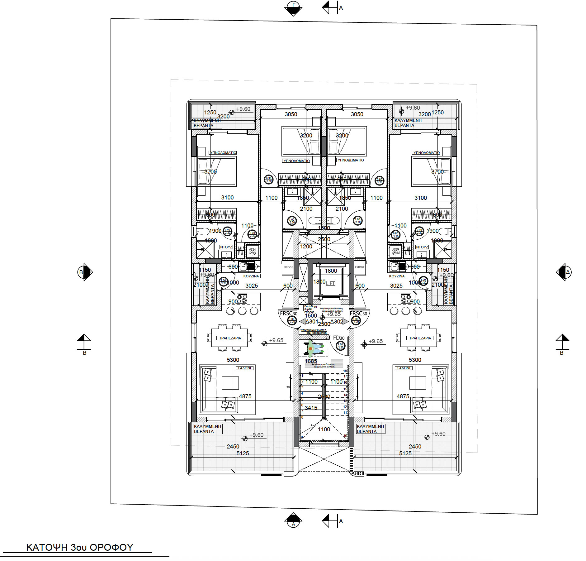
Πωλείται υπό ανέγερση ρετιρέ διαμέρισμα δύο υπνοδωματίων στην Ακρόπολη – επαρχία Λευκωσίας, με 86 τ.μ. καλυμμένο εσωτερικό χώρο, 22,5 τ.μ. καλυμμένη βεράντα και 22,5 τ.μ. κήπο οροφής, στον 4ο όροφο τετραώροφης πολυκατοικίας με 8 διαμερίσματα στο σύνολο. Διαθέτει εγκατεστημένα συστήματα κλιματισμού, ηλιακό θερμοσίφωνα, en-suite στο κυρίως υπνοδωμάτιο, έγχρωμη θυροτηλεόραση, πιεστικό σύστημα νερού, εγκατεστημένο φωτοβολταϊκό σύστημα, καλυμμένο χώρο στάθμευσης και αποθήκη. Το κτίριο βρίσκεται σε προνομιούχα περιοχή, κοντά σε πάρκο, προσφέροντας εύκολη πρόσβαση σε λεωφόρους, σχολεία και εγκαταστάσεις υγειονομικής περίθαλψης, εξασφαλίζοντας έναν άνετο τρόπο ζωής. Διαθέτει ευρύχωρο εσωτερικό χώρο, υψηλής ποιότητας φινιρίσματα και μεγάλο μπαλκόνι, ιδανικά τόσο για χαλάρωση όσο και για ψυχαγωγία. Το έργο είναι ενεργειακής κλάσης Α’. Τιμή πώλησης 345,000 ευρώ πλέον Φ.Π.Α.
Owning a home is a keystone of wealth… both financial affluence and emotional security.
Suze OrmanTo provide the best experiences, we and our partners use technologies like cookies to store and/or access device information. Consenting to these technologies will allow us and our partners to process personal data such as browsing behavior or unique IDs on this site and show (non-) personalized ads. Not consenting or withdrawing consent, may adversely affect certain features and functions.
Click below to consent to the above or make granular choices. Your choices will be applied to this site only. You can change your settings at any time, including withdrawing your consent, by using the toggles on the Cookie Policy, or by clicking on the manage consent button at the bottom of the screen.