Δερύνεια, Δήμος Παραλιμνίου - Δερύνειας, Επαρχία Αμμοχώστου, Κύπρος, 5380, Κύπρος
Προς πώληση
€195,000
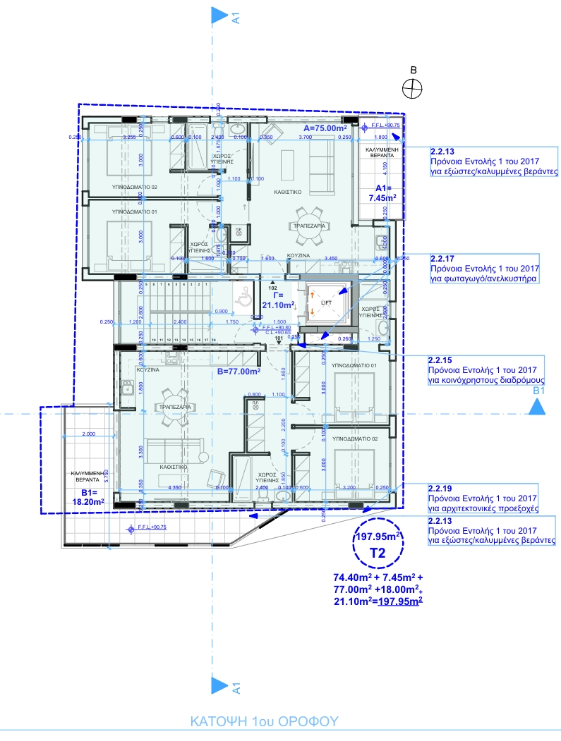
Πωλείται υπό ανέγερση διαμέρισμα δύο υπνοδωματίων στην περιοχή Δερύνειας – επαρχίας Αμμοχώστου. Βρίσκεται στον 3ο όροφο τριώροφης πολυκατοικίας με 6 διαμερίσματα στο σύνολο, με 77 τ.μ. εσωτερικό χώρο, 18 τ.μ. καλυμμένη βεράντα και 23 τ.μ. κήπο οροφής. Αποτελείται από ενιαίο χώρο κουζίνα/τραπεζαρία/σαλόνι και δύο χώρους υγιεινής εκ των οποίων en suite στο κυρίως υπνοδωμάτιο. Διαθέτει πρόνοια BBQ και εξωτερικής βρύσης στον κήπο οροφής, πρόνοια φωτοβολταϊκού συστήματος για όλα τα διαμερίσματα, πρόνοια κλιματισμού, ηλιακό θερμοσίφωνα, πιεστικό νερού, πρόνοια για φόρτιση ηλεκτρικού οχήματος, περίφραξη και καλυμμένο χώρο στάθμευσης. Είναι Ενεργειακής Απόδοσης Α’. Βρίσκεται σε πολύ καλή τοποθεσία κοντά σε όλες τις υπηρεσίες. Επιπλέον το διαμέρισμα εμπίπτει στο νέο ακριτικό σχέδιο για κυβερνητική βοήθεια από 20,000 ευρώ μέχρι 55,000 ευρώ. Αναμενόμενη ημερομηνία παράδοσης Δεκέμβριο 2026. Τιμή πώλησης 195.000 ευρώ πλέον Φ.Π.Α.
Owning a home is a keystone of wealth… both financial affluence and emotional security.
Suze OrmanTo provide the best experiences, we and our partners use technologies like cookies to store and/or access device information. Consenting to these technologies will allow us and our partners to process personal data such as browsing behavior or unique IDs on this site and show (non-) personalized ads. Not consenting or withdrawing consent, may adversely affect certain features and functions.
Click below to consent to the above or make granular choices. Your choices will be applied to this site only. You can change your settings at any time, including withdrawing your consent, by using the toggles on the Cookie Policy, or by clicking on the manage consent button at the bottom of the screen.