Agios Vasileios, Strovolos, Strovolos Municipality, Nicosia District, Cyprus
Προς πώληση
€230,000
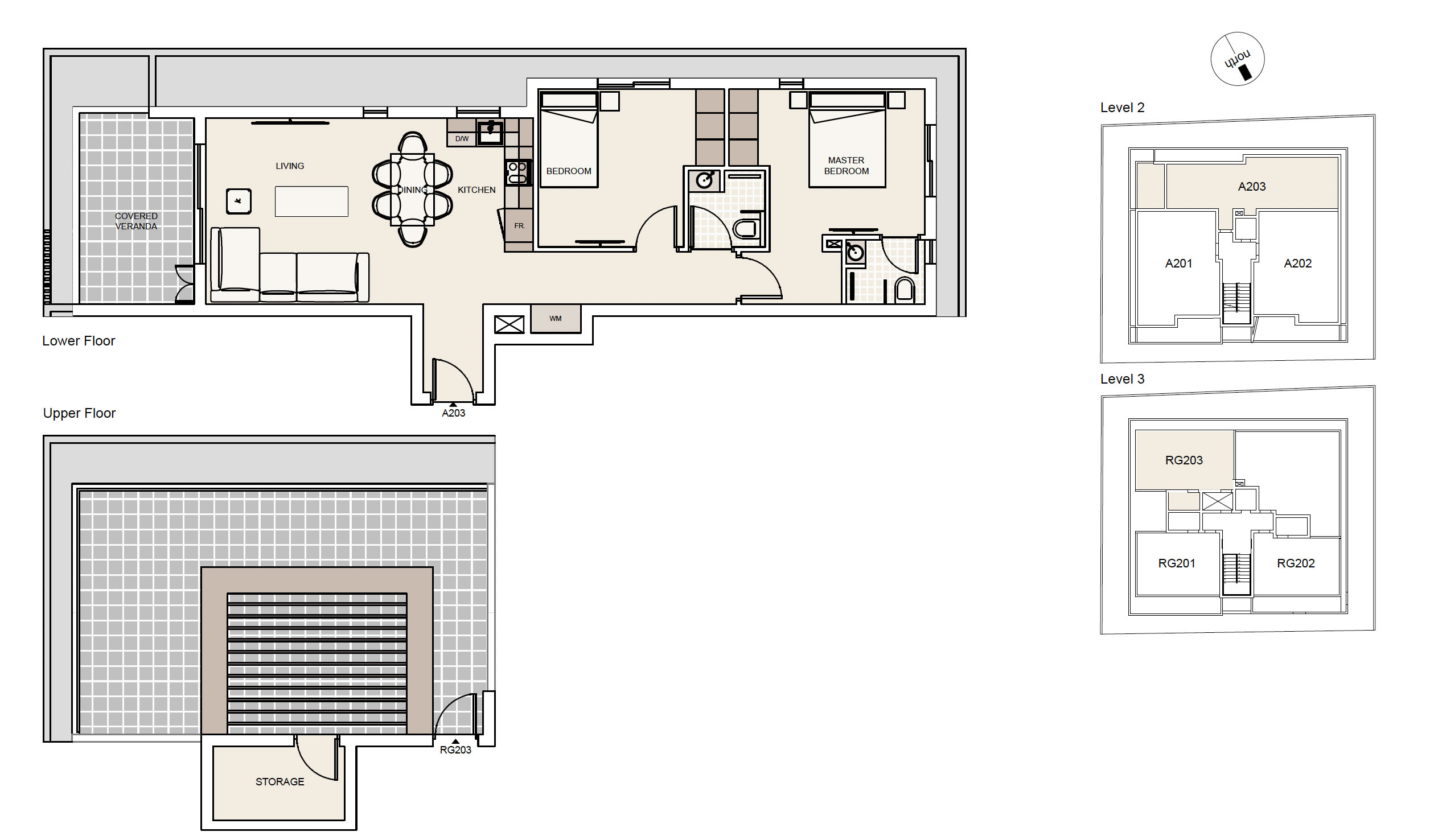
Πωλείται υπό ανέγερση ρετιρέ διαμέρισμα δύο υπνοδωματίων στον Στρόβολο – επαρχία Λευκωσίας, στον 2ο όροφο διώροφης πολυκατοικίας με 6 διαμερίσματα στο σύνολο, με 85 τ.μ. εσωτερικό χώρο, 11 τ.μ. βεράντα και 45 τ.μ. κήπο οροφής. Το διαμέρισμα διαθέτει πρόνοιες συστημάτων κλιματισμού τύπου split units με ζεστό και κρύο αέρα, πρόνοιες ηλεκτρικών θερμαντικών σωμάτων θέρμανσης, έγχρωμη θυροτηλεόραση, πλήρη εγκατάσταση φωτοβολταϊκών, πιεστικό σύστημα νερού, en-suite στο κυρίως υπνοδωμάτιο, καλυμμένο χώρο στάθμευσης και αποθήκη. Η πολυκατοικία βρίσκεται σε μια από τις πιο ελκυστικές περιοχές της Λευκωσίας, τον Άγιο Βασίλειο στον Στρόβολο. Κοντά σε πάρκα, σούπερ μάρκετ, σχολεία, νοσοκομεία, εμπορικά κέντρα κ.λπ. το καθιστά μια από τις πιο περιζήτητες τοποθεσίες. Με εύκολη πρόσβαση στις κύριες λεωφόρους και τους αυτοκινητόδρομους, συνδέεται με όλα τα σημαντικά σημεία εντός και εκτός της πόλης. Έχει πιστοποιητικό Ενεργειακής Απόδοσης Α’. Τιμή πώλησης 230,000 ευρώ πλέον Φ.Π.Α.
Owning a home is a keystone of wealth… both financial affluence and emotional security.
Suze OrmanTo provide the best experiences, we and our partners use technologies like cookies to store and/or access device information. Consenting to these technologies will allow us and our partners to process personal data such as browsing behavior or unique IDs on this site and show (non-) personalized ads. Not consenting or withdrawing consent, may adversely affect certain features and functions.
Click below to consent to the above or make granular choices. Your choices will be applied to this site only. You can change your settings at any time, including withdrawing your consent, by using the toggles on the Cookie Policy, or by clicking on the manage consent button at the bottom of the screen.