Ekali, Limassol, Cyprus
Προς πώληση
€280,000
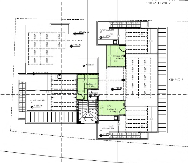
Πωλείται υπό ανέγερση ρετιρέ διαμέρισμα ενός υπνοδωματίου στην περιοχή Εκάλη της επαρχίας Λεμεσού. Αποτελείται από 54,3 τ.μ. καλυμμένο εσωτερικό χώρο, 8,7 τ.μ. καλυμμένη βεράντα, 9,4 τ.μ. ακάλυπτη βεράντα και 34,8 τ.μ. κήπο οροφής, στον 3ο όροφο τριώροφης πολυκατοικίας με 9 διαμερίσματα στο σύνολο. Διαθέτει 1 χώρο υγιεινής, φωτοβολταϊκό σύστημα, σύστημα κλιματισμού, ηλιακό θερμοσίφωνα, πιεστικό σύστημα νερού, ηλεκτρικά ρολά στα δωμάτια, 2 αποθήκες και καλυμμένο χώρο στάθμευσης. Το διαμέρισμα βρίσκεται σε εξαιρετική περιοχή κοντά σε υπηρεσίες και ανέσεις και έχει πιστοποιητικό ενεργειακής απόδοσης Α. Η αναμενόμενη ημερομηνία παράδοσης είναι μέσα του 2028. Τιμή πώλησης 280,000 ευρώ, πλέον Φ.Π.Α.
Owning a home is a keystone of wealth… both financial affluence and emotional security.
Suze OrmanTo provide the best experiences, we and our partners use technologies like cookies to store and/or access device information. Consenting to these technologies will allow us and our partners to process personal data such as browsing behavior or unique IDs on this site and show (non-) personalized ads. Not consenting or withdrawing consent, may adversely affect certain features and functions.
Click below to consent to the above or make granular choices. Your choices will be applied to this site only. You can change your settings at any time, including withdrawing your consent, by using the toggles on the Cookie Policy, or by clicking on the manage consent button at the bottom of the screen.