Agios Athanasios, East Limassol Municiplaity, Limassol District, Cyprus
Προς πώληση
€445,000
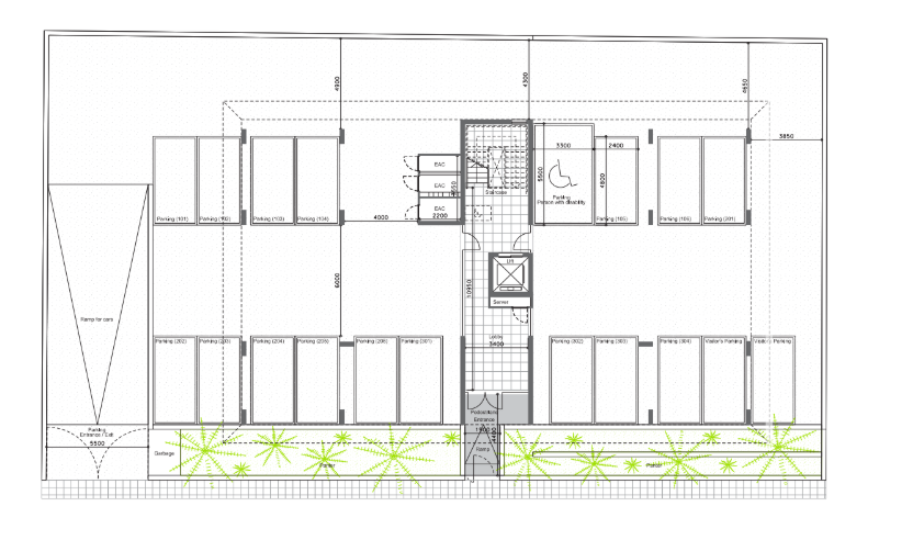
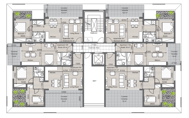
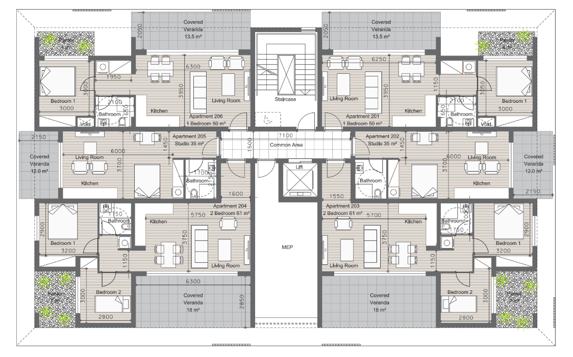
Πωλείται υπό ανέγερση ένα σύγχρονο και εκλεπτυσμένο ρετιρέ διαμέρισμα δύο υπνοδωματων στην περιζήτητη περιοχή Άγιος Αθανάσιος της επαρχίας Λεμεσού. Αποτελείται από 75 τ.μ. καλυμμένου εσωτερικού χώρου, 22 τ.μ. ευρύχωρης καλυμμένης βεράντας καθώς και 28 τ.μ. κήπο οροφής και βρίσκεται στον 3ο όροφο τριώροφης καλαίσθητης πολυκατοικίας με συνολικά 16 διαμερίσματα. Το ακίνητο προσφέρει 2 κομψούς χώρους υγιεινής, εκ των οποίων en suite στο κυρίως υπνοδωμάτιο, πρόνοια για σύστημα κλιματισμού, πιεστικό σύστημα νερού, ηλιακό θερμοσίφωνα, παράθυρα με διπλά τζάμια για καλύτερη θερμομόνωση, θυροτηλεόραση, αποθήκη, ψησταριά και καλυμμένο χώρο στάθμευσης. Το έργο διαθέτει πιστοποιητικό ενεργειακής απόδοσης Α, ενώ βρίσκεται σε μια εξαιρετική και αναπτυσσόμενη περιοχή, κοντά σε πληθώρα υπηρεσιών και ανέσεων, προσφέροντας παράλληλα ανεμπόδιστη θέα προς την πόλη και τη θάλασσα. Η αναμενόμενη ημερομηνία παράδοσης είναι τον Απρίλιο του 2028. Τιμή πώλησης 445,000 ευρώ πλέον Φ.Π.Α.
Owning a home is a keystone of wealth… both financial affluence and emotional security.
Suze OrmanTo provide the best experiences, we and our partners use technologies like cookies to store and/or access device information. Consenting to these technologies will allow us and our partners to process personal data such as browsing behavior or unique IDs on this site and show (non-) personalized ads. Not consenting or withdrawing consent, may adversely affect certain features and functions.
Click below to consent to the above or make granular choices. Your choices will be applied to this site only. You can change your settings at any time, including withdrawing your consent, by using the toggles on the Cookie Policy, or by clicking on the manage consent button at the bottom of the screen.