Ypsonas, Kourio Municipality, Limassol District, Cyprus
Προς πώληση
€280,000
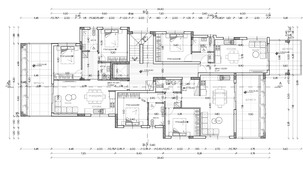
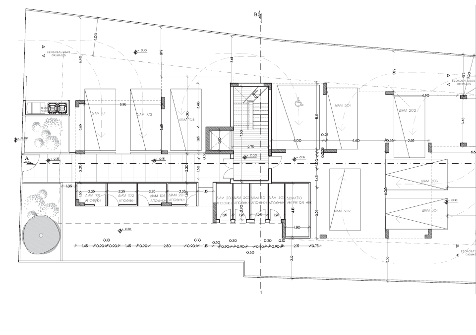
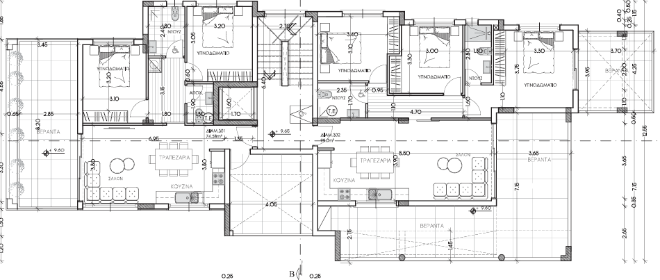
Πωλείται υπό ανέγερση ρετιρέ μοντέρνο διαμέρισμα δύο υπνοδωματίων με πρόνοια για τρίτο δωμάτιο, στην περιοχή Ύψωνας της επαρχίας Λεμεσού. Αποτελείται από 74 τ.μ. καλυμμένο εσωτερικό χώρο, 24 τ.μ. καλυμμένη βεράντα και 12 τ.μ. ακάλυπτη βεράντα, στον 3ο όροφο τριώροφης πολυκατοικίας με 8 διαμερίσματα στο σύνολο. Διαθέτει 2 χώρους υγιεινής, εκ των οποίων en suite στο κυρίως υπνοδωμάτιο, πρόνοια για σύστημα κλιματισμού, πιεστικό σύστημα νερού, ηλιακό θερμοσίφωνα, διπλά τζάμια στα παράθυρα, θυροτηλεόραση, αποθήκη και καλυμμένο χώρο στάθμευσης. Το έργο διαθέτει πιστοποιητικό ενεργειακής απόδοσης Α και βρίσκεται σε πολύ καλή περιοχή κοντά σε διάφορες υπηρεσίες και ανέσεις. Τιμή πώλησης 280,000 ευρώ, πλέον Φ.Π.Α.
Owning a home is a keystone of wealth… both financial affluence and emotional security.
Suze OrmanTo provide the best experiences, we and our partners use technologies like cookies to store and/or access device information. Consenting to these technologies will allow us and our partners to process personal data such as browsing behavior or unique IDs on this site and show (non-) personalized ads. Not consenting or withdrawing consent, may adversely affect certain features and functions.
Click below to consent to the above or make granular choices. Your choices will be applied to this site only. You can change your settings at any time, including withdrawing your consent, by using the toggles on the Cookie Policy, or by clicking on the manage consent button at the bottom of the screen.