Agios Athanasios, Δήμος Αγίου Αθανασίου, Limassol District, Cyprus
Προς πώληση
€760,000
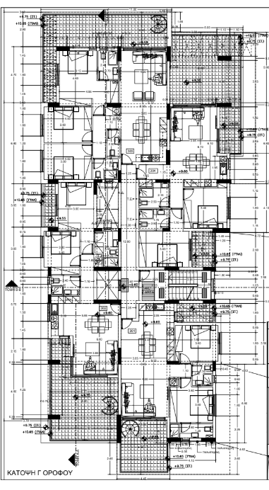
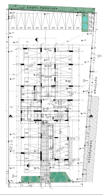
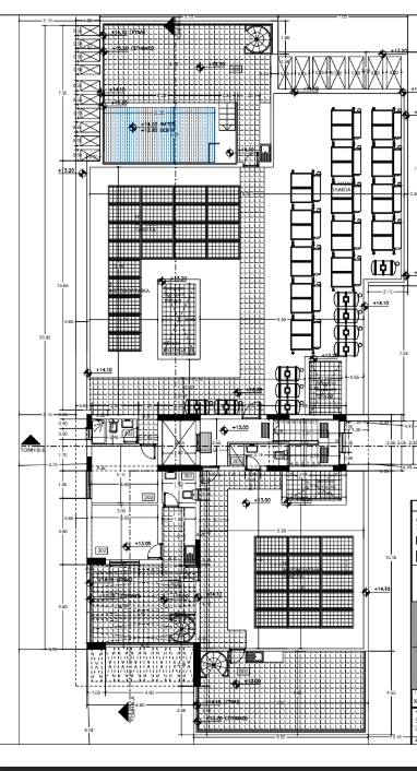
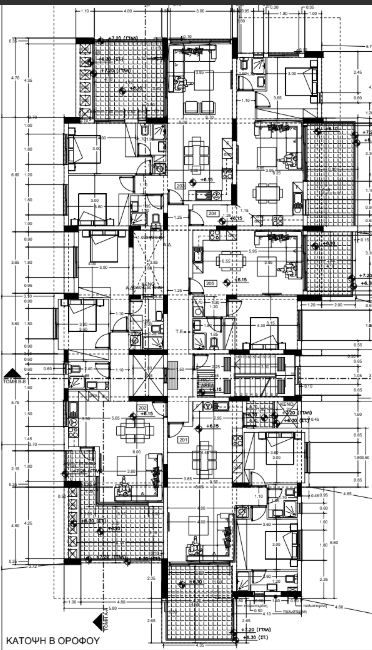
Πωλείται υπό ανέγερση ρετιρέ μοντέρνο διαμέρισμα τριών υπνοδωματίων στον Άγιο Αθανάσιο στη Λεμεσό. Αποτελείται από 109 τ.μ. καλυμμένο εσωτερικό χώρο, 27 τ.μ. καλυμμένες βεράντες, 11 τ.μ. ακάλυπτη βεράντα και 76 τ.μ. κήπο οροφής, στον 3ο όροφο τριώροφης πολυκατοικίας με 14 διαμερίσματα στο σύνολο. Διαθέτει 2 χώρους υγιεινής εκ των οποίων en suite στο κυρίως υπνοδωμάτιο, σύστημα κλιματισμού VRV, πρόνοια κεντρικής θέρμανσης, πιεστικό σύστημα νερού, ηλιακό θερμοσίφωνα, διπλά τζάμια στα παράθυρα, αποθηκευτικό χώρο, φωτοβολταϊκό σύστημα, καλυμμένο χώρο στάθμευσης, έξτρα δωμάτιο μαζί με ένα χώρο υγιεινής και ιδιωτική πισίνα. Το έργο διαθέτει πιστοποιητικό ενεργειακής απόδοσης Α και η αναμενόμενη ημερομηνία παράδοσης Σεπτέμβριο του 2026. Βρίσκεται σε πολύ καλή περιοχή, κοντά σε όλες τις υπηρεσίες με θέα τη θάλασσα. Τιμή πώλησης 760,000 ευρώ πλεόν Φ.Π.Α..
Owning a home is a keystone of wealth… both financial affluence and emotional security.
Suze OrmanTo provide the best experiences, we and our partners use technologies like cookies to store and/or access device information. Consenting to these technologies will allow us and our partners to process personal data such as browsing behavior or unique IDs on this site and show (non-) personalized ads. Not consenting or withdrawing consent, may adversely affect certain features and functions.
Click below to consent to the above or make granular choices. Your choices will be applied to this site only. You can change your settings at any time, including withdrawing your consent, by using the toggles on the Cookie Policy, or by clicking on the manage consent button at the bottom of the screen.