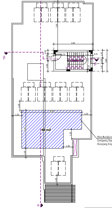
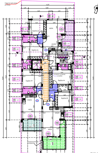
Πωλείται υπό ανέγερση μοντέρνο ρετιρέ μοντέρνου σχεδιασμού τριών υπνοδωματίων με πρόνοια για τέταρτο δωμάτιο, σε προνομιακή τοποθεσία στον Ύψωνας της επαρχίας Λεμεσός, ιδανικό για ιδιοκατοίκηση ή επένδυση υψηλής απόδοσης. Το διαμέρισμα διαθέτει 101 τ.μ. καλυμμένο εσωτερικό χώρο με άνετη και λειτουργική διαρρύθμιση που συνδυάζει σύγχρονη αισθητική και εργονομία, καθώς και 39 τ.μ. ευρύχωρη καλυμμένη βεράντα, ιδανική για στιγμές χαλάρωσης ή φιλοξενία με θέα και ανοιχτό ορίζοντα. Βρίσκεται στον 3ο όροφο σύγχρονης τριώροφης πολυκατοικίας μόλις 8 διαμερισμάτων, προσφέροντας ιδιωτικότητα και αίσθηση αποκλειστικότητας. Περιλαμβάνει 2 κομψά διαμορφωμένους χώρους υγιεινής, εκ των οποίων ο ένας en suite στο κυρίως υπνοδωμάτιο, πρόνοια για σύστημα κλιματισμού, πιεστικό σύστημα νερού, ηλιακό θερμοσίφωνα, διπλά θερμομονωτικά τζάμια, έγχρωμη θυροτηλεόραση, σύγχρονο φωτοβολταϊκό σύστημα για εξοικονόμηση ενέργειας, ιδιωτική αποθήκη και καλυμμένο χώρο στάθμευσης. Το έργο τοποθετείται σε εξαιρετικά αναπτυσσόμενη και περιζήτητη περιοχή με άμεση πρόσβαση σε σχολεία, καταστήματα, υπηρεσίες και βασικούς οδικούς άξονες, ενώ διαθέτει πιστοποιητικό ενεργειακής απόδοσης Α, διασφαλίζοντας χαμηλό κόστος διαβίωσης και περιβαλλοντική υπευθυνότητα. Η αναμενόμενη ημερομηνία παράδοσης είναι αρχές του 2027, προσφέροντας την ευκαιρία έγκαιρου προγραμματισμού και επένδυσης. Τιμή πώλησης 375,000 ευρώ, πλέον Φ.Π.Α.