Αγία Φύλα, Limassol, Cyprus
Προς πώληση
€320,000
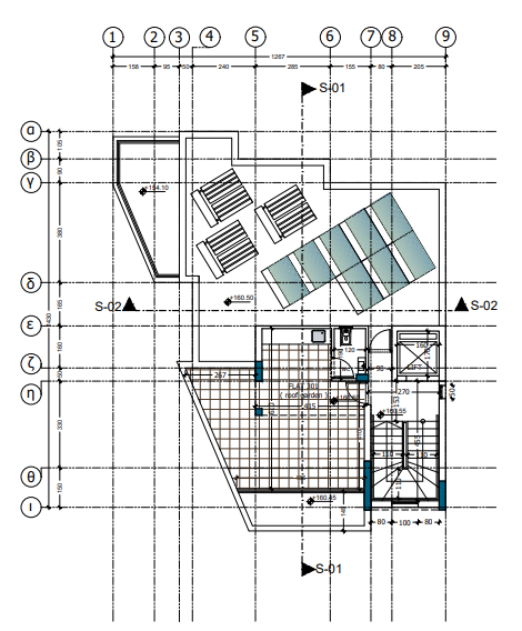
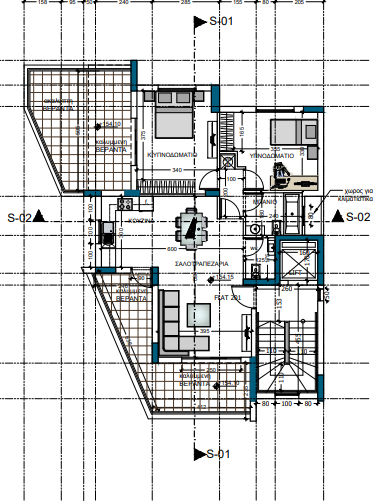
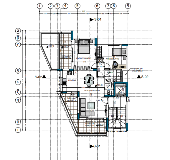
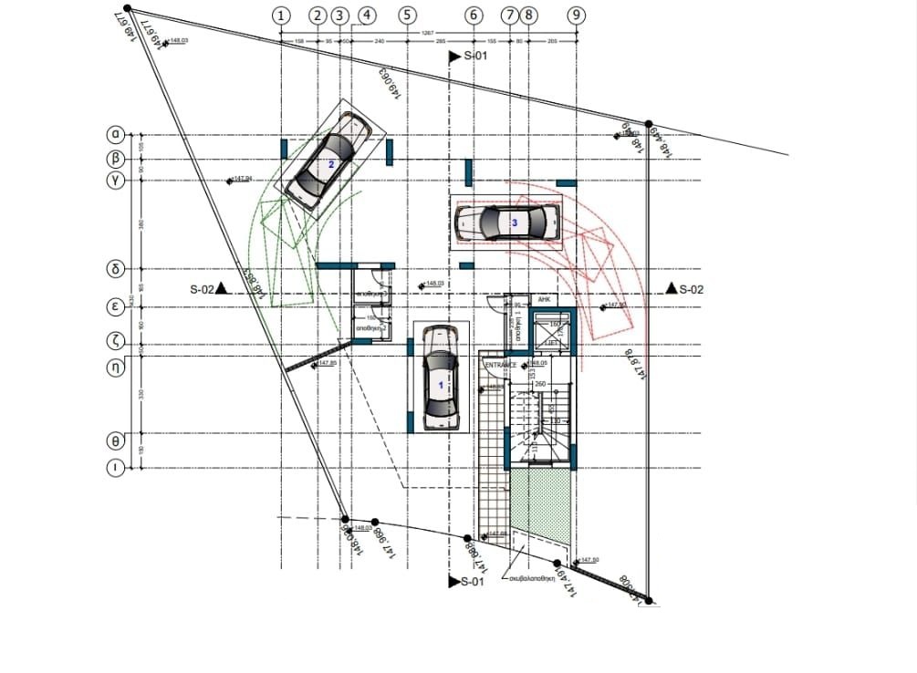
Πωλείται υπό ανέγερση οροφοδιαμέρισμα δύο υπνοδωματίων στην Αγία Φύλα. Αποτελείται από 78 τ.μ. καλυμμένο εσωτερικό χώρο,23 τ.μ. καλυμμένη βεράντα, 40 τ.μ. κήπο οροφής και βρίσκεται στον τρίτο όροφο της πολυκατοικίας. Διαθέτει τρεις χώρους υγιεινής, αποθήκη και καλυμμένο χώρο στάθμευσης. Το ακίνητο διαθέτει πιστοποιητικό ενεργειακής απόδοσης Α. Αναμενόμενη ημερομηνία παράδοσης είναι τον Μάρτιο του 2026. Βρίσκεται σε ήσυχη περιοχή δίπλα σε χώρο πρασίνου. Τιμή πώλησης 320,000 ευρώ πλέον ΦΠΑ.
Owning a home is a keystone of wealth… both financial affluence and emotional security.
Suze OrmanTo provide the best experiences, we and our partners use technologies like cookies to store and/or access device information. Consenting to these technologies will allow us and our partners to process personal data such as browsing behavior or unique IDs on this site and show (non-) personalized ads. Not consenting or withdrawing consent, may adversely affect certain features and functions.
Click below to consent to the above or make granular choices. Your choices will be applied to this site only. You can change your settings at any time, including withdrawing your consent, by using the toggles on the Cookie Policy, or by clicking on the manage consent button at the bottom of the screen.