Paphos, Cyprus
Προς πώληση
€155,000
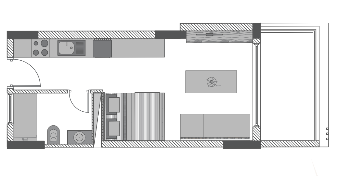
Πωλείται υπό ανέγερση στούντιο διαμέρισμα κοντά στο καινούργιο πανεπιστήμιο της επαρχίας Πάφου. Αποτελείται από 30 τ.μ. καλυμμένο εσωτερικό χώρο και 7 τ.μ. καλυμμένη βεράντα. Διαθέτει ένα χώρο υγιεινής, χώρο στάθμευσης, πρόνοια για σύστημα κλιματισμού, πρόνοια για σύστημα ασφαλείας με κάμερες και θυροτηλέφωνο. Βρίσκεται σε πολύ καλή περιοχή κοντά στο πανεπιστήμιο, σε ανέσεις και σε όλες τις υπηρεσίες. Τιμή πώλησης 155,000 ευρώ πλέον ΦΠΑ.
Owning a home is a keystone of wealth… both financial affluence and emotional security.
Suze OrmanTo provide the best experiences, we and our partners use technologies like cookies to store and/or access device information. Consenting to these technologies will allow us and our partners to process personal data such as browsing behavior or unique IDs on this site and show (non-) personalized ads. Not consenting or withdrawing consent, may adversely affect certain features and functions.
Click below to consent to the above or make granular choices. Your choices will be applied to this site only. You can change your settings at any time, including withdrawing your consent, by using the toggles on the Cookie Policy, or by clicking on the manage consent button at the bottom of the screen.