Livadia, Larnaca District, Cyprus
Προς πώληση
€2,600,000
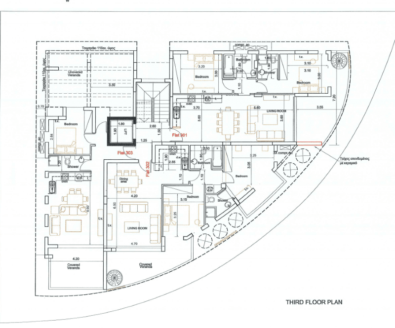
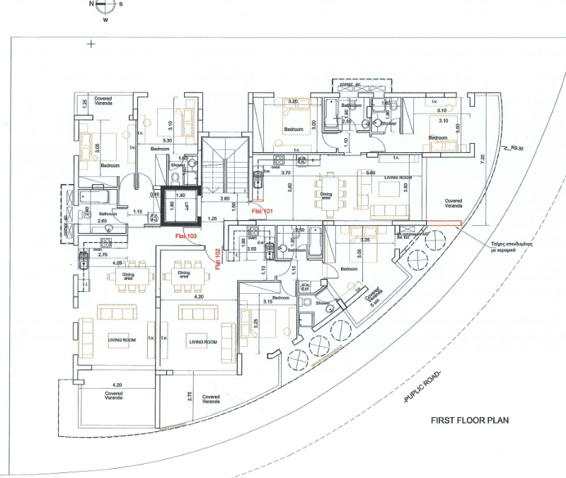
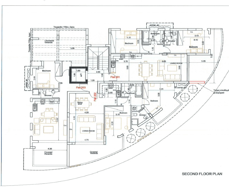
Πωλείται υπό ανέγερση τριώροφη πολυκατοικία με 9 διαμερίσματα στο σύνολο στα Λιβάδια – επαρχία Λάρνακας. Περιλαμβάνει 2 διαμερίσματα του ενός υπνοδωματίου που αποτελούνται από 50 τ.μ. καλυμμένους εσωτερικούς χώρους και 13 τ.μ. καλυμμένες βεράντες και 7 διαμερίσματα των δύο υπνοδωματίων με en-suite στο κυρίως υπνοδωμάτιο, που αποτελούνται από 78 τ.μ. καλυμμένους εσωτερικούς χώρους και 17 τ.μ. καλυμμένες βεράντες το κάθε ένα. Δύο από τα διαμερίσματα του τελευταίου ορόφου διαθέτουν 61 τ.μ. κήπο οροφής με θέα στη θάλασσα, χώρο μπάρμπεκιου, WC-ντους, φωτοβολταϊκό σύστημα, καθώς και πρόνοια για έξτρα δωμάτιο. Επιπλέον το κάθε διαμέρισμα διαθέτει καλυμμένο χώρο στάθμευσης, πρόνοια κλιματισμού και αποθηκευτικό χώρο. Βρίσκεται σε εξαιρετική τοποθεσία, μόλις μερικά μέτρα από την παραλία, 1000 μέτρα απο το American University of Cyprus, 15 λεπτά από το UCLan Cyprus και 15 λεπτά από το Διεθνές Αεροδρόμιο Λάρνακας. Διαθέτει πιστοποιητικό Ενεργειακής Απόδοσης Α. Τιμή πώλησης ολόκληρου του κτιρίου είναι 2,600,000 ευρώ πλέον Φ.Π.Α.
Owning a home is a keystone of wealth… both financial affluence and emotional security.
Suze OrmanTo provide the best experiences, we and our partners use technologies like cookies to store and/or access device information. Consenting to these technologies will allow us and our partners to process personal data such as browsing behavior or unique IDs on this site and show (non-) personalized ads. Not consenting or withdrawing consent, may adversely affect certain features and functions.
Click below to consent to the above or make granular choices. Your choices will be applied to this site only. You can change your settings at any time, including withdrawing your consent, by using the toggles on the Cookie Policy, or by clicking on the manage consent button at the bottom of the screen.