Limassol, Limassol Municipality, Limassol District, Cyprus
Προς πώληση
€1,700,000
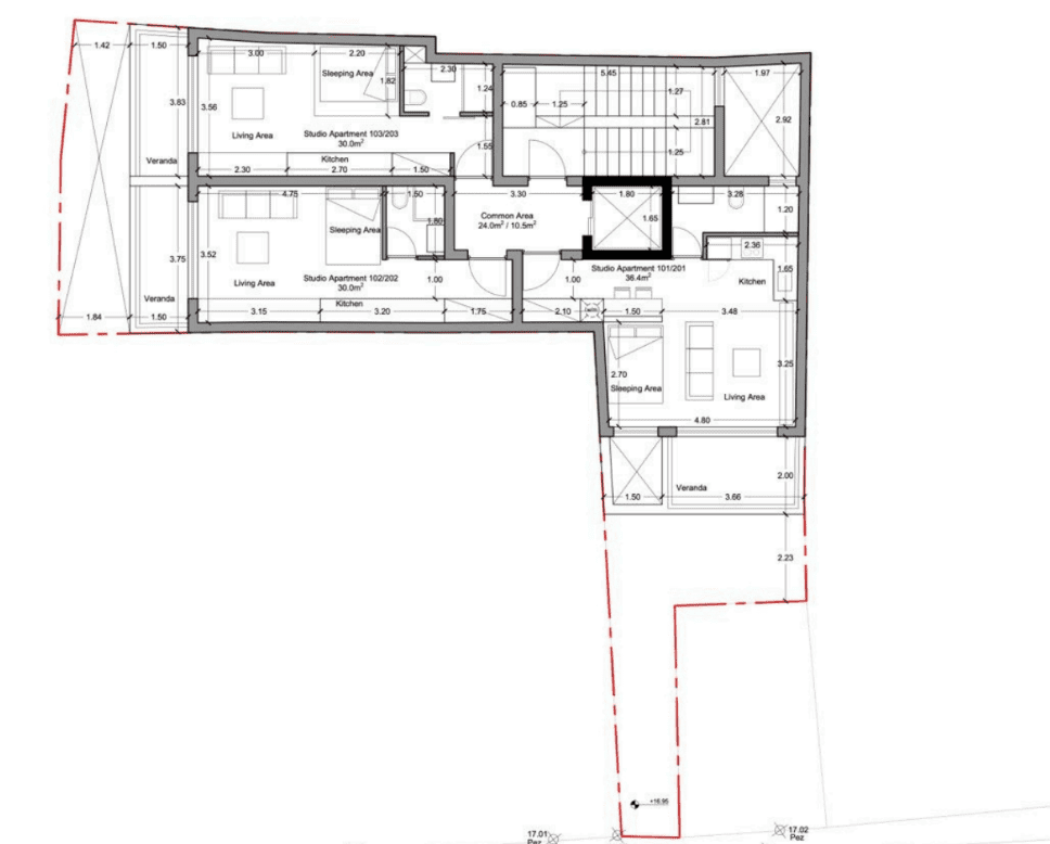
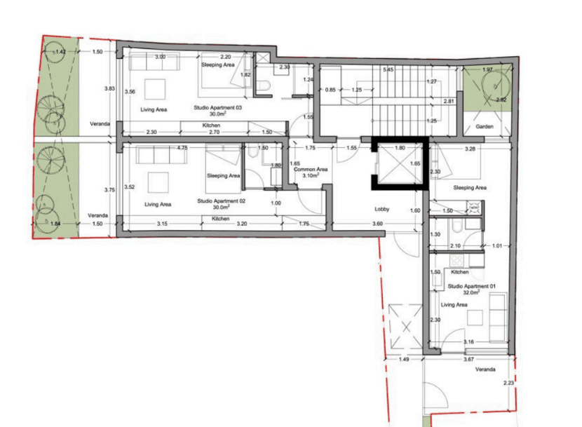
Πωλείται υπό ανέγερση τριώροφη πολυκατοικία στην περιοχή Αγίου Ανδρέα της επαρχίας Λεμεσού. Αποτελείται απο 284 καλυμμένο εσωτερικό χώρο, 72 τ.μ. καλυμμένες βεράντες και 24 τ.μ. κήπο οροφής, χτισμένη σε 431 τ.μ. οικόπεδο. Διαθέτει 9 στούντιο, 3 στούντιο ανα όροφο, πρόνοια για σύστημα κλιματισμού και θέρμανσης, πιεστικό σύστημα νερού, διπλά παράθυρα, θηροτηλέφωνο, σύστημα συναγερμού και χώρο στάθμευσης. Βρίσκεται σε πολύ καλή περιοχή κοντά σε υπηρεσίες και ανέσεις και διαθέτει πιστοπιητικό ενεργειακής απόδοσης Α. Τιμή πώλησης 1,700,000 ευρώ, πλέον Φ.Π.Α.
Owning a home is a keystone of wealth… both financial affluence and emotional security.
Suze OrmanTo provide the best experiences, we and our partners use technologies like cookies to store and/or access device information. Consenting to these technologies will allow us and our partners to process personal data such as browsing behavior or unique IDs on this site and show (non-) personalized ads. Not consenting or withdrawing consent, may adversely affect certain features and functions.
Click below to consent to the above or make granular choices. Your choices will be applied to this site only. You can change your settings at any time, including withdrawing your consent, by using the toggles on the Cookie Policy, or by clicking on the manage consent button at the bottom of the screen.