Froutaria Theofanis Universal, Taxiarchon Avenue, Agios Theodoros, Paphos Municipality, Paphos District, Cyprus, 8036, Cyprus
Προς πώληση
€305,000
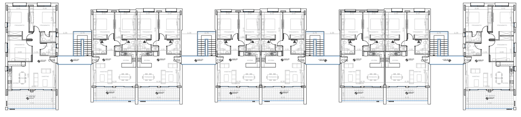
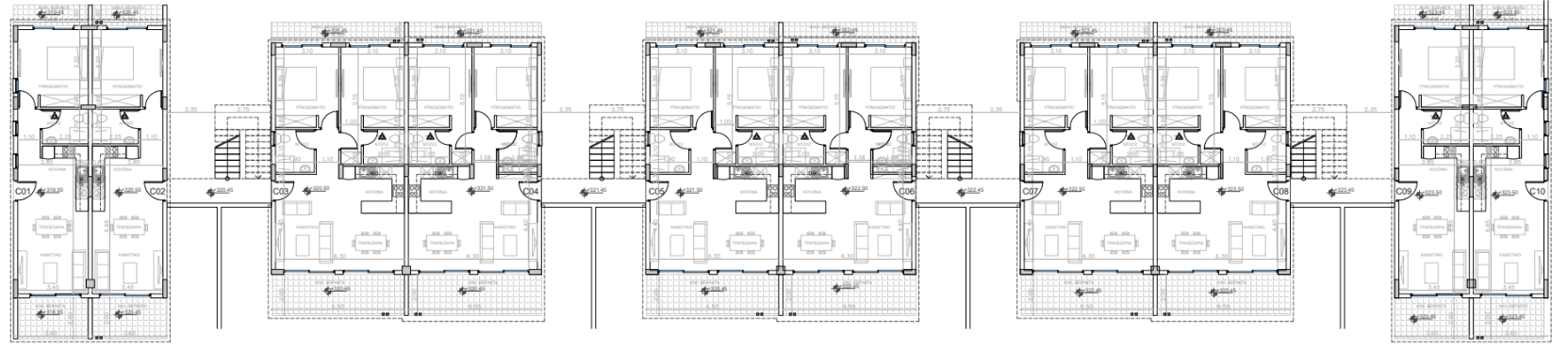
Πωλείται υπό ανέγερση διαμέρισμα δύο υπνοδωματίων στην περιοχή Universal της επαρχίας Πάφου. Το διαμέρισμα αποτελείται από 75 τ.μ. καλυμμένων εσωτερικών και 13 τ.μ. καλυμμένη βεράντα, επίσης διαθέτει δύο χώρους υγιεινής εκ των οποίον το ένα en suite στο κύριο υπνοδωμάτιο. Επιπλέον, διαθέτει 51 τ.μ. κήπο, κοινόχρηστο χώρο στάθμευσης, κοινόχρηστη πισίνα, υπαίθριο γυμναστήριο, χώρο γηπέδου για τένις, μπάλα και μπάσκετ. Το διαμέρισμα είναι κοντά σε χώρο πρασίνου, όπως και σε πολλές υπηρεσίες. Τιμή πώλησης 305.000 ευρώ πλέον Φ.Π.Α.
Owning a home is a keystone of wealth… both financial affluence and emotional security.
Suze OrmanTo provide the best experiences, we and our partners use technologies like cookies to store and/or access device information. Consenting to these technologies will allow us and our partners to process personal data such as browsing behavior or unique IDs on this site and show (non-) personalized ads. Not consenting or withdrawing consent, may adversely affect certain features and functions.
Click below to consent to the above or make granular choices. Your choices will be applied to this site only. You can change your settings at any time, including withdrawing your consent, by using the toggles on the Cookie Policy, or by clicking on the manage consent button at the bottom of the screen.