Περβόλια, Λάρνακα, Κύπρος, 7560, Κύπρος
Προς πώληση
€3,700,000
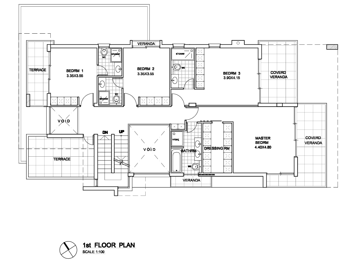
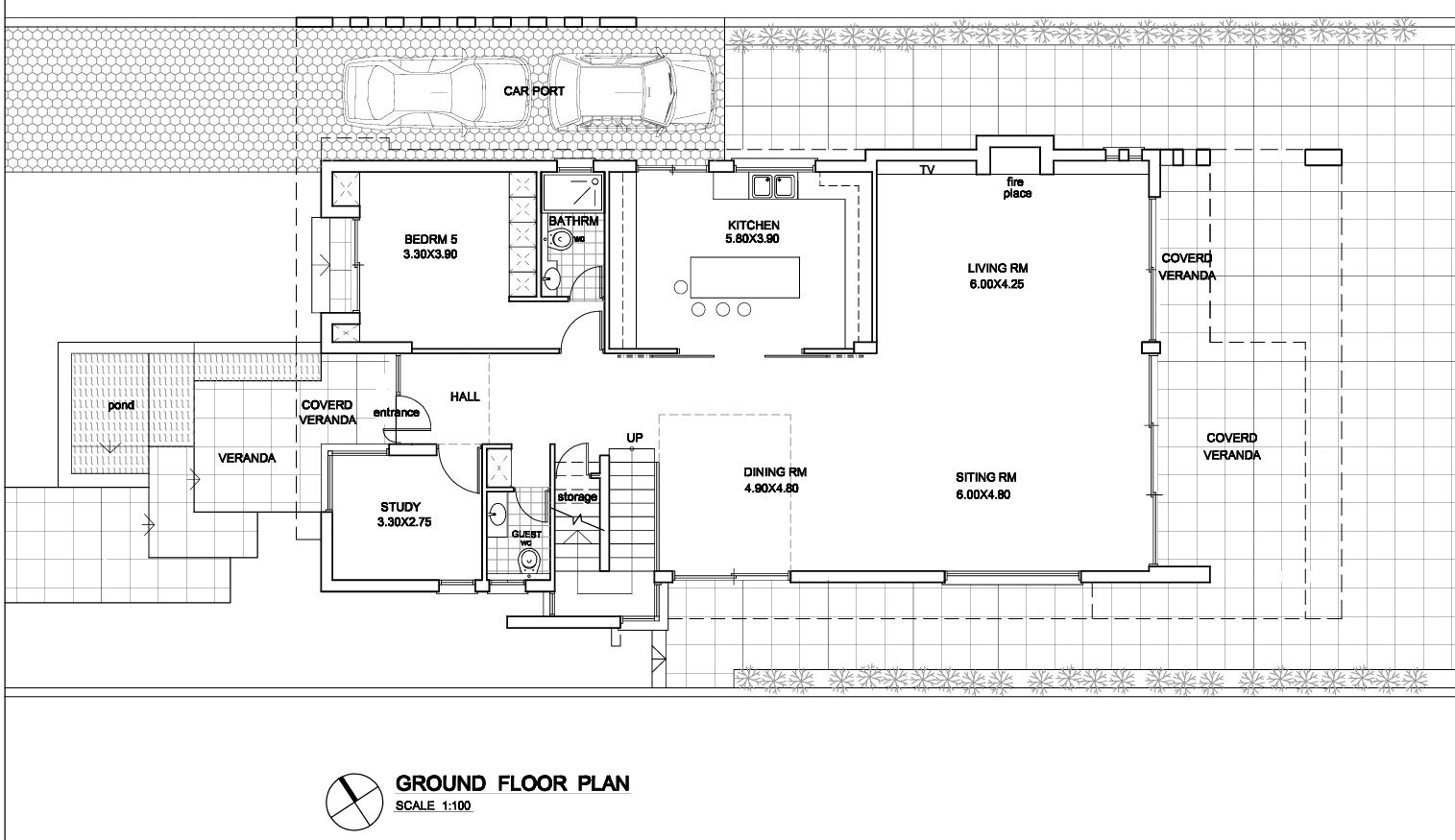
Πωλείται υπο ανέγερση πολυτελής έπαυλη πέντε υπνοδωματίων στα Περβόλια – επαρχία Λάρνακας, με ιδιωτική πισίνα, πάνω στην παραλία. Αποτελείται από 320 τ.μ. εσωτερικό καλυμμένο χώρο σε 854 τ.μ. οικόπεδο. Το ισόγειο αποτελείται από ευρύχωρο ενιαίο χώρο σαλόνι και τραπεζαρία, ξεχωριστή ευρύχωρη κουζίνα, ένα υπνοδωμάτιο με en-suite, ένα χώρο γραφείου και μια τουλέτα επισκεπτών. Ο πρώτος όροφος αποτελείται από τέσσερα υπνοδωμάτια όλα με en-suite και μπαλκόνια και επίσης το κυρίως υπνοδωμάτιο διαθέτει γκαρνταρόμπα με μικρή βεράντα στο en-suite. Στον κήπο οροφής διαθέτει τζακούζι, μπαρ και πέργολα. Εξωτερικά διαθέτει δύο καλυμμένους χώρους στάθμευσης, κήπο στην μπροστινή και πίσω όψη της κατοικίας, ιδιωτική πισίνα, πέργολα και μπάρμπεκιου. Επιπλέον η έπαυλη είναι ενεργειακής απόδοσης Α+ και διαθέτει υποδαπέδια θέρμανση, φωτοβολταικά και σύστημα smarthome. Βρίσκεται 50 μέτρα από την παραλία και κοντά σε όλες τις υπηρεσίες. Ημερομηνία παράδοσης 16 μήνες μετά την υπογραφή σύμβασης. Τιμή πώλησης 3.700,000 ευρώ πλέον Φ.Π.Α.
Owning a home is a keystone of wealth… both financial affluence and emotional security.
Suze OrmanTo provide the best experiences, we and our partners use technologies like cookies to store and/or access device information. Consenting to these technologies will allow us and our partners to process personal data such as browsing behavior or unique IDs on this site and show (non-) personalized ads. Not consenting or withdrawing consent, may adversely affect certain features and functions.
Click below to consent to the above or make granular choices. Your choices will be applied to this site only. You can change your settings at any time, including withdrawing your consent, by using the toggles on the Cookie Policy, or by clicking on the manage consent button at the bottom of the screen.