Livadia, Larnaca District, Cyprus
Προς πώληση
€970,000
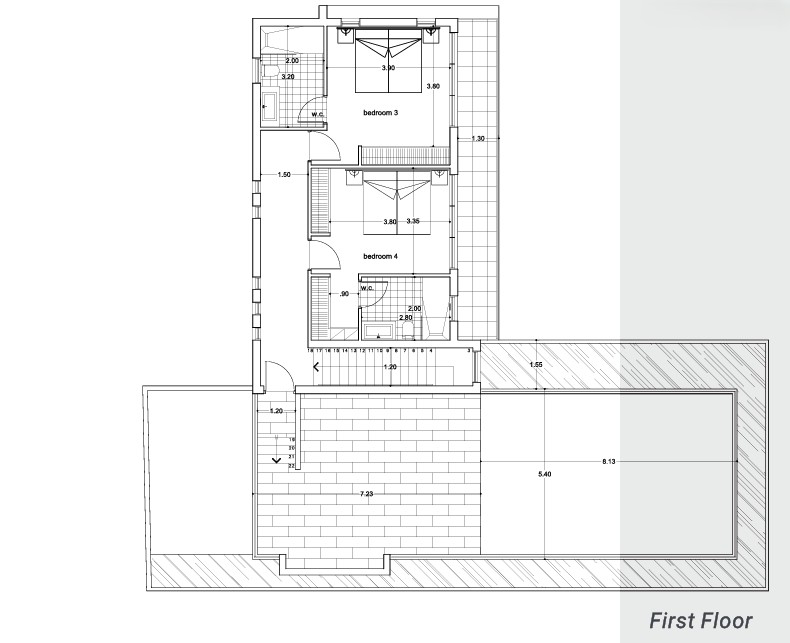
Πωλείται σχεδόν ετοιμοπαράδοτη ανεξάρτητη κατοικία τεσσάρων υπνοδωματίων στα Λιβάδια – επαρχία Λάρνακας, με 268 τ.μ. καλυμμένο εσωτερικό χώρο σε 736 τ.μ. οικόπεδο. Αυτή η πανέμορφη οικία διαθέτει στο ισόγειο ευρύχωρο ενιαίο χώρο κουζίνα με νησίδα/τραπεζαρία/καθιστικό, 1 τουλέτα ξένων, πλυσταριό, δύο υπνοδωμάτια το ένα με en-suite. Στον πρώτο όροφο διαθέτει δύο υπνοδωμάτια και τa δύο με en-suite και ευρύχωρο κήπο οροφής. Εξωτερικά διαθέτει δύο καλυμμένους χώρους στάθμευσης, κιόσκι με μπαρ, καλυμμένες και ακάλυπτες βεράντες και μεγάλο κήπο. Βρίσκεται σε πολύ καλή περιοχή με εύκολη πρόσβαση στον αυτοκινητόδρομο, 3 λεπτά από την παραλία, 6 λεπτά από το κέντρο της Λάρνακας και κοντά σε υπηρεσίες όπως καταστήματα, υπεραγορές, εστιατόρια και διάφορα άλλα. Αναμενόμενη ημερομηνία παράδοσης Ιούλιος 2025. Τιμή πώλησης 970.000 ευρώ πλέον Φ.Π.Α.
Owning a home is a keystone of wealth… both financial affluence and emotional security.
Suze OrmanTo provide the best experiences, we and our partners use technologies like cookies to store and/or access device information. Consenting to these technologies will allow us and our partners to process personal data such as browsing behavior or unique IDs on this site and show (non-) personalized ads. Not consenting or withdrawing consent, may adversely affect certain features and functions.
Click below to consent to the above or make granular choices. Your choices will be applied to this site only. You can change your settings at any time, including withdrawing your consent, by using the toggles on the Cookie Policy, or by clicking on the manage consent button at the bottom of the screen.