Larnaca, Larnaca District, Cyprus
Προς πώληση
€200,000
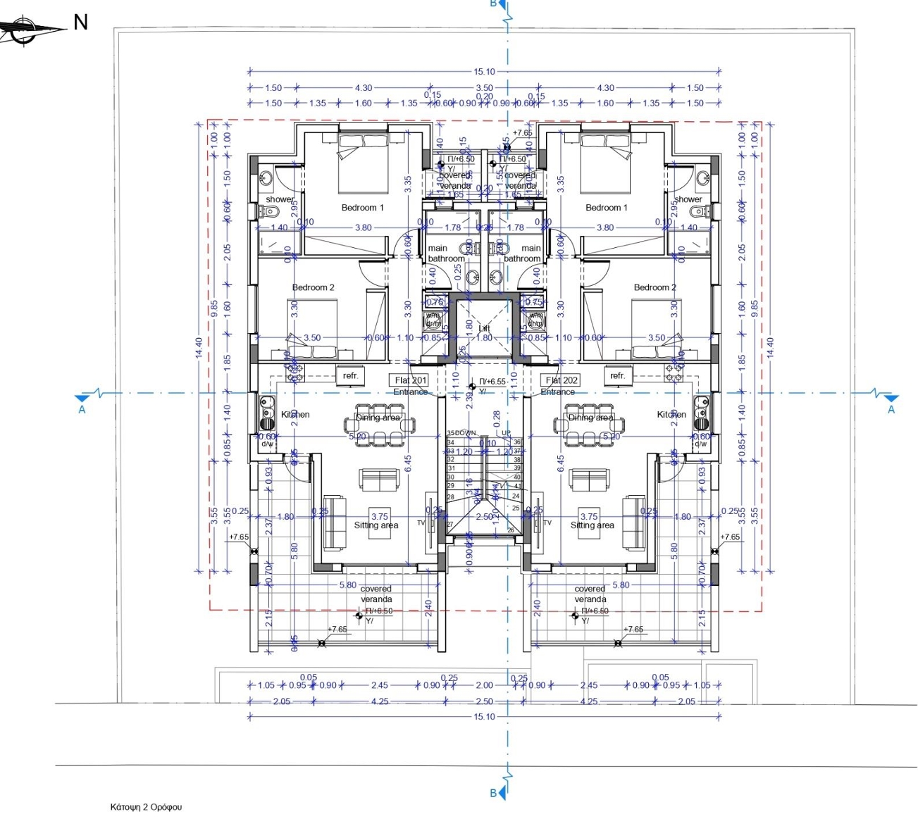
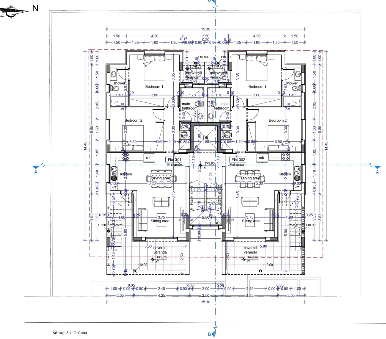
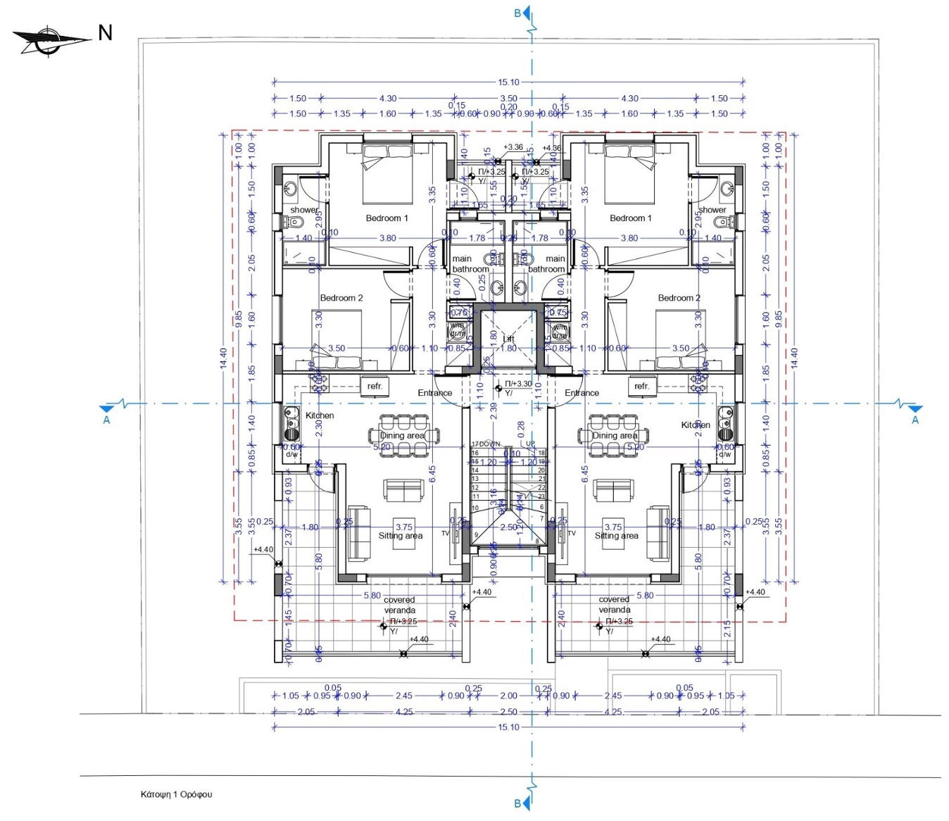
Πωλείται υπο ανέγερση διαμέρισμα δύο υπνοδωματίων στην περιοχή Κρασά – επαρχία Λάρνακα, με 84 τ.μ. καλυμμένους εσωτερικούς χώρους και 25 τ.μ. καλυμμένη βεράντα, στον 2ο όροφο τριώροφης πολυκατοικίας με 6 διαμερίσματα στο σύνολο. Διαθέτει 2 χώρους υγιεινής, en suite στο κυρίως υπνοπδωμάτιο, πρόνοιες για συσκευές κλιματισμού τύπου split, εγκατεστημένο φωτοβολταϊκό σύστημα 3KW, ηλιακό θερμοσίφωνα, θυροτηλεόραση στην είσοδο, καλυμμένο χώρο στάθμευσης και αποθήκη. Αναμενόμενη ημερομηνία παράδοσης τον Μάρτιο 2026. Βρίσκεται σε τοποθεσία με εύκολη πρόσβαση από τον αυτοκινητόδρομο και το κέντρο της πόλης. Τιμή πώλησης 200,000 ευρώ συν Φ.Π.Α.
Owning a home is a keystone of wealth… both financial affluence and emotional security.
Suze OrmanTo provide the best experiences, we and our partners use technologies like cookies to store and/or access device information. Consenting to these technologies will allow us and our partners to process personal data such as browsing behavior or unique IDs on this site and show (non-) personalized ads. Not consenting or withdrawing consent, may adversely affect certain features and functions.
Click below to consent to the above or make granular choices. Your choices will be applied to this site only. You can change your settings at any time, including withdrawing your consent, by using the toggles on the Cookie Policy, or by clicking on the manage consent button at the bottom of the screen.