Lakatamia, Nicosia, Nicosia District, South Cyprus, Cyprus
Προς πώληση
€116,000
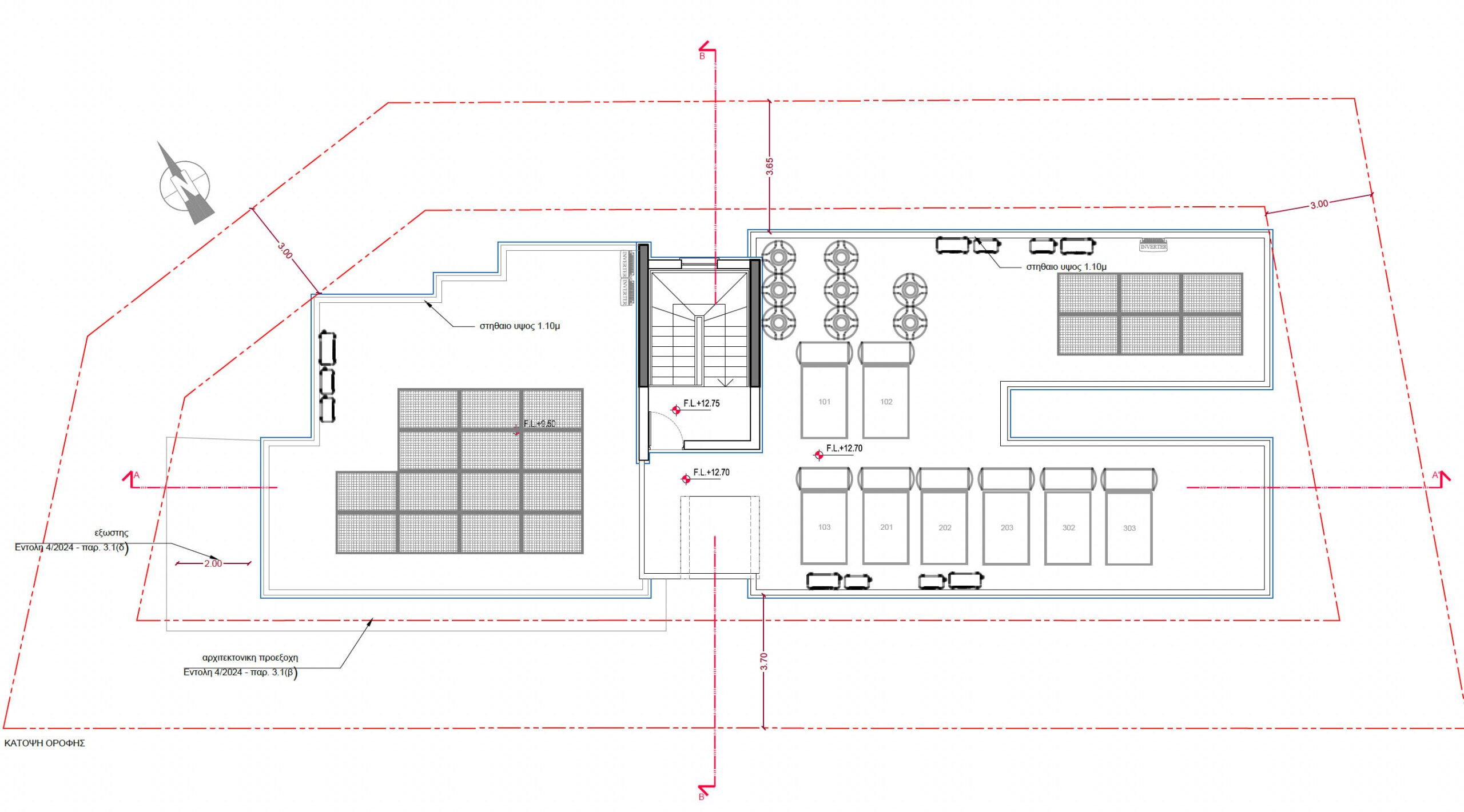
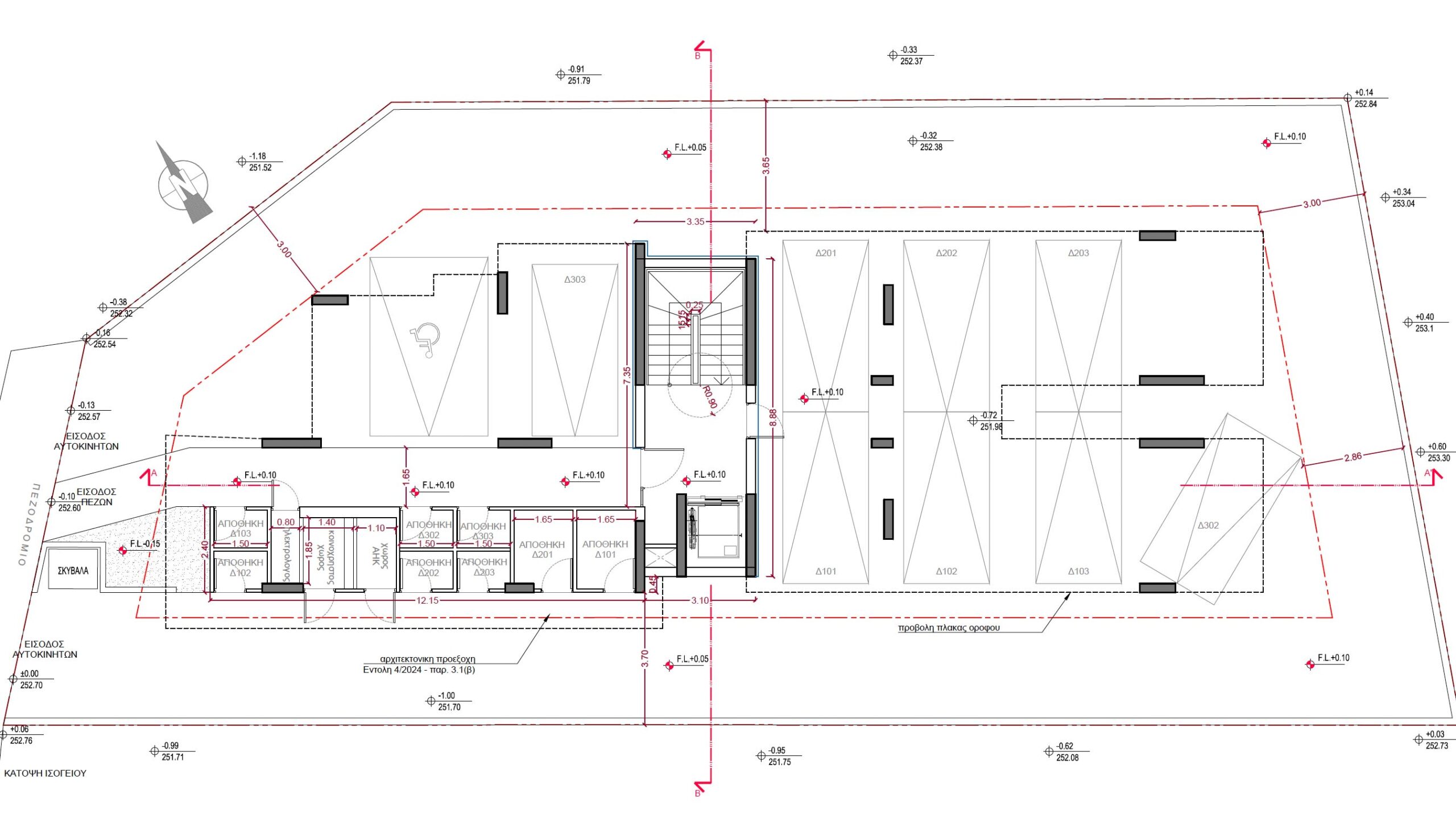
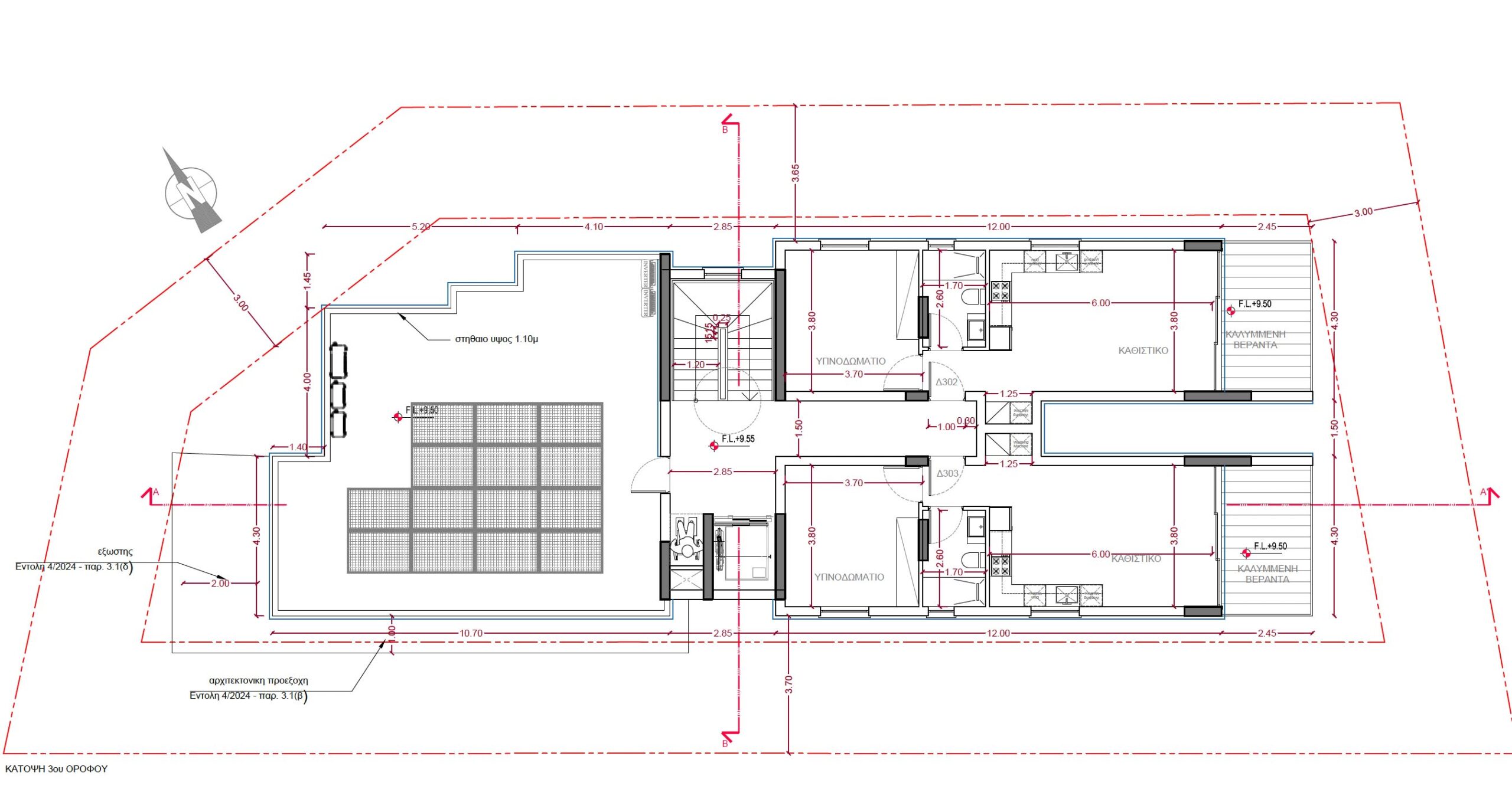
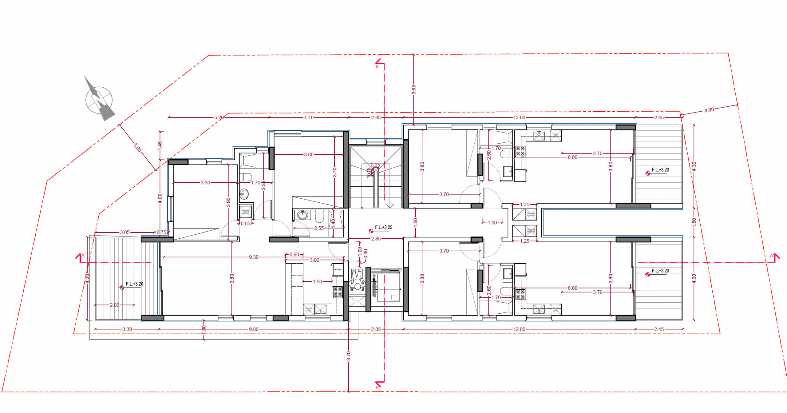
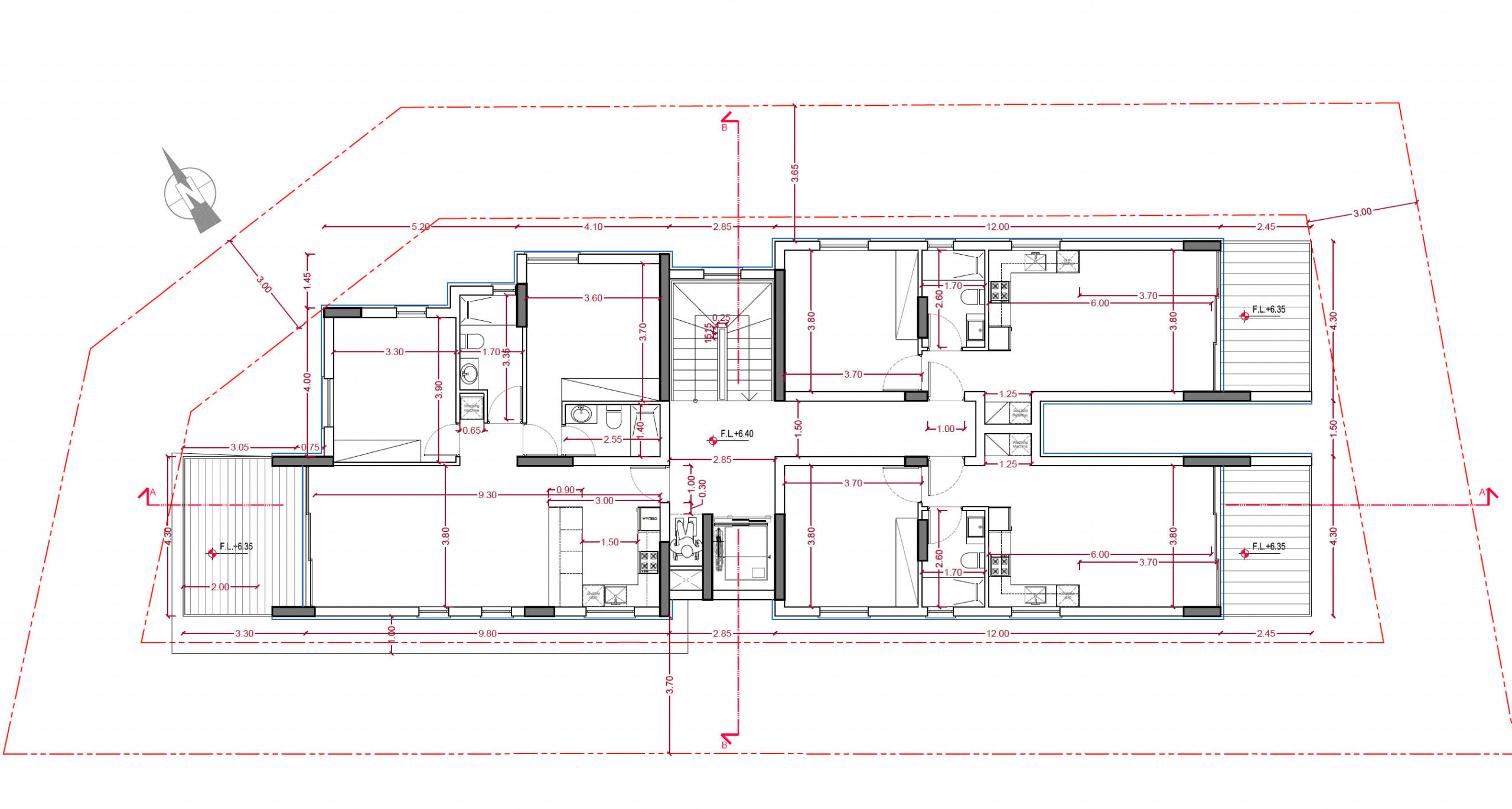
Πωλείται υπό ανέγερση διαμέρισμα ενός υπνοδωματίου στη Λακατάμια, κοντά στην Ανθούπολη – επαρχία Λευκωσίας, με 51,5 τ.μ. καλυμμένο εσωτερικό χώρο και 10 τ.μ. καλυμμένη βεράντα, στον πρώτο όροφο μικρής τριώροφης πολυκατοικίας με 8 διαμερίσματα στο σύνολο. Διαθέτει πρόνοιες συστημάτων κλιματισμού, πρόνοια για ηλεκτρικά σώματα θέρμανσης, πρόνοια για ηλεκτρικά shutters παραθύρων στο υπνοδωμάτιο, πρόνοια ανεξάρτητου φωτοβολταϊκού συστήματος, θυροτηλεόραση, πιεστικό, ηλιακό θερμοσίφωνα, καλυμμένο χώρο στάθμευσης και αποθήκη. Το διαμέρισμα κατέχει Πιστοποιητικό Ενεργειακής Απόδοσης Α’. Τιμή πώλησης 116.000 ευρώ συν Φ.Π.Α. Διατίθεται και με εγκατεστημένο σύστημα κλιματισμού και εγκατεστημένο φωτοβολταϊκό σύστημα στην τιμή των 118,000 συν Φ.Π.Α.
Owning a home is a keystone of wealth… both financial affluence and emotional security.
Suze OrmanTo provide the best experiences, we and our partners use technologies like cookies to store and/or access device information. Consenting to these technologies will allow us and our partners to process personal data such as browsing behavior or unique IDs on this site and show (non-) personalized ads. Not consenting or withdrawing consent, may adversely affect certain features and functions.
Click below to consent to the above or make granular choices. Your choices will be applied to this site only. You can change your settings at any time, including withdrawing your consent, by using the toggles on the Cookie Policy, or by clicking on the manage consent button at the bottom of the screen.